Туалет с пандусом и лестницей
1278145 руб.
В наличии
Нет в наличии
- 60 площадок по всей РФ
- Быстрый расчет и доставка
- Большой ассортимент оборудования для стройки
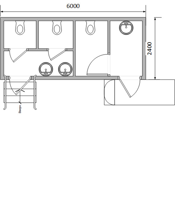
Туалет 6х2,4х2,6 м из сэндвич-панелей 80 мм. Пандус + лестница, 3 унитаза, 3 умывальника. Аренда от 20 000 ₽/мес, продажа от 720 000 ₽. Доставка по СПб, Москве и России за 24ч.
- Артикул:
- СП-П-13
Туалет с пандусом и лестницей — это специализированный павильон площадью 14,4 м² из сэндвич-панелей для организации доступной среды на оживлённых улицах, парках и транспортных узлах по всей России. Благодаря двум функциональным зонам — стандартной с двумя кабинками и специализированной кабине для маломобильных граждан с пандусом — вы получаете полностью адаптированный объект, соответствующий требованиям ГОСТ Р 56573-2015 для инклюзивной инфраструктуры в условиях Санкт-Петербурга, Москвы и регионов.
Ключевые преимущества туалета с пандусом:
Полная доступность для всех категорий граждан:
Специализированная кабина 3,6 м² с поручнями и увеличенным проёмом 1200 мм соответствует требованиям для инвалидов-колясочников
Стальной пандус с рифлёным листом 3 мм и уклоном 1:12 (8,3%) обеспечивает безопасный подъём без посторонней помощи
Отдельная зона с металлической лестницей обслуживает основной поток посетителей без смешения потоков
Премиальная конструкция для круглогодичной эксплуатации:
Сэндвич-панели на основе ПСБ-С толщиной 80 мм обеспечивают эксплуатацию до -30 градусов Цельсия без дополнительного отопления
Каркас из профтрубы 80х80х3 мм выдерживает ветровые нагрузки до 40 м/с и снеговые нагрузки до 180 кг/м²
Алюминиевые композитные панели (алюкобонд) защищают фасад от вандализма и сохраняют внешний вид до 15 лет
Предлагаем как аренду, так и покупку от «Профмастер»:
Аренда от 20 000 ₽/мес с доставкой и установкой
Продажа от 720 000 ₽ за базовую комплектацию, от 880 000 ₽ с электрификацией, отоплением 2,5 кВт и автоматической системой оплаты
Рассрочка до 24 месяцев без процентов для юридических лиц
Бесплатная доставка по России при покупке от 800 000 ₽
Технические характеристики:
Конструкция из сэндвич-панелей:
Габариты: длина 6 м, ширина 2,4 м, высота 2,6 м, общая площадь 14,4 м²
Две функциональные зоны: стандартная (2 кабинки по 2,4 м²) + адаптированная кабина для маломобильных (3,6 м²)
Стены, пол и кровля из сэндвич-панелей ПСБ-С толщиной 80 мм с коэффициентом теплопроводности 0,036 Вт/(м·К)
Пол: сэндвич-панель 80 мм + ДСП 16 мм для нагрузки до 350 кг/м² (выдерживает вес инвалидной коляски с пользователем)
Инженерные решения для доступной среды:
2 входные двери металлические «Кондор»/«Йошкар» 2100х800 мм для стандартной зоны и адаптированного входа
3 межкомнатные двери: 2 стандартные МДФ 2000х700 мм + 1 широкая МДФ 2000х1200 мм для кабины маломобильных
Сантехника: 3 унитаза и 3 умывальника производства России с полным комплектом смесителей и поручнями в адаптированной кабине
6 подводов коммуникаций (3 водоснабжения + 3 канализации) с выводом в единый коллектор
Наружная металлическая лестница на каркасе из швеллера и пандус из рифлёного стального листа 3 мм с противоскользящим покрытием
Почему выбирают «Профмастер»: Компания «Профмастер» специализируется на модульных решениях с 2014 года. Наши туалеты с пандусом установлены в парке «Петергоф», на набережной Невы и в рамках программы «Доступная среда» в Москве. Гарантия: 24 месяца при аренде, 48 месяцев при покупке. Все павильоны сертифицированы по ГОСТ Р 56573-2015 и СП 59.13330.2016 для объектов инклюзивной инфраструктуры. Доставка: 24 часа по СПб и Москве, 2-10 дней по регионам России. Готовы рассчитать павильон под вашу локацию? Оставьте заявку — подготовим проект с согласованием требований МЧС за 35 минут!
Какие требования ГОСТ соблюдаются в адаптированной кабине?
Кабина для маломобильных соответствует ГОСТ Р 56573-2015: минимальные габариты 1,6х1,8 м, ширина дверного проёма 1200 мм, поручни по трём сторонам на высоте 800 мм, зеркало с наклоном, кнопка вызова помощи. Все параметры проверены сертифицированным центром «Росинкас» — предоставляем сертификат соответствия бесплатно.
Сколько человек может обслуживать туалет в час?
Стандартная зона с двумя кабинками обслуживает 30 человек в час (по 15 человек на кабинку). Адаптированная кабина рассчитана на 6-8 человек в час с учётом времени для заезда/выезда коляски. Общая пропускная способность — 36-38 человек в час без образования очередей.
Какая температура поддерживается внутри зимой при утеплении 80 мм?
Сэндвич-панели 80 мм на основе ПСБ-С обеспечивают комфортную температуру +12 градусов Цельсия внутри при -25 градусов Цельсия на улице без отопления. Для круглогодичной эксплуатации с подогревом пола устанавливаем инфракрасные обогреватели 2 кВт — доплата 48 000 ₽. При работе обогревателей поддерживается +18 градусов Цельсия при -35 градусов Цельсия снаружи.
Сколько стоит доставка в Калининград?
Доставка туалета с пандусом (1 модуль) в Калининград стоит 68 000 ₽. В стоимость входит погрузка манипулятором, транспортировка фурой до порта, морская перевозка, разгрузка и установка на подготовленную площадку. Срок доставки — 6 дней. При заказе от 800 000 ₽ доставка бесплатная.
Можно ли установить автоматическую систему оплаты с льготным режимом для инвалидов?
Да, устанавливаем терминал с распознаванием социальной карты инвалида — при сканировании карта даёт бесплатный доступ. Стоимость системы с интеграцией — 115 000 ₽. Все транзакции фиксируются в облаке с ежедневной выгрузкой отчётов по льготным и платным посещениям. Монтаж занимает 3 часа на объекте.
Сколько времени занимает монтаж павильона с пандусом?
Монтаж занимает 5-6 часов силами бригады из 3 человек: выравнивание площадки с учётом уклона пандуса, установка модуля, монтаж пандуса и лестницы, подключение коммуникаций. Для подключения водоснабжения, канализации и электричества требуется дополнительный 1 час. Всю работу выполняем своими бригадами без привлечения субподрядчиков.
Ключевые преимущества туалета с пандусом:
Полная доступность для всех категорий граждан:
Специализированная кабина 3,6 м² с поручнями и увеличенным проёмом 1200 мм соответствует требованиям для инвалидов-колясочников
Стальной пандус с рифлёным листом 3 мм и уклоном 1:12 (8,3%) обеспечивает безопасный подъём без посторонней помощи
Отдельная зона с металлической лестницей обслуживает основной поток посетителей без смешения потоков
Премиальная конструкция для круглогодичной эксплуатации:
Сэндвич-панели на основе ПСБ-С толщиной 80 мм обеспечивают эксплуатацию до -30 градусов Цельсия без дополнительного отопления
Каркас из профтрубы 80х80х3 мм выдерживает ветровые нагрузки до 40 м/с и снеговые нагрузки до 180 кг/м²
Алюминиевые композитные панели (алюкобонд) защищают фасад от вандализма и сохраняют внешний вид до 15 лет
Предлагаем как аренду, так и покупку от «Профмастер»:
Аренда от 20 000 ₽/мес с доставкой и установкой
Продажа от 720 000 ₽ за базовую комплектацию, от 880 000 ₽ с электрификацией, отоплением 2,5 кВт и автоматической системой оплаты
Рассрочка до 24 месяцев без процентов для юридических лиц
Бесплатная доставка по России при покупке от 800 000 ₽
Технические характеристики:
Конструкция из сэндвич-панелей:
Габариты: длина 6 м, ширина 2,4 м, высота 2,6 м, общая площадь 14,4 м²
Две функциональные зоны: стандартная (2 кабинки по 2,4 м²) + адаптированная кабина для маломобильных (3,6 м²)
Стены, пол и кровля из сэндвич-панелей ПСБ-С толщиной 80 мм с коэффициентом теплопроводности 0,036 Вт/(м·К)
Пол: сэндвич-панель 80 мм + ДСП 16 мм для нагрузки до 350 кг/м² (выдерживает вес инвалидной коляски с пользователем)
Инженерные решения для доступной среды:
2 входные двери металлические «Кондор»/«Йошкар» 2100х800 мм для стандартной зоны и адаптированного входа
3 межкомнатные двери: 2 стандартные МДФ 2000х700 мм + 1 широкая МДФ 2000х1200 мм для кабины маломобильных
Сантехника: 3 унитаза и 3 умывальника производства России с полным комплектом смесителей и поручнями в адаптированной кабине
6 подводов коммуникаций (3 водоснабжения + 3 канализации) с выводом в единый коллектор
Наружная металлическая лестница на каркасе из швеллера и пандус из рифлёного стального листа 3 мм с противоскользящим покрытием
Почему выбирают «Профмастер»: Компания «Профмастер» специализируется на модульных решениях с 2014 года. Наши туалеты с пандусом установлены в парке «Петергоф», на набережной Невы и в рамках программы «Доступная среда» в Москве. Гарантия: 24 месяца при аренде, 48 месяцев при покупке. Все павильоны сертифицированы по ГОСТ Р 56573-2015 и СП 59.13330.2016 для объектов инклюзивной инфраструктуры. Доставка: 24 часа по СПб и Москве, 2-10 дней по регионам России. Готовы рассчитать павильон под вашу локацию? Оставьте заявку — подготовим проект с согласованием требований МЧС за 35 минут!
Какие требования ГОСТ соблюдаются в адаптированной кабине?
Кабина для маломобильных соответствует ГОСТ Р 56573-2015: минимальные габариты 1,6х1,8 м, ширина дверного проёма 1200 мм, поручни по трём сторонам на высоте 800 мм, зеркало с наклоном, кнопка вызова помощи. Все параметры проверены сертифицированным центром «Росинкас» — предоставляем сертификат соответствия бесплатно.
Сколько человек может обслуживать туалет в час?
Стандартная зона с двумя кабинками обслуживает 30 человек в час (по 15 человек на кабинку). Адаптированная кабина рассчитана на 6-8 человек в час с учётом времени для заезда/выезда коляски. Общая пропускная способность — 36-38 человек в час без образования очередей.
Какая температура поддерживается внутри зимой при утеплении 80 мм?
Сэндвич-панели 80 мм на основе ПСБ-С обеспечивают комфортную температуру +12 градусов Цельсия внутри при -25 градусов Цельсия на улице без отопления. Для круглогодичной эксплуатации с подогревом пола устанавливаем инфракрасные обогреватели 2 кВт — доплата 48 000 ₽. При работе обогревателей поддерживается +18 градусов Цельсия при -35 градусов Цельсия снаружи.
Сколько стоит доставка в Калининград?
Доставка туалета с пандусом (1 модуль) в Калининград стоит 68 000 ₽. В стоимость входит погрузка манипулятором, транспортировка фурой до порта, морская перевозка, разгрузка и установка на подготовленную площадку. Срок доставки — 6 дней. При заказе от 800 000 ₽ доставка бесплатная.
Можно ли установить автоматическую систему оплаты с льготным режимом для инвалидов?
Да, устанавливаем терминал с распознаванием социальной карты инвалида — при сканировании карта даёт бесплатный доступ. Стоимость системы с интеграцией — 115 000 ₽. Все транзакции фиксируются в облаке с ежедневной выгрузкой отчётов по льготным и платным посещениям. Монтаж занимает 3 часа на объекте.
Сколько времени занимает монтаж павильона с пандусом?
Монтаж занимает 5-6 часов силами бригады из 3 человек: выравнивание площадки с учётом уклона пандуса, установка модуля, монтаж пандуса и лестницы, подключение коммуникаций. Для подключения водоснабжения, канализации и электричества требуется дополнительный 1 час. Всю работу выполняем своими бригадами без привлечения субподрядчиков.