Столовая на 50 человек с санузлом
862500 руб.
В наличии
Нет в наличии
- 60 площадок по всей РФ
- Быстрый расчет и доставка
- Большой ассортимент оборудования для стройки
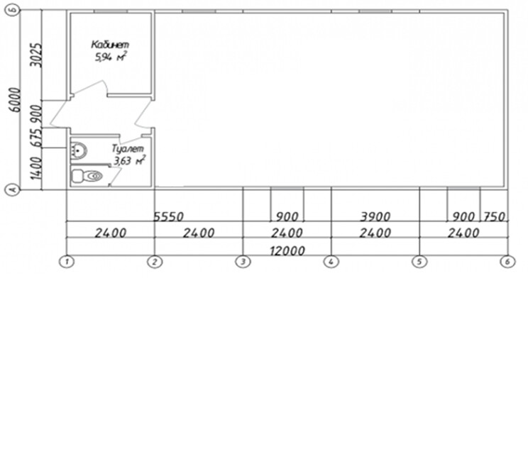
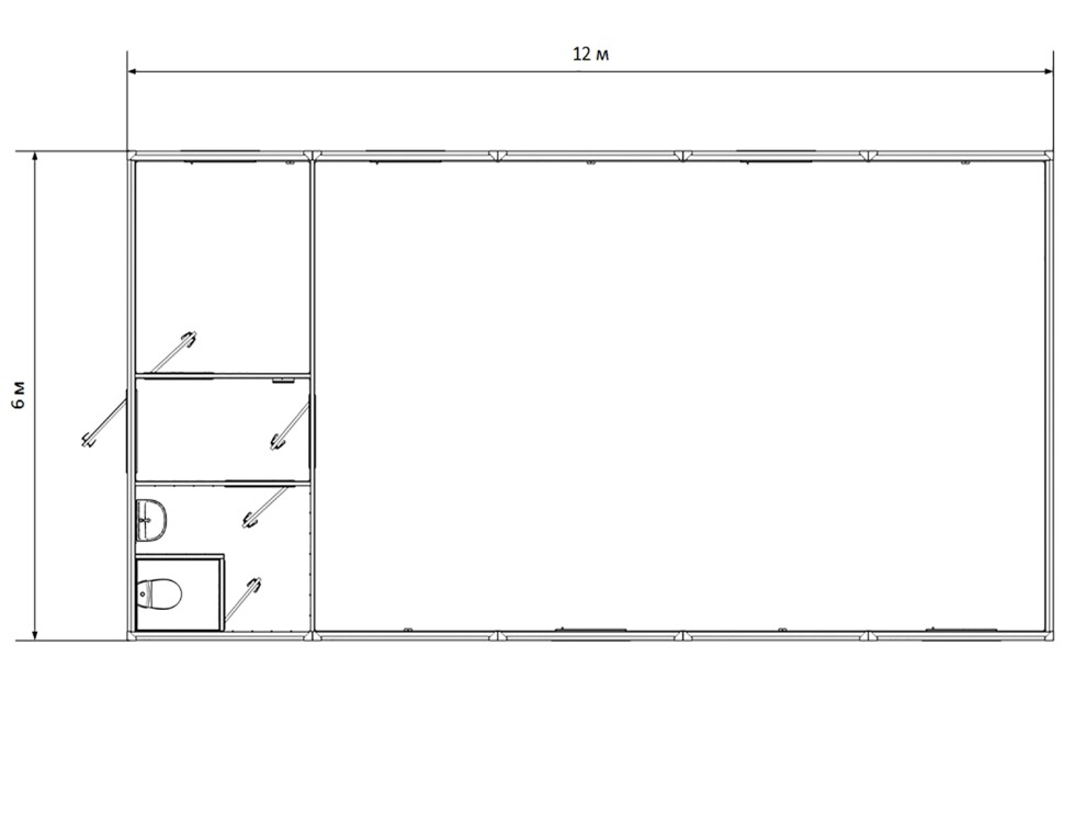
Столовая 12х6х2,4 м из 5 блоков. Профлист С8, утепление 50 мм, 6 окон ПВХ. Аренда от 48 000 ₽/мес, продажа от 1 200 000 ₽. Доставка по СПб, Москве и России за 24ч.
- Артикул:
- ПР-МЗ-13
Столовая на 50 человек с санузлом — это крупногабаритный комплекс площадью 72 м² из пяти 6-метровых блок-контейнеров для организации питания персонала на крупных строительных площадках, промышленных объектах и добывающих предприятиях по всей России. Благодаря продуманной планировке с основным залом из четырёх блоков, хозяйственным помещением и встроенным санузлом вы получаете автономное решение для одновременного приёма пищи 50 человек в условиях Санкт-Петербурга, Москвы и удалённых регионов.
Ключевые преимущества столовой:
Масштабируемость под крупные бригады:
Основной зал 57,6 м² комфортно размещает 50 человек за столами с соблюдением санитарной нормы 1,8 м² на человека
При потоковом питании (сменами по 20 минут) здание обслуживает до 150 человек в час без образования очередей
Санузел 4,8 м² с унитазом «Компакт» и умывальником санфаянс обеспечивает обслуживание без выхода персонала за пределы столовой
Экономическая эффективность для крупных объектов:
Срок окупаемости при аренде — от 25 месяцев благодаря стоимости аренды от 48 000 ₽/мес вместо строительства капитальной столовой от 7 000 000 ₽
Встроенный санузел исключает затраты на отдельный санблок — экономия до 320 000 ₽ на инфраструктуре
Сборка пятиблочного комплекса занимает 18-20 часов вместо 2-3 недель на капитальное строительство
Предлагаем как аренду, так и покупку от «Профмастер»:
Аренда от 48 000 ₽/мес с доставкой и установкой
Продажа от 1 200 000 ₽ за базовую комплектацию, от 1 550 000 ₽ с электрификацией 380В, отоплением 8 кВт и комплектом мебели (25 столов, 50 стульев)
Рассрочка до 36 месяцев без процентов для юридических лиц
Бесплатная доставка по России при покупке от 1 400 000 ₽
Технические характеристики:
Надёжная конструкция из профлиста:
Каркас из швеллера холодногнутого 120х50х3 мм и уголка 90х90х3 мм выдерживает ветровые нагрузки до 35 м/с
Наружная обшивка оцинкованным профлистом С8 толщиной 0,4 мм с защитой от коррозии до 20 лет
Утепление стен и пола минеральной ватой 50 мм, потолка — 100 мм позволяет эксплуатировать столовую при температурах до -15 градусов Цельсия
Габариты: длина 12 м, ширина 6 м, высота 2,4 м, общая площадь 72 м²
Инженерные решения для общественного питания:
6 окон ПВХ 0,8х1 м с поворотным механизмом обеспечивают естественное освещение зала без искусственного света в дневное время
Входная дверь оргалитовая 2х0,8 м с оцинковкой + 3 межкомнатные двери для разделения зон
Раздельная отделка: ДВП в сухих помещениях (зал, хозблок), ПВХ в санузле с дополнительной герметизацией стыков
Пароизоляционная мембрана Класс В по всему периметру предотвращает образование конденсата при готовке
Почему выбирают «Профмастер»: Компания «Профмастер» специализируется на модульных решениях с 2014 года. Наши столовые используются на объектах «Газпрома», «Норникеля» и крупных строительных площадках в Санкт-Петербурге, Москве и Ямало-Ненецком автономном округе. Гарантия: 36 месяцев при аренде, 60 месяцев при покупке. Все модули проходят сертификацию по санитарным нормам СанПиН 2.1.3684-21 для предприятий общественного питания. Доставка: 24 часа по СПб и Москве, 3-10 дней по регионам России. Готовы рассчитать столовую под вашу бригаду? Оставьте заявку — подготовим проект с расстановкой столов за 40 минут!
Сколько человек комфортно размещается в столовой площадью 72 м²?
В основном зале 57,6 м² комфортно размещаются 50 человек за столами (по 2 человека за столом 800х600 мм). При потоковом питании двумя сменами по 20 минут здание обслуживает 100 человек за 45 минут. Максимальная пропускная способность — 150 человек в час при трёх потоках.
Какая температура поддерживается внутри зимой при утеплении 50 мм?
Утепление 50 мм минеральной ватой обеспечивает комфортную эксплуатацию до -15 градусов Цельсия без отопления. Для работы в регионах Сибири устанавливаем систему отопления 8 кВт — доплата 165 000 ₽. При работе отопления поддерживается +18 градусов Цельсия внутри при -30 градусов Цельсия на улице.
Сколько стоит доставка в Новый Уренгой?
Доставка столовой (5 блоков) в Новый Уренгой стоит 195 000 ₽. В стоимость входит погрузка 3 манипуляторами, транспортировка колонной, разгрузка и предварительная сборка на подготовленной площадке. Срок доставки — 8-10 дней. При заказе от 1 500 000 ₽ доставка бесплатная.
Можно ли увеличить количество санузлов для 50 человек?
Да, по санитарным нормам на 50 человек требуется минимум 2 унитаза. Устанавливаем второй санузел площадью 4,8 м² за счёт перепланировки хозблока — доплата 95 000 ₽. Все работы выполняем на заводе перед отправкой. Предоставляем схему планировки для согласования с СЭС бесплатно.
Как происходит монтаж пятиблочного комплекса на объекте?
Монтаж занимает 18-20 часов силами бригады из 6 человек: выравнивание площадки, установка 5 блоков по схеме, сварка стыков, монтаж перегородок. Для подключения электричества (380В), водоснабжения и канализации требуется дополнительные 6 часов. Всю работу выполняем своими бригадами без привлечения субподрядчиков. Предоставляем акт ввода в эксплуатацию в день завершения работ.
Сколько времени требуется на потоковое питание 100 человек?
При организации двух потоков по 20 минут 100 человек проходят столовую за 50 минут (включая время на вход/выход и уборку между сменами). Для ускорения до 35 минут рекомендуем установку второго входа/выхода — стоимость модификации 75 000 ₽.
Ключевые преимущества столовой:
Масштабируемость под крупные бригады:
Основной зал 57,6 м² комфортно размещает 50 человек за столами с соблюдением санитарной нормы 1,8 м² на человека
При потоковом питании (сменами по 20 минут) здание обслуживает до 150 человек в час без образования очередей
Санузел 4,8 м² с унитазом «Компакт» и умывальником санфаянс обеспечивает обслуживание без выхода персонала за пределы столовой
Экономическая эффективность для крупных объектов:
Срок окупаемости при аренде — от 25 месяцев благодаря стоимости аренды от 48 000 ₽/мес вместо строительства капитальной столовой от 7 000 000 ₽
Встроенный санузел исключает затраты на отдельный санблок — экономия до 320 000 ₽ на инфраструктуре
Сборка пятиблочного комплекса занимает 18-20 часов вместо 2-3 недель на капитальное строительство
Предлагаем как аренду, так и покупку от «Профмастер»:
Аренда от 48 000 ₽/мес с доставкой и установкой
Продажа от 1 200 000 ₽ за базовую комплектацию, от 1 550 000 ₽ с электрификацией 380В, отоплением 8 кВт и комплектом мебели (25 столов, 50 стульев)
Рассрочка до 36 месяцев без процентов для юридических лиц
Бесплатная доставка по России при покупке от 1 400 000 ₽
Технические характеристики:
Надёжная конструкция из профлиста:
Каркас из швеллера холодногнутого 120х50х3 мм и уголка 90х90х3 мм выдерживает ветровые нагрузки до 35 м/с
Наружная обшивка оцинкованным профлистом С8 толщиной 0,4 мм с защитой от коррозии до 20 лет
Утепление стен и пола минеральной ватой 50 мм, потолка — 100 мм позволяет эксплуатировать столовую при температурах до -15 градусов Цельсия
Габариты: длина 12 м, ширина 6 м, высота 2,4 м, общая площадь 72 м²
Инженерные решения для общественного питания:
6 окон ПВХ 0,8х1 м с поворотным механизмом обеспечивают естественное освещение зала без искусственного света в дневное время
Входная дверь оргалитовая 2х0,8 м с оцинковкой + 3 межкомнатные двери для разделения зон
Раздельная отделка: ДВП в сухих помещениях (зал, хозблок), ПВХ в санузле с дополнительной герметизацией стыков
Пароизоляционная мембрана Класс В по всему периметру предотвращает образование конденсата при готовке
Почему выбирают «Профмастер»: Компания «Профмастер» специализируется на модульных решениях с 2014 года. Наши столовые используются на объектах «Газпрома», «Норникеля» и крупных строительных площадках в Санкт-Петербурге, Москве и Ямало-Ненецком автономном округе. Гарантия: 36 месяцев при аренде, 60 месяцев при покупке. Все модули проходят сертификацию по санитарным нормам СанПиН 2.1.3684-21 для предприятий общественного питания. Доставка: 24 часа по СПб и Москве, 3-10 дней по регионам России. Готовы рассчитать столовую под вашу бригаду? Оставьте заявку — подготовим проект с расстановкой столов за 40 минут!
Сколько человек комфортно размещается в столовой площадью 72 м²?
В основном зале 57,6 м² комфортно размещаются 50 человек за столами (по 2 человека за столом 800х600 мм). При потоковом питании двумя сменами по 20 минут здание обслуживает 100 человек за 45 минут. Максимальная пропускная способность — 150 человек в час при трёх потоках.
Какая температура поддерживается внутри зимой при утеплении 50 мм?
Утепление 50 мм минеральной ватой обеспечивает комфортную эксплуатацию до -15 градусов Цельсия без отопления. Для работы в регионах Сибири устанавливаем систему отопления 8 кВт — доплата 165 000 ₽. При работе отопления поддерживается +18 градусов Цельсия внутри при -30 градусов Цельсия на улице.
Сколько стоит доставка в Новый Уренгой?
Доставка столовой (5 блоков) в Новый Уренгой стоит 195 000 ₽. В стоимость входит погрузка 3 манипуляторами, транспортировка колонной, разгрузка и предварительная сборка на подготовленной площадке. Срок доставки — 8-10 дней. При заказе от 1 500 000 ₽ доставка бесплатная.
Можно ли увеличить количество санузлов для 50 человек?
Да, по санитарным нормам на 50 человек требуется минимум 2 унитаза. Устанавливаем второй санузел площадью 4,8 м² за счёт перепланировки хозблока — доплата 95 000 ₽. Все работы выполняем на заводе перед отправкой. Предоставляем схему планировки для согласования с СЭС бесплатно.
Как происходит монтаж пятиблочного комплекса на объекте?
Монтаж занимает 18-20 часов силами бригады из 6 человек: выравнивание площадки, установка 5 блоков по схеме, сварка стыков, монтаж перегородок. Для подключения электричества (380В), водоснабжения и канализации требуется дополнительные 6 часов. Всю работу выполняем своими бригадами без привлечения субподрядчиков. Предоставляем акт ввода в эксплуатацию в день завершения работ.
Сколько времени требуется на потоковое питание 100 человек?
При организации двух потоков по 20 минут 100 человек проходят столовую за 50 минут (включая время на вход/выход и уборку между сменами). Для ускорения до 35 минут рекомендуем установку второго входа/выхода — стоимость модификации 75 000 ₽.