Штаб строительства универсальный
492000 руб.
В наличии
Нет в наличии
- 60 площадок по всей РФ
- Быстрый расчет и доставка
- Большой ассортимент оборудования для стройки
Штаб строительства 7,2х6х2,4 м из 3 блоков. Профлист С8, утепление 50 мм, 3 окна ПВХ, санузел. Аренда от 28 000 ₽/мес, продажа от 680 000 ₽. Доставка по СПб, Москве и России за 24ч.
- Артикул:
- ПР-МЗ-14
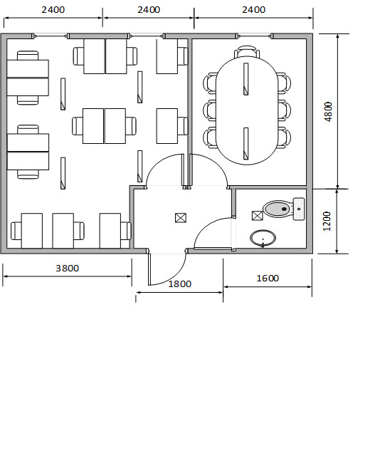
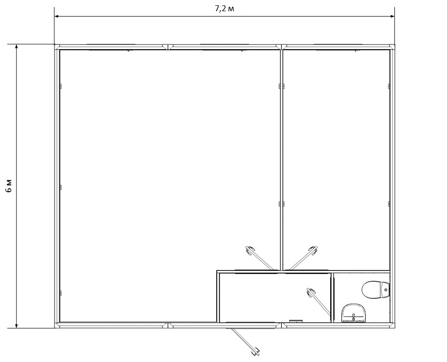
Штаб строительства универсальный — это трёхблочный модуль площадью 43,2 м² для организации управления строительными объектами, офиса или административного центра по всей России. Благодаря продуманной планировке с рабочим кабинетом, общим помещением для персонала, санузлом и входным тамбуром вы получаете готовое решение для комфортной работы руководящего состава в условиях Санкт-Петербурга, Москвы и удалённых регионов.
Ключевые преимущества универсального штаба:
Функциональная планировка для управления объектом:
Рабочий кабинет 12 м² для руководителя с двумя окнами ПВХ для естественного освещения
Общее помещение 21,6 м² для размещения 6-8 сотрудников или организации переговоров с подрядчиками
Входной тамбур 4,8 м² снижает теплопотери при интенсивном проходе персонала на 40% по сравнению с прямым входом
Санузел 4,8 м² с унитазом «Компакт» и умывальником санфаянс обеспечивает соблюдение санитарных норм без выхода за пределы штаба
Экономическая эффективность для строительных компаний:
Стоимость аренды от 28 000 ₽/мес вместо аренды офисного помещения от 120 000 ₽/мес — экономия 77%
Срок окупаемости при покупке — от 24 месяцев благодаря стоимости от 680 000 ₽ вместо строительства капитального офиса от 4 500 000 ₽
Мобильность: переброска штаба на новый объект занимает 8-10 часов без потери функциональности
Предлагаем как аренду, так и покупку от «Профмастер»:
Аренда от 28 000 ₽/мес с доставкой и установкой
Продажа от 680 000 ₽ за базовую комплектацию, от 820 000 ₽ с электрификацией, отоплением 4 кВт и комплектом мебели (4 стола, 8 стульев)
Рассрочка до 36 месяцев без процентов для юридических лиц
Бесплатная доставка по России при покупке от 750 000 ₽
Технические характеристики:
Надёжная конструкция из профлиста:
Каркас из швеллера холодногнутого 120х50х3 мм и уголка 90х90х3 мм выдерживает ветровые нагрузки до 35 м/с
Наружная обшивка оцинкованным профлистом С8 толщиной 0,4 мм с защитой от коррозии до 20 лет
Утепление стен и пола минеральной ватой 50 мм, потолка — 100 мм позволяет эксплуатировать штаб при температурах до -15 градусов Цельсия
Габариты: длина 7,2 м, ширина 6 м, высота 2,4 м, общая площадь 43,2 м²
Инженерные решения для офисной работы:
3 окна ПВХ 0,8х1 м с поворотным механизмом обеспечивают естественное освещение всех помещений без искусственного света в дневное время
Входная дверь оргалитовая 2х0,8 м с оцинковкой + 3 межкомнатные двери для разделения зон
Раздельная отделка: ДВП в сухих помещениях, ПВХ в санузле с дополнительной герметизацией стыков
Пароизоляционная мембрана Класс В по всему периметру предотвращает образование конденсата при перепадах температур
Почему выбирают «Профмастер»: Компания «Профмастер» специализируется на модульных решениях с 2014 года. Наши штабы используются на объектах «Газпрома», «РЖД» и крупных строительных площадках в Санкт-Петербурге, Москве и Свердловской области. Гарантия: 36 месяцев при аренде, 60 месяцев при покупке. Все модули проходят сертификацию по требованиям пожарной безопасности и санитарным нормам. Доставка: 24 часа по СПб и Москве, 2-10 дней по регионам России. Готовы рассчитать штаб под ваш объект? Оставьте заявку — подготовим проект с планировкой за 30 минут!
Сколько человек комфортно работает в штабе площадью 43,2 м²?
В штабе комфортно размещаются 8 человек одновременно: руководитель в кабинете + 6-7 сотрудников в общем помещении. Для размещения 12+ человек рекомендуем штаб из 4 блоков — доплата 220 000 ₽. Максимальная нагрузка на пол — 250 кг/м².
Какая температура поддерживается внутри зимой при утеплении 50 мм?
Утепление 50 мм минеральной ватой обеспечивает комфортную эксплуатацию до -15 градусов Цельсия без отопления. Для работы в регионах Сибири устанавливаем систему отопления 4 кВт — доплата 95 000 ₽. При работе отопления поддерживается +18 градусов Цельсия внутри при -30 градусов Цельсия на улице.
Сколько стоит доставка в Челябинск?
Доставка штаба (3 блока) в Челябинск стоит 55 000 ₽. В стоимость входит погрузка двумя манипуляторами, транспортировка фурой, разгрузка и предварительная сборка на подготовленной площадке. Срок доставки — 4 дня. При заказе от 750 000 ₽ доставка бесплатная.
Можно ли переоборудовать штаб под жилой модуль для инженера?
Да, штаб легко адаптируется под жильё: убираем 2 перегородки для создания спальни 18 м², устанавливаем кухонный блок в общем помещении — доплата 65 000 ₽. Все работы выполняем на заводе перед отправкой. Предоставляем схему перепланировки бесплатно.
Как происходит монтаж трёхблочного штаба на объекте?
Монтаж занимает 8-10 часов силами бригады из 4 человек: выравнивание площадки, установка 3 блоков по схеме, сварка стыков, монтаж перегородок. Для подключения электричества (220В), водоснабжения и канализации требуется дополнительные 4 часа. Всю работу выполняем своими бригадами без привлечения субподрядчиков.
Сколько времени требуется на переброску штаба на новый объект?
Демонтаж, погрузка и транспортировка штаба на новый объект занимает 6-8 часов. На новой площадке сборка и ввод в эксплуатацию — дополнительные 8 часов. Итого полная переброска занимает менее суток против 2-3 недель на строительство капитального офиса.
Ключевые преимущества универсального штаба:
Функциональная планировка для управления объектом:
Рабочий кабинет 12 м² для руководителя с двумя окнами ПВХ для естественного освещения
Общее помещение 21,6 м² для размещения 6-8 сотрудников или организации переговоров с подрядчиками
Входной тамбур 4,8 м² снижает теплопотери при интенсивном проходе персонала на 40% по сравнению с прямым входом
Санузел 4,8 м² с унитазом «Компакт» и умывальником санфаянс обеспечивает соблюдение санитарных норм без выхода за пределы штаба
Экономическая эффективность для строительных компаний:
Стоимость аренды от 28 000 ₽/мес вместо аренды офисного помещения от 120 000 ₽/мес — экономия 77%
Срок окупаемости при покупке — от 24 месяцев благодаря стоимости от 680 000 ₽ вместо строительства капитального офиса от 4 500 000 ₽
Мобильность: переброска штаба на новый объект занимает 8-10 часов без потери функциональности
Предлагаем как аренду, так и покупку от «Профмастер»:
Аренда от 28 000 ₽/мес с доставкой и установкой
Продажа от 680 000 ₽ за базовую комплектацию, от 820 000 ₽ с электрификацией, отоплением 4 кВт и комплектом мебели (4 стола, 8 стульев)
Рассрочка до 36 месяцев без процентов для юридических лиц
Бесплатная доставка по России при покупке от 750 000 ₽
Технические характеристики:
Надёжная конструкция из профлиста:
Каркас из швеллера холодногнутого 120х50х3 мм и уголка 90х90х3 мм выдерживает ветровые нагрузки до 35 м/с
Наружная обшивка оцинкованным профлистом С8 толщиной 0,4 мм с защитой от коррозии до 20 лет
Утепление стен и пола минеральной ватой 50 мм, потолка — 100 мм позволяет эксплуатировать штаб при температурах до -15 градусов Цельсия
Габариты: длина 7,2 м, ширина 6 м, высота 2,4 м, общая площадь 43,2 м²
Инженерные решения для офисной работы:
3 окна ПВХ 0,8х1 м с поворотным механизмом обеспечивают естественное освещение всех помещений без искусственного света в дневное время
Входная дверь оргалитовая 2х0,8 м с оцинковкой + 3 межкомнатные двери для разделения зон
Раздельная отделка: ДВП в сухих помещениях, ПВХ в санузле с дополнительной герметизацией стыков
Пароизоляционная мембрана Класс В по всему периметру предотвращает образование конденсата при перепадах температур
Почему выбирают «Профмастер»: Компания «Профмастер» специализируется на модульных решениях с 2014 года. Наши штабы используются на объектах «Газпрома», «РЖД» и крупных строительных площадках в Санкт-Петербурге, Москве и Свердловской области. Гарантия: 36 месяцев при аренде, 60 месяцев при покупке. Все модули проходят сертификацию по требованиям пожарной безопасности и санитарным нормам. Доставка: 24 часа по СПб и Москве, 2-10 дней по регионам России. Готовы рассчитать штаб под ваш объект? Оставьте заявку — подготовим проект с планировкой за 30 минут!
Сколько человек комфортно работает в штабе площадью 43,2 м²?
В штабе комфортно размещаются 8 человек одновременно: руководитель в кабинете + 6-7 сотрудников в общем помещении. Для размещения 12+ человек рекомендуем штаб из 4 блоков — доплата 220 000 ₽. Максимальная нагрузка на пол — 250 кг/м².
Какая температура поддерживается внутри зимой при утеплении 50 мм?
Утепление 50 мм минеральной ватой обеспечивает комфортную эксплуатацию до -15 градусов Цельсия без отопления. Для работы в регионах Сибири устанавливаем систему отопления 4 кВт — доплата 95 000 ₽. При работе отопления поддерживается +18 градусов Цельсия внутри при -30 градусов Цельсия на улице.
Сколько стоит доставка в Челябинск?
Доставка штаба (3 блока) в Челябинск стоит 55 000 ₽. В стоимость входит погрузка двумя манипуляторами, транспортировка фурой, разгрузка и предварительная сборка на подготовленной площадке. Срок доставки — 4 дня. При заказе от 750 000 ₽ доставка бесплатная.
Можно ли переоборудовать штаб под жилой модуль для инженера?
Да, штаб легко адаптируется под жильё: убираем 2 перегородки для создания спальни 18 м², устанавливаем кухонный блок в общем помещении — доплата 65 000 ₽. Все работы выполняем на заводе перед отправкой. Предоставляем схему перепланировки бесплатно.
Как происходит монтаж трёхблочного штаба на объекте?
Монтаж занимает 8-10 часов силами бригады из 4 человек: выравнивание площадки, установка 3 блоков по схеме, сварка стыков, монтаж перегородок. Для подключения электричества (220В), водоснабжения и канализации требуется дополнительные 4 часа. Всю работу выполняем своими бригадами без привлечения субподрядчиков.
Сколько времени требуется на переброску штаба на новый объект?
Демонтаж, погрузка и транспортировка штаба на новый объект занимает 6-8 часов. На новой площадке сборка и ввод в эксплуатацию — дополнительные 8 часов. Итого полная переброска занимает менее суток против 2-3 недель на строительство капитального офиса.