Штаб строительства с залом совещаний, раздевалкой и столовой №21
788100 руб.
В наличии
Нет в наличии
- 60 площадок по всей РФ
- Быстрый расчет и доставка
- Большой ассортимент оборудования для стройки
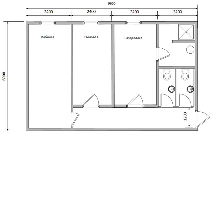
Штаб №21 9,6х6х2,4 м из 4 блоков, площадь 57,6 м². Зал совещаний, раздевалка, столовая, санузел с душем. Утепление 50-100 мм, ПВХ в влажных зонах. Аренда от 35 000 ₽/мес, продажа от 920 000 ₽. Доставка по СПб, Москве и России за 24ч.
- Артикул:
- ПР-МЗ-21
Штаб строительный №21 — это многофункциональное одноэтажное здание из четырёх блок-контейнеров для организации полного цикла жизнеобеспечения бригады на строительных объектах по всей России. В едином объёме 57,6 м² размещены зал совещаний для проведения планёров, раздевалка с индивидуальными местами, столовая для приёма пищи и санитарный блок с двумя унитазами, двумя умывальниками и душевой кабиной с бойлером 100 л. Такая компоновка полностью закрывает потребности бригады до 20 человек в условиях Санкт-Петербурга, Москвы и других регионов без необходимости аренды дополнительных помещений.
Ключевые преимущества многофункционального штаба:
Полный цикл жизнеобеспечения в одном модуле:
Зал совещаний площадью 18 м² для проведения ежедневных планёров с участием до 15 человек
Раздевалка с местами для хранения спецодежды и столовая на 12 посадочных мест в смежном помещении
Санузел с душевой кабиной и бойлером 100 л обеспечивает автономное горячее водоснабжение без подключения к центральной системе
Защита от влаги в критических зонах:
Стены и потолок санузла и душевой отделаны ПВХ-панелями для стойкости к постоянной влажности и простоты уборки
Два вытяжных вентилятора обеспечивают воздухообмен 60 м³/час в санитарном блоке, предотвращая образование конденсата и плесени
Пароизоляционная мембрана Класс В по всему периметру защищает утеплитель от проникновения влаги изнутри
Предлагаем как аренду, так и покупку от «Профмастер»:
Аренда от 35 000 ₽/мес с доставкой, установкой и полной сантехникой «под ключ»
Продажа от 920 000 ₽ за базовую комплектацию с профлистом С8 и утеплением 50/100 мм
Рассрочка до 36 месяцев без процентов для юридических лиц
Бесплатная доставка по России при покупке от 1 000 000 ₽
Технические характеристики:
Надёжная конструкция для круглогодичной эксплуатации:
Основание из холодногнутого швеллера 120х50х3 мм и угловых стоек из уголка 90х90х3 мм выдерживает снеговую нагрузку до 180 кг/м²
Внешняя обшивка оцинкованным профлистом С8 толщиной 0,4 мм синего цвета с защитой от коррозии в условиях повышенной влажности
Минеральная вата 50 мм в стенах и полу, 100 мм в потолке обеспечивает поддержание температуры +18 градусов Цельсия при наружной -20 градусов Цельсия с отоплением 5 кВт
Сантехнический узел повышенной комфортности:
Два унитаза «Компакт» и два умывальника со смесителями производства Россия
Один душевой поддон с ограждением и смесителем, бойлер 100 л для горячей воды
Полная внутренняя разводка сантехнических труб (5 линий) и два вытяжных вентилятора для эффективного воздухообмена
Почему выбирают «Профмастер»: Компания «Профмастер» специализируется на модульных конструкциях с 2014 года. Наши решения востребованы на строительных объектах, промышленных площадках и инфраструктурных проектах в Санкт-Петербурге, Москве и регионах России — от Калининграда до Владивостока. Гарантия: 24 месяца при аренде, 48 месяцев при покупке. Все модули проходят предпродажную проверку на герметичность, безопасность и соответствие техническим нормам. Доставка: 24 часа по СПб и Москве, 2-10 дней по регионам России. Готовы адаптировать планировку под вашу бригаду? Оставьте заявку — подготовим индивидуальную схему размещения за 20 минут!
Сколько человек может комфортно использовать все зоны штаба одновременно?
Зал совещаний рассчитан на 15 человек, столовая — на 12 человек за общим столом, раздевалка — на 20 комплектов спецодежды. Санузел с одной душевой кабиной обслуживает до 25 человек в смену при условии поэтапного использования. Для бригады 20 человек штаб №21 обеспечивает полный цикл жизнеобеспечения без очередей и неудобств.
Можно ли установить дополнительную душевую кабину?
Да, базовая комплектация включает одну душевую кабину. Установка второй кабины с поддоном, смесителем и шторкой — 42 000 ₽. Требуется дополнительный бойлер 50 л (+18 000 ₽) или замена штатного на 150 л (+12 000 ₽ доплата). Все работы выполняются на производстве до отправки — срок изготовления увеличивается на 1 рабочий день.
Какая минимальная площадка требуется для установки штаба?
Требуется ровная площадка размером 10,5х6,5 м с уклоном 2-3% для отвода дождевой воды. Достаточно щебёночного основания толщиной 15 см или бетонной плиты толщиной 10 см. Для установки на грунт используем винтовые опоры (+8 500 ₽) — не требуется бетонирование. Подведение коммуникаций: электричество 220В (3х4 мм²), водопровод и канализация — к одной точке входа в санузел.
Сколько стоит подключение отопления для зимней эксплуатации?
Для площади 57,6 м² при утеплении 50 мм рекомендуем 3 конвектора по 2 кВт (общая мощность 6 кВт) — 26 000 ₽ с установкой и подключением. Такая система поддерживает +18 градусов Цельсия внутри при -25 градусов Цельсия снаружи. Для регионов Сибири и Дальнего Востока — калорифер 10 кВт с притоком (+58 000 ₽) для эксплуатации до -40 градусов Цельсия.
Возможно ли изменить расположение санузла или столовой при заказе?
Да, при заказе от 2 штабов возможна индивидуальная планировка «с нуля» — перенос перегородок, изменение расположения дверных проёмов, объединение или разделение помещений. Стоимость разработки индивидуального проекта — 15 000 ₽, включая 3 варианта планировки и согласование. Срок изготовления нестандартного штаба — 10-12 рабочих дней против 5-7 дней для типовой комплектации.
Ключевые преимущества многофункционального штаба:
Полный цикл жизнеобеспечения в одном модуле:
Зал совещаний площадью 18 м² для проведения ежедневных планёров с участием до 15 человек
Раздевалка с местами для хранения спецодежды и столовая на 12 посадочных мест в смежном помещении
Санузел с душевой кабиной и бойлером 100 л обеспечивает автономное горячее водоснабжение без подключения к центральной системе
Защита от влаги в критических зонах:
Стены и потолок санузла и душевой отделаны ПВХ-панелями для стойкости к постоянной влажности и простоты уборки
Два вытяжных вентилятора обеспечивают воздухообмен 60 м³/час в санитарном блоке, предотвращая образование конденсата и плесени
Пароизоляционная мембрана Класс В по всему периметру защищает утеплитель от проникновения влаги изнутри
Предлагаем как аренду, так и покупку от «Профмастер»:
Аренда от 35 000 ₽/мес с доставкой, установкой и полной сантехникой «под ключ»
Продажа от 920 000 ₽ за базовую комплектацию с профлистом С8 и утеплением 50/100 мм
Рассрочка до 36 месяцев без процентов для юридических лиц
Бесплатная доставка по России при покупке от 1 000 000 ₽
Технические характеристики:
Надёжная конструкция для круглогодичной эксплуатации:
Основание из холодногнутого швеллера 120х50х3 мм и угловых стоек из уголка 90х90х3 мм выдерживает снеговую нагрузку до 180 кг/м²
Внешняя обшивка оцинкованным профлистом С8 толщиной 0,4 мм синего цвета с защитой от коррозии в условиях повышенной влажности
Минеральная вата 50 мм в стенах и полу, 100 мм в потолке обеспечивает поддержание температуры +18 градусов Цельсия при наружной -20 градусов Цельсия с отоплением 5 кВт
Сантехнический узел повышенной комфортности:
Два унитаза «Компакт» и два умывальника со смесителями производства Россия
Один душевой поддон с ограждением и смесителем, бойлер 100 л для горячей воды
Полная внутренняя разводка сантехнических труб (5 линий) и два вытяжных вентилятора для эффективного воздухообмена
Почему выбирают «Профмастер»: Компания «Профмастер» специализируется на модульных конструкциях с 2014 года. Наши решения востребованы на строительных объектах, промышленных площадках и инфраструктурных проектах в Санкт-Петербурге, Москве и регионах России — от Калининграда до Владивостока. Гарантия: 24 месяца при аренде, 48 месяцев при покупке. Все модули проходят предпродажную проверку на герметичность, безопасность и соответствие техническим нормам. Доставка: 24 часа по СПб и Москве, 2-10 дней по регионам России. Готовы адаптировать планировку под вашу бригаду? Оставьте заявку — подготовим индивидуальную схему размещения за 20 минут!
Сколько человек может комфортно использовать все зоны штаба одновременно?
Зал совещаний рассчитан на 15 человек, столовая — на 12 человек за общим столом, раздевалка — на 20 комплектов спецодежды. Санузел с одной душевой кабиной обслуживает до 25 человек в смену при условии поэтапного использования. Для бригады 20 человек штаб №21 обеспечивает полный цикл жизнеобеспечения без очередей и неудобств.
Можно ли установить дополнительную душевую кабину?
Да, базовая комплектация включает одну душевую кабину. Установка второй кабины с поддоном, смесителем и шторкой — 42 000 ₽. Требуется дополнительный бойлер 50 л (+18 000 ₽) или замена штатного на 150 л (+12 000 ₽ доплата). Все работы выполняются на производстве до отправки — срок изготовления увеличивается на 1 рабочий день.
Какая минимальная площадка требуется для установки штаба?
Требуется ровная площадка размером 10,5х6,5 м с уклоном 2-3% для отвода дождевой воды. Достаточно щебёночного основания толщиной 15 см или бетонной плиты толщиной 10 см. Для установки на грунт используем винтовые опоры (+8 500 ₽) — не требуется бетонирование. Подведение коммуникаций: электричество 220В (3х4 мм²), водопровод и канализация — к одной точке входа в санузел.
Сколько стоит подключение отопления для зимней эксплуатации?
Для площади 57,6 м² при утеплении 50 мм рекомендуем 3 конвектора по 2 кВт (общая мощность 6 кВт) — 26 000 ₽ с установкой и подключением. Такая система поддерживает +18 градусов Цельсия внутри при -25 градусов Цельсия снаружи. Для регионов Сибири и Дальнего Востока — калорифер 10 кВт с притоком (+58 000 ₽) для эксплуатации до -40 градусов Цельсия.
Возможно ли изменить расположение санузла или столовой при заказе?
Да, при заказе от 2 штабов возможна индивидуальная планировка «с нуля» — перенос перегородок, изменение расположения дверных проёмов, объединение или разделение помещений. Стоимость разработки индивидуального проекта — 15 000 ₽, включая 3 варианта планировки и согласование. Срок изготовления нестандартного штаба — 10-12 рабочих дней против 5-7 дней для типовой комплектации.