Штаб строительства с залом совещаний № 17
820000 руб.
В наличии
Нет в наличии
- 60 площадок по всей РФ
- Быстрый расчет и доставка
- Большой ассортимент оборудования для стройки
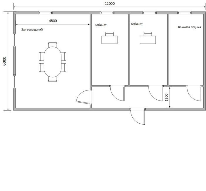
Штаб №17 12х6х2,4 м из 5 блоков, площадь 72 м². 3 офисных помещения, зал совещаний, тамбур-коридор. Утепление 50-100 мм, отделка на выбор. Аренда от 38 000 ₽/мес, продажа от 980 000 ₽. Доставка по СПб, Москве и России за 24ч.
- Артикул:
- ПР-МЗ-17
Штаб строительный №17 — это функциональное одноэтажное здание из пяти 6-метровых блок-контейнеров для организации управления на крупных строительных объектах по всей России. Планировка включает три отдельных офисных помещения и просторный зал совещаний площадью 32 м², способный вместить до 40 человек для планёров и совещаний. Зимний тамбур-коридор защищает все помещения от проникновения холода при входе, обеспечивая стабильную температуру внутри даже при -25 градусов Цельсия на улице. Общая площадь 72 м² оптимальна для размещения руководства и инженерных служб в условиях Санкт-Петербурга, Москвы и других регионов.
Ключевые преимущества штаба с залом совещаний:
Оптимальная планировка для управления:
Зал совещаний площадью 32 м² позволяет проводить собрания с участием до 40 человек без аренды дополнительных помещений
Три изолированных кабинета (общая площадь 28 м²) для размещения руководителей, инженеров и документооборота
Тамбур-коридор как буферная зона снижает теплопотери при частом входе/выходе на 30% по сравнению с прямыми входами
Гибкость внутренней отделки:
Стены: на выбор из 5 вариантов — ДВП, МДФ, оргалит, вагонка или ПВХ-панели под корпоративный стиль
Потолок: 3 варианта отделки — ДВП, вагонка или ПВХ-панели
Возможность усиления утепления до 100 мм в стенах (+48 000 ₽) для эксплуатации в регионах с морозами до -35 градусов Цельсия
Предлагаем как аренду, так и покупку от «Профмастер»:
Аренда от 38 000 ₽/мес с доставкой и установкой на подготовленную площадку
Продажа от 980 000 ₽ за базовую комплектацию с профлистом С8 и утеплением 50/100 мм
Рассрочка до 36 месяцев без процентов для юридических лиц
Бесплатная доставка по России при покупке от 1 100 000 ₽
Технические характеристики:
Прочная каркасная основа:
Основание из холодногнутого швеллера 120х50х3 мм и угловых стоек из уголка 90х90х3 мм для равномерного распределения нагрузки по площади 72 м²
Второстепенный каркас из строительной доски 40х100 мм для крепления утеплителя и внутренней отделки
Внешняя обшивка оцинкованным профлистом С8 толщиной 0,4 мм синего цвета с защитой от атмосферных воздействий
Теплозащита и освещение:
Минеральная вата 50 мм в стенах и полу, 100 мм в потолке как основной зоне теплопотерь
Пароизоляционная мембрана Класс В по всему периметру для предотвращения образования конденсата
Шесть ПВХ-окон 800х1000 мм поворотного типа обеспечивают естественное освещение всех помещений без дополнительных энергозатрат
Почему выбирают «Профмастер»: Компания «Профмастер» специализируется на модульных конструкциях с 2014 года. Наши решения востребованы на строительных объектах, промышленных площадках и инфраструктурных проектах в Санкт-Петербурге, Москве и регионах России — от Калининграда до Владивостока. Гарантия: 24 месяца при аренде, 48 месяцев при покупке. Все модули проходят предпродажную проверку на герметичность, безопасность и соответствие техническим нормам. Доставка: 24 часа по СПб и Москве, 2-10 дней по регионам России. Готовы подготовить планировку зала под ваш формат совещаний? Оставьте заявку — разработаем схему расстановки столов и стульев за 15 минут!
Сколько человек помещается в зале совещаний при разных форматах?
При формате «театр» (стулья рядами) — до 40 человек. При формате «переговоры» (столы по периметру) — до 24 человека. При формате «совещание» (один большой стол) — до 16 человек с комфортным размещением. Площадь зала 32 м² позволяет гибко менять расстановку под задачи дня без перепланировки конструкции.
Можно ли установить кондиционер для летней эксплуатации?
Да, для площади 72 м² рекомендуем сплит-систему 9 кВт (производительность охлаждения). Монтаж на стену зала совещаний — 18 000 ₽, включая установку и заправку фреоном. Для трёх кабинетов — три сплит-системы по 3,5 кВт общей стоимостью 42 000 ₽. Обязательное условие: электроподключение 220В с выделенной линией 16А на каждую систему.
Какие документы нужны для установки штаба на стройплощадке?
Для временного размещения (до 1 года) требуется только согласование с застройщиком или арендодателем территории. Разрешение на строительство не нужно — модуль относится к временным сооружениям. При установке на муниципальной земле — заявление в администрацию района (срок рассмотрения 10 рабочих дней). Мы предоставляем паспорт изделия, сертификаты на материалы и схему подключения коммуникаций для вашего пакета документов.
Сколько стоит подключение электричества и отопления?
Базовое подключение к электросети 220В (вводной кабель 3х4 мм², распределительный щит) — 12 000 ₽. Для отопления площади 72 м² при утеплении 50 мм: 3 конвектора по 2 кВт (общая мощность 6 кВт) — 24 000 ₽ с установкой. Итого полное подключение «под ключ» — от 36 000 ₽. Для регионов с морозами ниже -25 градусов Цельсия рекомендуем калорифер 12 кВт (+68 000 ₽).
Возможно ли объединить два штаба №17 для увеличения площади?
Да, два штаба №17 можно состыковать по длинной стороне (12 м) с устройством проходного тамбура между ними. Общая площадь составит 144 м² с двумя залами совещаний или одним залом на 80 человек. Стоимость стыковки: герметизация шва, устройство проёма с дверью, соединение электросетей — 85 000 ₽. Срок монтажа двух штабов с объединением — 1 рабочий день. Доставка двух модулей — за те же 24 часа по СПб и Москве при наличии свободных манипуляторов.
Ключевые преимущества штаба с залом совещаний:
Оптимальная планировка для управления:
Зал совещаний площадью 32 м² позволяет проводить собрания с участием до 40 человек без аренды дополнительных помещений
Три изолированных кабинета (общая площадь 28 м²) для размещения руководителей, инженеров и документооборота
Тамбур-коридор как буферная зона снижает теплопотери при частом входе/выходе на 30% по сравнению с прямыми входами
Гибкость внутренней отделки:
Стены: на выбор из 5 вариантов — ДВП, МДФ, оргалит, вагонка или ПВХ-панели под корпоративный стиль
Потолок: 3 варианта отделки — ДВП, вагонка или ПВХ-панели
Возможность усиления утепления до 100 мм в стенах (+48 000 ₽) для эксплуатации в регионах с морозами до -35 градусов Цельсия
Предлагаем как аренду, так и покупку от «Профмастер»:
Аренда от 38 000 ₽/мес с доставкой и установкой на подготовленную площадку
Продажа от 980 000 ₽ за базовую комплектацию с профлистом С8 и утеплением 50/100 мм
Рассрочка до 36 месяцев без процентов для юридических лиц
Бесплатная доставка по России при покупке от 1 100 000 ₽
Технические характеристики:
Прочная каркасная основа:
Основание из холодногнутого швеллера 120х50х3 мм и угловых стоек из уголка 90х90х3 мм для равномерного распределения нагрузки по площади 72 м²
Второстепенный каркас из строительной доски 40х100 мм для крепления утеплителя и внутренней отделки
Внешняя обшивка оцинкованным профлистом С8 толщиной 0,4 мм синего цвета с защитой от атмосферных воздействий
Теплозащита и освещение:
Минеральная вата 50 мм в стенах и полу, 100 мм в потолке как основной зоне теплопотерь
Пароизоляционная мембрана Класс В по всему периметру для предотвращения образования конденсата
Шесть ПВХ-окон 800х1000 мм поворотного типа обеспечивают естественное освещение всех помещений без дополнительных энергозатрат
Почему выбирают «Профмастер»: Компания «Профмастер» специализируется на модульных конструкциях с 2014 года. Наши решения востребованы на строительных объектах, промышленных площадках и инфраструктурных проектах в Санкт-Петербурге, Москве и регионах России — от Калининграда до Владивостока. Гарантия: 24 месяца при аренде, 48 месяцев при покупке. Все модули проходят предпродажную проверку на герметичность, безопасность и соответствие техническим нормам. Доставка: 24 часа по СПб и Москве, 2-10 дней по регионам России. Готовы подготовить планировку зала под ваш формат совещаний? Оставьте заявку — разработаем схему расстановки столов и стульев за 15 минут!
Сколько человек помещается в зале совещаний при разных форматах?
При формате «театр» (стулья рядами) — до 40 человек. При формате «переговоры» (столы по периметру) — до 24 человека. При формате «совещание» (один большой стол) — до 16 человек с комфортным размещением. Площадь зала 32 м² позволяет гибко менять расстановку под задачи дня без перепланировки конструкции.
Можно ли установить кондиционер для летней эксплуатации?
Да, для площади 72 м² рекомендуем сплит-систему 9 кВт (производительность охлаждения). Монтаж на стену зала совещаний — 18 000 ₽, включая установку и заправку фреоном. Для трёх кабинетов — три сплит-системы по 3,5 кВт общей стоимостью 42 000 ₽. Обязательное условие: электроподключение 220В с выделенной линией 16А на каждую систему.
Какие документы нужны для установки штаба на стройплощадке?
Для временного размещения (до 1 года) требуется только согласование с застройщиком или арендодателем территории. Разрешение на строительство не нужно — модуль относится к временным сооружениям. При установке на муниципальной земле — заявление в администрацию района (срок рассмотрения 10 рабочих дней). Мы предоставляем паспорт изделия, сертификаты на материалы и схему подключения коммуникаций для вашего пакета документов.
Сколько стоит подключение электричества и отопления?
Базовое подключение к электросети 220В (вводной кабель 3х4 мм², распределительный щит) — 12 000 ₽. Для отопления площади 72 м² при утеплении 50 мм: 3 конвектора по 2 кВт (общая мощность 6 кВт) — 24 000 ₽ с установкой. Итого полное подключение «под ключ» — от 36 000 ₽. Для регионов с морозами ниже -25 градусов Цельсия рекомендуем калорифер 12 кВт (+68 000 ₽).
Возможно ли объединить два штаба №17 для увеличения площади?
Да, два штаба №17 можно состыковать по длинной стороне (12 м) с устройством проходного тамбура между ними. Общая площадь составит 144 м² с двумя залами совещаний или одним залом на 80 человек. Стоимость стыковки: герметизация шва, устройство проёма с дверью, соединение электросетей — 85 000 ₽. Срок монтажа двух штабов с объединением — 1 рабочий день. Доставка двух модулей — за те же 24 часа по СПб и Москве при наличии свободных манипуляторов.