Штаб с санузлом № 26
1660000 руб.
В наличии
Нет в наличии
- 60 площадок по всей РФ
- Быстрый расчет и доставка
- Большой ассортимент оборудования для стройки
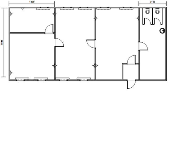
Штаб №26 из 7 блоков 8х16,8х2,4 м, площадь 134 м². 4 помещения различной площади, санузел, входной тамбур. Утепление 50-100 мм, отделка на выбор. Аренда от 55 000 ₽/мес, продажа от 1 800 000 ₽. Доставка по СПб, Москве и России за 24ч.
- Артикул:
- ПР-МЗ-26
Штаб строительный №26 — это самый вместительный одноэтажный модуль в линейке «Профмастер» с полезной площадью 134 м², собранный из семи 8-метровых блоков для размещения крупных бригад и административных служб на строительных объектах по всей России. Планировка включает четыре помещения различной площади (кабинеты и переговорная), санузел с двумя туалетными кабинами и умывальником, а также общий входной тамбур как буферная зона против холода и пыли. Такая компоновка обеспечивает комфортную работу до 35 человек одновременно в условиях Санкт-Петербурга, Москвы и других регионов.
Ключевые преимущества крупногабаритного штаба:
Максимальная площадь в одноэтажном исполнении:
Габариты 8х16,8 м при высоте 2,4 м дают 134 м² полезной площади без необходимости монтажа лестниц и соблюдения требований к двухэтажным конструкциям
Четыре изолированных помещения различной площади позволяют организовать кабинеты руководителей, переговорную и рабочие зоны в одном здании
Гибкая внутренняя отделка:
Стены сухих помещений: на выбор ДВП, МДФ, оргалит, вагонка или ПВХ-панели под стиль вашего проекта
Потолок: ДВП, вагонка или ПВХ-панели (на выбор при заказе)
Санузел и влажные зоны: только ПВХ-панели для соответствия санитарным нормам и долговечности при постоянной влажности
Предлагаем как аренду, так и покупку от «Профмастер»:
Аренда от 55 000 ₽/мес с доставкой, установкой и базовой сантехникой (2 унитаза, умывальник, разводка труб)
Продажа от 1 800 000 ₽ за комплектацию с профлистом С8 и базовым утеплением
Рассрочка до 36 месяцев без процентов для юридических лиц
Бесплатная доставка по России при покупке от 2 000 000 ₽
Технические характеристики:
Надёжная каркасная конструкция:
Основание из холодногнутого швеллера 120х50х3 мм и угловых стоек из уголка 90х90х3 мм для распределения нагрузки по всей длине 16,8 м
Второстепенный каркас из строительной доски 40х100 мм для крепления обшивки и утеплителя
Внешняя обшивка оцинкованным профлистом С8 толщиной 0,4 мм синего цвета с защитой от коррозии
Теплозащита и гидроизоляция:
Минеральная вата 50 мм в стенах и полу для базовой теплоизоляции
Минеральная вата 100 мм в потолке как основная зона теплопотерь
Пароизоляционная мембрана Класс В по всему периметру для предотвращения конденсата в условиях перепадов температур
Сантехнический узел и остекление:
Два унитаза «Компакт» производства Россия, один умывальник со смесителем, полная внутренняя разводка труб
Девять ПВХ-окон 800х1000 мм поворотного типа для естественного освещения рабочих помещений
Одно ПВХ-окно 500х500 мм в санузле для вентиляции
Почему выбирают «Профмастер»: Компания «Профмастер» специализируется на модульных конструкциях с 2014 года. Наши решения востребованы на строительных объектах, промышленных площадках и инфраструктурных проектах в Санкт-Петербурге, Москве и регионах России — от Калининграда до Владивостока. Гарантия: 24 месяца при аренде, 48 месяцев при покупке. Все модули проходят предпродажную проверку на герметичность, безопасность и соответствие техническим нормам. Доставка: 24 часа по СПб и Москве, 3-10 дней по регионам России. Готовы спроектировать планировку под ваши задачи? Оставьте заявку — подготовим 3 варианта расстановки помещений за 25 минут!
Сколько человек может одновременно работать в штабе №26?
Четыре основных помещения рассчитаны на размещение 28-32 человек при плотной компоновке (8-10 человек в крупных кабинетах, 4-6 человек в меньших). Санузел с двумя кабинами обслуживает до 40 человек в смену. Для комфортной работы рекомендуем использовать штаб для бригад до 35 человек с соблюдением норм площади 4 м² на человека.
Можно ли заказать дополнительные душевые в санузле?
Да, базовая комплектация включает только 2 унитаза и умывальник. Душевые кабины устанавливаются по запросу: одна кабина с поддоном и смесителем — от 38 000 ₽, две кабины — от 65 000 ₽. Требуется подведение горячей воды или установка дополнительного бойлера 80 л (+28 000 ₽). Все работы выполняются на производстве до отправки на объект.
Какие варианты отопления доступны для такого крупного помещения?
Для площади 134 м² рекомендуем: 4 конвектора по 2 кВт (общая мощность 8 кВт) для базового утепления 50 мм — поддерживает температуру до -15 градусов Цельсия. Для зимней эксплуатации в регионах с морозами до -30 градусов Цельсия — калориферная установка 15 кВт с приточной вентиляцией (+85 000 ₽). Подключение к электросети 380В обязательно для калорифера.
Сколько времени требуется на доставку и монтаж штаба в регионы России?
Доставка манипулятором: 24 часа по СПб и Москве, 3-5 дней до 1000 км от производства, 5-10 дней до 3000 км. Монтаж занимает 3-4 часа: установка на подготовленную площадку размером 9х17 м, выравнивание по уровню, стыковка блоков между собой. Подключение коммуникаций (электричество, вода, канализация) — дополнительно 2-3 часа силами нашей бригады или ваших специалистов.
Возможно ли изменить цвет внешней обшивки с синего на другой?
Да, стандартный цвет — синий по умолчанию. Покраска профлиста в любой цвет по шкале RAL возможна за доплату 24 000 ₽ для штаба №26 (площадь обшивки ~110 м²). Срок изготовления с нестандартным цветом увеличивается на 2 рабочих дня. Цвет согласовывается при оформлении заказа — предоставляем каталог RAL для выбора.
Ключевые преимущества крупногабаритного штаба:
Максимальная площадь в одноэтажном исполнении:
Габариты 8х16,8 м при высоте 2,4 м дают 134 м² полезной площади без необходимости монтажа лестниц и соблюдения требований к двухэтажным конструкциям
Четыре изолированных помещения различной площади позволяют организовать кабинеты руководителей, переговорную и рабочие зоны в одном здании
Гибкая внутренняя отделка:
Стены сухих помещений: на выбор ДВП, МДФ, оргалит, вагонка или ПВХ-панели под стиль вашего проекта
Потолок: ДВП, вагонка или ПВХ-панели (на выбор при заказе)
Санузел и влажные зоны: только ПВХ-панели для соответствия санитарным нормам и долговечности при постоянной влажности
Предлагаем как аренду, так и покупку от «Профмастер»:
Аренда от 55 000 ₽/мес с доставкой, установкой и базовой сантехникой (2 унитаза, умывальник, разводка труб)
Продажа от 1 800 000 ₽ за комплектацию с профлистом С8 и базовым утеплением
Рассрочка до 36 месяцев без процентов для юридических лиц
Бесплатная доставка по России при покупке от 2 000 000 ₽
Технические характеристики:
Надёжная каркасная конструкция:
Основание из холодногнутого швеллера 120х50х3 мм и угловых стоек из уголка 90х90х3 мм для распределения нагрузки по всей длине 16,8 м
Второстепенный каркас из строительной доски 40х100 мм для крепления обшивки и утеплителя
Внешняя обшивка оцинкованным профлистом С8 толщиной 0,4 мм синего цвета с защитой от коррозии
Теплозащита и гидроизоляция:
Минеральная вата 50 мм в стенах и полу для базовой теплоизоляции
Минеральная вата 100 мм в потолке как основная зона теплопотерь
Пароизоляционная мембрана Класс В по всему периметру для предотвращения конденсата в условиях перепадов температур
Сантехнический узел и остекление:
Два унитаза «Компакт» производства Россия, один умывальник со смесителем, полная внутренняя разводка труб
Девять ПВХ-окон 800х1000 мм поворотного типа для естественного освещения рабочих помещений
Одно ПВХ-окно 500х500 мм в санузле для вентиляции
Почему выбирают «Профмастер»: Компания «Профмастер» специализируется на модульных конструкциях с 2014 года. Наши решения востребованы на строительных объектах, промышленных площадках и инфраструктурных проектах в Санкт-Петербурге, Москве и регионах России — от Калининграда до Владивостока. Гарантия: 24 месяца при аренде, 48 месяцев при покупке. Все модули проходят предпродажную проверку на герметичность, безопасность и соответствие техническим нормам. Доставка: 24 часа по СПб и Москве, 3-10 дней по регионам России. Готовы спроектировать планировку под ваши задачи? Оставьте заявку — подготовим 3 варианта расстановки помещений за 25 минут!
Сколько человек может одновременно работать в штабе №26?
Четыре основных помещения рассчитаны на размещение 28-32 человек при плотной компоновке (8-10 человек в крупных кабинетах, 4-6 человек в меньших). Санузел с двумя кабинами обслуживает до 40 человек в смену. Для комфортной работы рекомендуем использовать штаб для бригад до 35 человек с соблюдением норм площади 4 м² на человека.
Можно ли заказать дополнительные душевые в санузле?
Да, базовая комплектация включает только 2 унитаза и умывальник. Душевые кабины устанавливаются по запросу: одна кабина с поддоном и смесителем — от 38 000 ₽, две кабины — от 65 000 ₽. Требуется подведение горячей воды или установка дополнительного бойлера 80 л (+28 000 ₽). Все работы выполняются на производстве до отправки на объект.
Какие варианты отопления доступны для такого крупного помещения?
Для площади 134 м² рекомендуем: 4 конвектора по 2 кВт (общая мощность 8 кВт) для базового утепления 50 мм — поддерживает температуру до -15 градусов Цельсия. Для зимней эксплуатации в регионах с морозами до -30 градусов Цельсия — калориферная установка 15 кВт с приточной вентиляцией (+85 000 ₽). Подключение к электросети 380В обязательно для калорифера.
Сколько времени требуется на доставку и монтаж штаба в регионы России?
Доставка манипулятором: 24 часа по СПб и Москве, 3-5 дней до 1000 км от производства, 5-10 дней до 3000 км. Монтаж занимает 3-4 часа: установка на подготовленную площадку размером 9х17 м, выравнивание по уровню, стыковка блоков между собой. Подключение коммуникаций (электричество, вода, канализация) — дополнительно 2-3 часа силами нашей бригады или ваших специалистов.
Возможно ли изменить цвет внешней обшивки с синего на другой?
Да, стандартный цвет — синий по умолчанию. Покраска профлиста в любой цвет по шкале RAL возможна за доплату 24 000 ₽ для штаба №26 (площадь обшивки ~110 м²). Срок изготовления с нестандартным цветом увеличивается на 2 рабочих дня. Цвет согласовывается при оформлении заказа — предоставляем каталог RAL для выбора.