Пожарный пост охраны с раздевалкой и душевыми № 12
1251100 руб.
В наличии
Нет в наличии
- 60 площадок по всей РФ
- Быстрый расчет и доставка
- Большой ассортимент оборудования для стройки
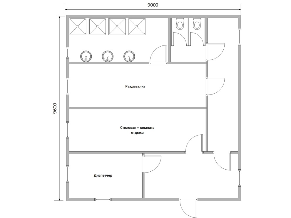
Пожарный пост №12 9х9,6х2,4 м из 4 блоков. Профлист С8, утепление 50 мм, 6 окон ПВХ. Аренда от 65 000 ₽/мес, продажа от 1 800 000 ₽. Доставка по СПб, Москве и России за 24ч.
- Артикул:
- ПР-ПО-12
Пожарный пост охраны с раздевалкой и душевыми №12 — это многофункциональный комплекс площадью 86,4 м² из четырёх 9-метровых блок-контейнеров для круглосуточного размещения пожарного расчёта на промышленных объектах, нефтегазовых месторождениях и строительных площадках по всей России. Благодаря продуманной планировке с раздевалкой, сантехническим блоком (4 душа, 2 туалета), комнатой отдыха/столовой и диспетчерской вы получаете полностью автономный пост для проживания и работы расчёта из 6-8 человек в условиях Санкт-Петербурга, Москвы и удалённых регионов.
Ключевые преимущества пожарного поста:
Комплексная инфраструктура для расчёта:
4 душевые кабины с эмалированными поддонами и 2 туалета «Компакт» обеспечивают соблюдение санитарных норм при круглосуточном дежурстве
Раздевалка с местом для хранения СИЗ и комнатой отдыха/столовой площадью 28 м² позволяют организовать полноценный быт расчёта без выезда с объекта
Диспетчерская зона с возможностью установки пультов связи и мониторинга обеспечивает оперативное реагирование на ЧС в радиусе 5 км
Экономическая эффективность для крупных объектов:
Стоимость покупки от 1 800 000 ₽ вместо строительства капитального здания от 8 000 000 ₽ — экономия до 78%
Аренда от 65 000 ₽/мес с возможностью выкупа после 24 месяцев по остаточной стоимости
Срок службы конструкции — до 25 лет благодаря оцинковке профлиста и обработке деревянных элементов антисептиком
Предлагаем как аренду, так и покупку от «Профмастер»:
Аренда от 65 000 ₽/мес с доставкой и установкой
Продажа от 1 800 000 ₽ за базовую комплектацию, от 2 200 000 ₽ с электрификацией, отоплением 6 кВт, мини-кухней и стеллажами
Рассрочка до 36 месяцев без процентов для юридических лиц
Бесплатная доставка по России при покупке от 2 000 000 ₽
Технические характеристики:
Надёжная конструкция для ответственных задач:
Каркас из швеллера холодногнутого 120х50х3 мм и уголка 90х90х3 мм выдерживает ветровые нагрузки до 35 м/с
Наружная обшивка оцинкованным профлистом С8 толщиной 0,4 мм обеспечивает защиту от коррозии до 20 лет
Утепление минеральной ватой 50 мм во всех конструкциях позволяет эксплуатировать пост при температурах до -15 градусов Цельсия
Габариты: длина 9 м, ширина 9,6 м, высота 2,4 м, общая площадь 86,4 м²
Инженерные системы под ключ:
6 окон ПВХ 0,8х1 м с поворотным механизмом для естественного освещения всех зон
1 окно ПВХ 500х500 мм в санузле для вентиляции влажных помещений
Сантехника: 4 душевых поддона, 2 унитаза «Компакт», 3 умывальника санфаянс — всё производства России
Раздельная отделка: ДВП в сухих помещениях, ПВХ в санблоках для защиты от влаги и конденсата
Внутренняя разводка сантехнических труб (9 точек) и вытяжной вентилятор в санузле
Почему выбирают «Профмастер»: Компания «Профмастер» специализируется на модульных решениях с 2014 года. Наши пожарные посты используются на объектах «Газпрома», «Роснефти» и промышленных парках в Санкт-Петербурге, Москве и Ямало-Ненецком автономном округе. Гарантия: 36 месяцев при аренде, 60 месяцев при покупке. Все модули проходят сертификацию по требованиям МЧС России и санитарным нормам. Доставка: 24 часа по СПб и Москве, 5-10 дней по регионам России. Готовы рассчитать пост под ваш объект? Оставьте заявку — подготовим проект с согласованием требований МЧС за 45 минут!
Сколько человек может размещаться в посту №12 одновременно?
Пост рассчитан на круглосуточное размещение пожарного расчёта из 6-8 человек. Раздевалка вмещает СИЗ для 8 человек, санблок с 4 душами и 2 туалетами обеспечивает обслуживание без очередей при смене дежурств. Для расчёта из 10+ человек рекомендуем удлиненную версию из 5 блоков — доплата 420 000 ₽.
Какая температура поддерживается внутри зимой при утеплении 50 мм?
Утепление 50 мм минеральной ватой обеспечивает эксплуатацию до -15 градусов Цельсия без дополнительного отопления. Для круглогодичной работы в регионах Сибири и Крайнего Севера устанавливаем систему отопления 6 кВт + дополнительный слой утеплителя 50 мм — доплата 185 000 ₽. При работе отопления поддерживается температура +18 градусов Цельсия внутри при -35 градусов Цельсия на улице.
Сколько стоит доставка в Ханты-Мансийск?
Доставка пожарного поста №12 (4 блока по 9 м) в Ханты-Мансийск стоит 195 000 ₽. В стоимость входит погрузка 3 манипуляторами, транспортировка колонной из 2 фур, разгрузка и предварительная сборка на подготовленной площадке. Срок доставки — 7-9 дней. При заказе от 2 200 000 ₽ доставка бесплатная.
Можно ли установить пульт управления пожарной сигнализацией?
Да, устанавливаем пульт управления с 8 зонами контроля, выводом на монитор 24" и резервным питанием от ИБП на 4 часа — доплата 145 000 ₽. Система интегрируется с датчиками дыма, тепла и ручными извещателями по периметру объекта. Все оборудование сертифицировано по требованиям МЧС России. Монтаж занимает 6 часов на объекте.
Как происходит подключение водоснабжения и канализации?
Подключение централизованных сетей занимает 5 часов: прокладка трубопровода от магистрали до ввода в пост, установка запорной арматуры, тестирование под давлением 6 атм. Для автономной работы комплектуем септиком «Танк» 3 м³ и скважинным насосом — доплата 285 000 ₽. Все коммуникации выводим в единый технический шкаф для удобства обслуживания.
Ключевые преимущества пожарного поста:
Комплексная инфраструктура для расчёта:
4 душевые кабины с эмалированными поддонами и 2 туалета «Компакт» обеспечивают соблюдение санитарных норм при круглосуточном дежурстве
Раздевалка с местом для хранения СИЗ и комнатой отдыха/столовой площадью 28 м² позволяют организовать полноценный быт расчёта без выезда с объекта
Диспетчерская зона с возможностью установки пультов связи и мониторинга обеспечивает оперативное реагирование на ЧС в радиусе 5 км
Экономическая эффективность для крупных объектов:
Стоимость покупки от 1 800 000 ₽ вместо строительства капитального здания от 8 000 000 ₽ — экономия до 78%
Аренда от 65 000 ₽/мес с возможностью выкупа после 24 месяцев по остаточной стоимости
Срок службы конструкции — до 25 лет благодаря оцинковке профлиста и обработке деревянных элементов антисептиком
Предлагаем как аренду, так и покупку от «Профмастер»:
Аренда от 65 000 ₽/мес с доставкой и установкой
Продажа от 1 800 000 ₽ за базовую комплектацию, от 2 200 000 ₽ с электрификацией, отоплением 6 кВт, мини-кухней и стеллажами
Рассрочка до 36 месяцев без процентов для юридических лиц
Бесплатная доставка по России при покупке от 2 000 000 ₽
Технические характеристики:
Надёжная конструкция для ответственных задач:
Каркас из швеллера холодногнутого 120х50х3 мм и уголка 90х90х3 мм выдерживает ветровые нагрузки до 35 м/с
Наружная обшивка оцинкованным профлистом С8 толщиной 0,4 мм обеспечивает защиту от коррозии до 20 лет
Утепление минеральной ватой 50 мм во всех конструкциях позволяет эксплуатировать пост при температурах до -15 градусов Цельсия
Габариты: длина 9 м, ширина 9,6 м, высота 2,4 м, общая площадь 86,4 м²
Инженерные системы под ключ:
6 окон ПВХ 0,8х1 м с поворотным механизмом для естественного освещения всех зон
1 окно ПВХ 500х500 мм в санузле для вентиляции влажных помещений
Сантехника: 4 душевых поддона, 2 унитаза «Компакт», 3 умывальника санфаянс — всё производства России
Раздельная отделка: ДВП в сухих помещениях, ПВХ в санблоках для защиты от влаги и конденсата
Внутренняя разводка сантехнических труб (9 точек) и вытяжной вентилятор в санузле
Почему выбирают «Профмастер»: Компания «Профмастер» специализируется на модульных решениях с 2014 года. Наши пожарные посты используются на объектах «Газпрома», «Роснефти» и промышленных парках в Санкт-Петербурге, Москве и Ямало-Ненецком автономном округе. Гарантия: 36 месяцев при аренде, 60 месяцев при покупке. Все модули проходят сертификацию по требованиям МЧС России и санитарным нормам. Доставка: 24 часа по СПб и Москве, 5-10 дней по регионам России. Готовы рассчитать пост под ваш объект? Оставьте заявку — подготовим проект с согласованием требований МЧС за 45 минут!
Сколько человек может размещаться в посту №12 одновременно?
Пост рассчитан на круглосуточное размещение пожарного расчёта из 6-8 человек. Раздевалка вмещает СИЗ для 8 человек, санблок с 4 душами и 2 туалетами обеспечивает обслуживание без очередей при смене дежурств. Для расчёта из 10+ человек рекомендуем удлиненную версию из 5 блоков — доплата 420 000 ₽.
Какая температура поддерживается внутри зимой при утеплении 50 мм?
Утепление 50 мм минеральной ватой обеспечивает эксплуатацию до -15 градусов Цельсия без дополнительного отопления. Для круглогодичной работы в регионах Сибири и Крайнего Севера устанавливаем систему отопления 6 кВт + дополнительный слой утеплителя 50 мм — доплата 185 000 ₽. При работе отопления поддерживается температура +18 градусов Цельсия внутри при -35 градусов Цельсия на улице.
Сколько стоит доставка в Ханты-Мансийск?
Доставка пожарного поста №12 (4 блока по 9 м) в Ханты-Мансийск стоит 195 000 ₽. В стоимость входит погрузка 3 манипуляторами, транспортировка колонной из 2 фур, разгрузка и предварительная сборка на подготовленной площадке. Срок доставки — 7-9 дней. При заказе от 2 200 000 ₽ доставка бесплатная.
Можно ли установить пульт управления пожарной сигнализацией?
Да, устанавливаем пульт управления с 8 зонами контроля, выводом на монитор 24" и резервным питанием от ИБП на 4 часа — доплата 145 000 ₽. Система интегрируется с датчиками дыма, тепла и ручными извещателями по периметру объекта. Все оборудование сертифицировано по требованиям МЧС России. Монтаж занимает 6 часов на объекте.
Как происходит подключение водоснабжения и канализации?
Подключение централизованных сетей занимает 5 часов: прокладка трубопровода от магистрали до ввода в пост, установка запорной арматуры, тестирование под давлением 6 атм. Для автономной работы комплектуем септиком «Танк» 3 м³ и скважинным насосом — доплата 285 000 ₽. Все коммуникации выводим в единый технический шкаф для удобства обслуживания.