Пост охраны Универсальный №2 из сэндвич-панелей под ключ
491810 руб.
В наличии
Нет в наличии
- 60 площадок по всей РФ
- Быстрый расчет и доставка
- Большой ассортимент оборудования для стройки
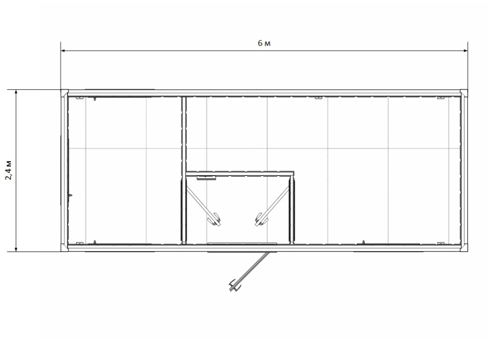
Пост охраны №2 6х2,4х2,6 м площадью 14,4 м². Сэндвич-панели 80 мм, 4 окна ПВХ, тамбур. Аренда от 22 000 ₽/мес, продажа от 520 000 ₽. Доставка по СПб, Москве и России за 24ч.
- Артикул:
- СП-ПО-02
Пост охраны универсальный №2 из сэндвич-панелей под ключ — это премиальный модуль площадью 14,4 м² для круглосуточной охраны промышленных объектов, нефтегазовых месторождений и складских комплексов по всей России. Благодаря продуманной планировке с тамбуром, рабочей зоной и изолированной комнатой отдыха, а также сэндвич-панелям 80 мм вы получаете автономный пост для комфортного пребывания охранника в условиях Санкт-Петербурга, Москвы и северных регионов до -40 градусов Цельсия.
Ключевые преимущества поста из сэндвич-панелей:
Максимальная теплоэффективность для северных регионов:
Стены из сэндвич-панелей на основе ПСБ-С толщиной 80 мм обеспечивают эксплуатацию до -30 градусов Цельсия без дополнительного отопления
Дополнительное утепление пола и кровли минеральной ватой 100 мм снижает теплопотери на 40% по сравнению с базовыми конструкциями
Тамбур как воздушный шлюз снижает проникновение холодного воздуха при открывании двери на 50%
Комфорт для круглосуточного дежурства:
Рабочая зона 7 м² с двумя окнами ПВХ для кругового обзора территории без слепых зон
Комната отдыха 5 м² с двумя окнами для естественного освещения, размещения раскладного кресла и мини-холодильника
Тамбур 2,4 м² обеспечивает сухое переодевание спецодежды и хранение обуви без загрязнения внутренних помещений
Противопожарная дверь 2050х800 мм с теплоизоляцией и ригельным замком гарантирует безопасность дежурного
Предлагаем как аренду, так и покупку от «Профмастер»:
Аренда от 22 000 ₽/мес с доставкой и установкой
Продажа от 520 000 ₽ за базовую комплектацию, от 630 000 ₽ под ключ с электрификацией, конвектором 3 кВт и мебелью (стол, 2 стула, раскладное кресло)
Рассрочка до 24 месяцев без процентов для юридических лиц
Бесплатная доставка по России при покупке от 550 000 ₽
Технические характеристики:
Надёжная конструкция из сэндвич-панелей:
Каркас из швеллера холодногнутого 100х50х3 мм и уголка 90х90х3 мм выдерживает ветровые нагрузки до 40 м/с
Стены из сэндвич-панелей ПСБ-С толщиной 80 мм с коэффициентом теплопроводности 0,036 Вт/(м·К)
Габариты: длина 6 м, ширина 2,4 м, высота 2,6 м, площадь 14,4 м²
Пароизоляционная мембрана Класс В по всему периметру предотвращает образование конденсата в утеплителе
Инженерная комплектация под ключ:
4 окна ПВХ 900х1100 мм с двухкамерным стеклопакетом и поворотно-откидным механизмом для проветривания без сквозняков
Противопожарная дверь 2050х800 мм с порошковой окраской, теплоизоляцией и ригельным замком
2 межкомнатные двери МДФ 2000х800 мм для разделения рабочей зоны и комнаты отдыха
Внутренняя отделка: стены белые (внутренний слой панелей), потолок ПВХ, пол ЦСП 12 мм для нагрузки до 300 кг/м²
Базовая электрификация: кабель ВВГ 3х2,5 мм, УЗО, 6 розеток, 4 светильника, автоматика
Почему выбирают «Профмастер»: Компания «Профмастер» специализируется на модульных решениях с 2014 года. Наши посты из сэндвич-панелей используются на объектах «Газпрома», «Норникеля» и нефтегазовых месторождениях Ямала и Ненецкого автономного округа. Гарантия: 36 месяцев при аренде, 60 месяцев при покупке. Все модули проходят сертификацию по требованиям пожарной безопасности и охраны труда. Доставка: 24 часа по СПб и Москве, 2-10 дней по регионам России. Готовы рассчитать пост под ваш объект? Оставьте заявку — подготовим проект с привязкой к воротам за 30 минут!
Сколько человек может дежурить в посту №2 одновременно?
В посту комфортно работают 2 охранника одновременно: один в рабочей зоне у окон наблюдения, второй — в комнате отдыха для немедленной замены. Для круглосуточной работы рекомендуем график «сутки через двое» для двух человек. Максимальная нагрузка на пол — 300 кг/м².
Какая температура поддерживается внутри зимой при утеплении 80 мм?
Сэндвич-панели 80 мм на основе ПСБ-С обеспечивают комфортную эксплуатацию до -30 градусов Цельсия без отопления. Для работы в Якутии и на Ямале устанавливаем конвектор 3 кВт — доплата 28 000 ₽. При работе конвектора поддерживается +18 градусов Цельсия внутри при -40 градусов Цельсия на улице.
Сколько стоит доставка поста в Мурманск?
Доставка поста охраны №2 (1 модуль 6 м) в Мурманск стоит 78 000 ₽. В стоимость входит погрузка манипулятором, транспортировка фурой, разгрузка и установка на подготовленную площадку. Срок доставки — 4 дня. При покупке от 550 000 ₽ доставка бесплатная.
Можно ли установить систему видеонаблюдения и СКУД?
Да, устанавливаем 4 камеры видеонаблюдения с записью на 30 дней + система контроля доступа с турникетом — доплата 68 000 ₽. Камеры монтируются на углах поста для кругового обзора 360 градусов. Все оборудование сертифицировано и интегрируется с пультом управления в рабочей зоне. Монтаж занимает 3 часа на объекте.
Как происходит подключение коммуникаций на удалённом объекте?
Подключение электричества (220В) занимает 1,5 часа. Для объектов без центральных сетей комплектуем автономным комплексом: дизель-генератор 5 кВт + септик «Танк» 1,5 м³ + скважинный насос — доплата 320 000 ₽. Все коммуникации выводим в единый технический шкаф у тамбура для удобства обслуживания. Монтаж выполняем своими бригадами без привлечения субподрядчиков.
Ключевые преимущества поста из сэндвич-панелей:
Максимальная теплоэффективность для северных регионов:
Стены из сэндвич-панелей на основе ПСБ-С толщиной 80 мм обеспечивают эксплуатацию до -30 градусов Цельсия без дополнительного отопления
Дополнительное утепление пола и кровли минеральной ватой 100 мм снижает теплопотери на 40% по сравнению с базовыми конструкциями
Тамбур как воздушный шлюз снижает проникновение холодного воздуха при открывании двери на 50%
Комфорт для круглосуточного дежурства:
Рабочая зона 7 м² с двумя окнами ПВХ для кругового обзора территории без слепых зон
Комната отдыха 5 м² с двумя окнами для естественного освещения, размещения раскладного кресла и мини-холодильника
Тамбур 2,4 м² обеспечивает сухое переодевание спецодежды и хранение обуви без загрязнения внутренних помещений
Противопожарная дверь 2050х800 мм с теплоизоляцией и ригельным замком гарантирует безопасность дежурного
Предлагаем как аренду, так и покупку от «Профмастер»:
Аренда от 22 000 ₽/мес с доставкой и установкой
Продажа от 520 000 ₽ за базовую комплектацию, от 630 000 ₽ под ключ с электрификацией, конвектором 3 кВт и мебелью (стол, 2 стула, раскладное кресло)
Рассрочка до 24 месяцев без процентов для юридических лиц
Бесплатная доставка по России при покупке от 550 000 ₽
Технические характеристики:
Надёжная конструкция из сэндвич-панелей:
Каркас из швеллера холодногнутого 100х50х3 мм и уголка 90х90х3 мм выдерживает ветровые нагрузки до 40 м/с
Стены из сэндвич-панелей ПСБ-С толщиной 80 мм с коэффициентом теплопроводности 0,036 Вт/(м·К)
Габариты: длина 6 м, ширина 2,4 м, высота 2,6 м, площадь 14,4 м²
Пароизоляционная мембрана Класс В по всему периметру предотвращает образование конденсата в утеплителе
Инженерная комплектация под ключ:
4 окна ПВХ 900х1100 мм с двухкамерным стеклопакетом и поворотно-откидным механизмом для проветривания без сквозняков
Противопожарная дверь 2050х800 мм с порошковой окраской, теплоизоляцией и ригельным замком
2 межкомнатные двери МДФ 2000х800 мм для разделения рабочей зоны и комнаты отдыха
Внутренняя отделка: стены белые (внутренний слой панелей), потолок ПВХ, пол ЦСП 12 мм для нагрузки до 300 кг/м²
Базовая электрификация: кабель ВВГ 3х2,5 мм, УЗО, 6 розеток, 4 светильника, автоматика
Почему выбирают «Профмастер»: Компания «Профмастер» специализируется на модульных решениях с 2014 года. Наши посты из сэндвич-панелей используются на объектах «Газпрома», «Норникеля» и нефтегазовых месторождениях Ямала и Ненецкого автономного округа. Гарантия: 36 месяцев при аренде, 60 месяцев при покупке. Все модули проходят сертификацию по требованиям пожарной безопасности и охраны труда. Доставка: 24 часа по СПб и Москве, 2-10 дней по регионам России. Готовы рассчитать пост под ваш объект? Оставьте заявку — подготовим проект с привязкой к воротам за 30 минут!
Сколько человек может дежурить в посту №2 одновременно?
В посту комфортно работают 2 охранника одновременно: один в рабочей зоне у окон наблюдения, второй — в комнате отдыха для немедленной замены. Для круглосуточной работы рекомендуем график «сутки через двое» для двух человек. Максимальная нагрузка на пол — 300 кг/м².
Какая температура поддерживается внутри зимой при утеплении 80 мм?
Сэндвич-панели 80 мм на основе ПСБ-С обеспечивают комфортную эксплуатацию до -30 градусов Цельсия без отопления. Для работы в Якутии и на Ямале устанавливаем конвектор 3 кВт — доплата 28 000 ₽. При работе конвектора поддерживается +18 градусов Цельсия внутри при -40 градусов Цельсия на улице.
Сколько стоит доставка поста в Мурманск?
Доставка поста охраны №2 (1 модуль 6 м) в Мурманск стоит 78 000 ₽. В стоимость входит погрузка манипулятором, транспортировка фурой, разгрузка и установка на подготовленную площадку. Срок доставки — 4 дня. При покупке от 550 000 ₽ доставка бесплатная.
Можно ли установить систему видеонаблюдения и СКУД?
Да, устанавливаем 4 камеры видеонаблюдения с записью на 30 дней + система контроля доступа с турникетом — доплата 68 000 ₽. Камеры монтируются на углах поста для кругового обзора 360 градусов. Все оборудование сертифицировано и интегрируется с пультом управления в рабочей зоне. Монтаж занимает 3 часа на объекте.
Как происходит подключение коммуникаций на удалённом объекте?
Подключение электричества (220В) занимает 1,5 часа. Для объектов без центральных сетей комплектуем автономным комплексом: дизель-генератор 5 кВт + септик «Танк» 1,5 м³ + скважинный насос — доплата 320 000 ₽. Все коммуникации выводим в единый технический шкаф у тамбура для удобства обслуживания. Монтаж выполняем своими бригадами без привлечения субподрядчиков.