Пост охраны универсальный №2 из профлиста
214000 руб.
В наличии
Нет в наличии
- 60 площадок по всей РФ
- Быстрый расчет и доставка
- Большой ассортимент оборудования для стройки
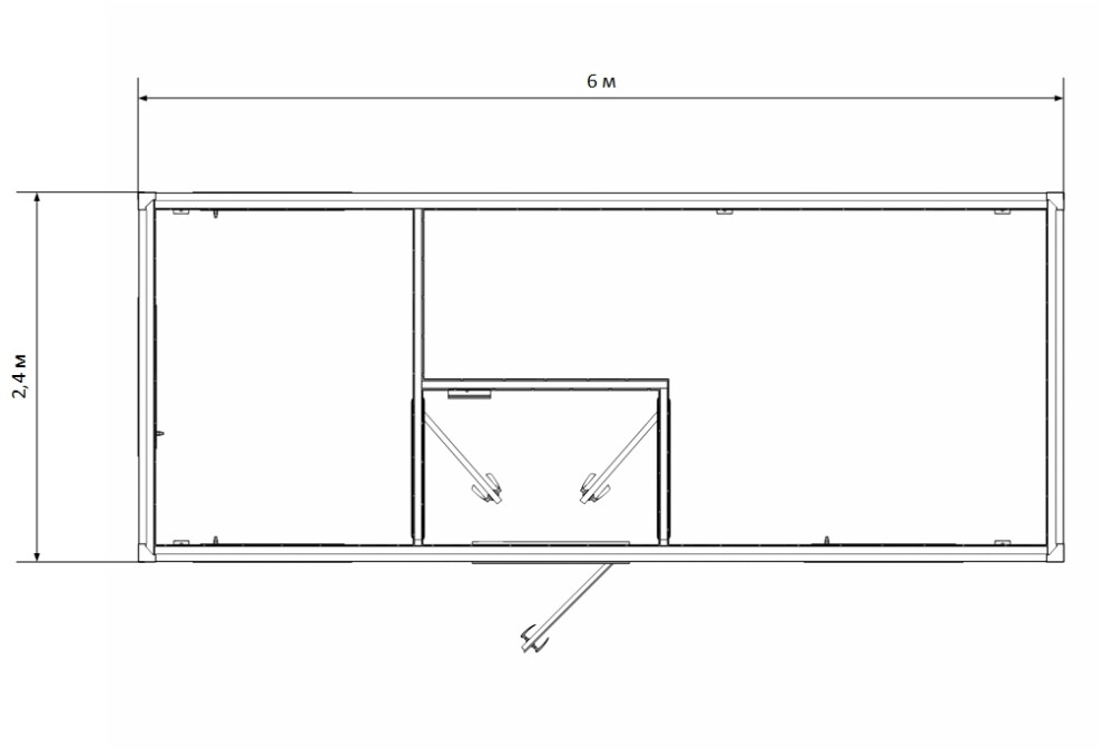
Пост охраны №2 6х2,4х2,4 м площадью 14,4 м². Профлист С8, утепление 50 мм, 4 окна ПВХ, тамбур. Аренда от 18 000 ₽/мес, продажа от 420 000 ₽. Доставка по СПб, Москве и России за 24ч.
- Артикул:
- ПР-ПО-02
Пост охраны универсальный №2 из профлиста — это функциональный модуль площадью 14,4 м² на базе 6-метрового блок-контейнера для круглосуточного контроля на промышленных объектах, складах и строительных площадках по всей России. Благодаря продуманной планировке с рабочей зоной, комнатой отдыха и тамбуром вы получаете автономный пост, где охранник не покидает рабочее место в течение смены — это повышает безопасность и обеспечивает мгновенное реагирование на ЧС в условиях Санкт-Петербурга, Москвы и регионов.
Ключевые преимущества поста с комнатой отдыха:
Круглосуточная готовность без перерывов:
Тамбур между входом и рабочей зоной снижает теплопотери на 45% при открывании двери зимой
Комната отдыха площадью 5 м² позволяет охраннику отдохнуть, перекусить или даже переночевать без покидания поста
Разделение зон межкомнатными дверями обеспечивает соблюдение требований охраны труда при смене дежурств
Экономическая эффективность для бизнеса:
Стоимость аренды от 18 000 ₽/мес вместо найма второго охранника для смены — окупаемость за 3 месяца
Срок службы конструкции — до 20 лет благодаря оцинковке профлиста С8 и защите каркаса от коррозии
Мобильность: переброска поста на новый объект занимает 4 часа без потери функциональности
Предлагаем как аренду, так и покупку от «Профмастер»:
Аренда от 18 000 ₽/мес с доставкой и установкой
Продажа от 420 000 ₽ за базовую комплектацию, от 510 000 ₽ с электрификацией, конвектором 2 кВт и комплектом мебели (стол, 2 стула, раскладное кресло)
Рассрочка до 24 месяцев без процентов для юридических лиц
Бесплатная доставка по России при покупке от 450 000 ₽
Технические характеристики:
Надёжная конструкция из профлиста:
Каркас из швеллера холодногнутого 100х50х3 мм и уголка 90х90х3 мм выдерживает ветровые нагрузки до 35 м/с
Наружная обшивка оцинкованным профлистом С8 толщиной 0,4 мм с защитой от коррозии до 20 лет
Утепление минеральной ватой 50 мм по стенам, полу и потолку позволяет эксплуатировать пост при температурах до -15 градусов Цельсия
Пароизоляционная мембрана Класс В предотвращает образование конденсата при перепадах температур
Продуманная планировка для работы и отдыха:
Рабочая зона 7 м² с двумя окнами ПВХ для кругового обзора территории
Комната отдыха 5 м² с двумя окнами для естественного освещения и вентиляции
Тамбур 2,4 м² как буферная зона между улицей и внутренними помещениями
4 окна ПВХ 0,8х1 м с поворотным механизмом для проветривания без сквозняков
Входная дверь оргалитовая 2х0,8 м с оцинковкой + 2 межкомнатные двери для разделения зон
Почему выбирают «Профмастер»: Компания «Профмастер» специализируется на модульных решениях с 2014 года. Наши посты охраны с комнатой отдыха используются на объектах «Газпрома», «РЖД» и логистических терминалах в Санкт-Петербурге, Москве и Свердловской области. Гарантия: 24 месяца при аренде, 48 месяцев при покупке. Все модули проходят проверку на герметичность стыков и соответствие требованиям охраны труда. Доставка: 24 часа по СПб и Москве, 2-10 дней по регионам России. Готовы рассчитать пост под ваш объект? Оставьте заявку — подготовим проект с планировкой за 25 минут!
Сколько человек может дежурить в посту №2 одновременно?
В посту комфортно работают 2 охранника одновременно: один в рабочей зоне у окон наблюдения, второй — в комнате отдыха для немедленной замены. Для круглосуточной работы рекомендуем график «сутки через двое» для двух человек. Максимальная нагрузка на пол — 250 кг/м².
Какая температура поддерживается внутри зимой при утеплении 50 мм?
Утепление 50 мм минеральной ватой обеспечивает комфортную эксплуатацию до -15 градусов Цельсия без отопления. Для работы при температурах ниже -15 градусов Цельсия устанавливаем конвектор 2 кВт — доплата 22 000 ₽. При работе конвектора поддерживается +18 градусов Цельсия внутри при -25 градусов Цельсия на улице.
Сколько стоит доставка поста в Тюмень?
Доставка поста охраны №2 (1 модуль 6 м) в Тюмень стоит 58 000 ₽. В стоимость входит погрузка манипулятором, транспортировка фурой, разгрузка и установка на подготовленную площадку. Срок доставки — 5 дней. При покупке от 450 000 ₽ доставка бесплатная.
Можно ли установить пост без фундамента?
Да, пост устанавливается без фундамента на ровную утрамбованную площадку с уклоном не более 2%. Для неровных участков используем подкладные брусья 100х100 мм — доплата 4 500 ₽ за комплект. На болотистых грунтах рекомендуем 4 винтовые сваи диаметром 89 мм — стоимость 22 000 ₽ с монтажом.
Как происходит подключение электричества и сколько мощности требуется?
Подключение электричества (220В) занимает 1 час: прокладка кабеля от распределительного щита до вводного автомата поста, заземление, тестирование. Требуемая мощность — 3 кВт (освещение + конвектор + бытовые приборы в комнате отдыха). Для автономной работы комплектуем дизель-генератором 3 кВт — доплата 95 000 ₽.
Ключевые преимущества поста с комнатой отдыха:
Круглосуточная готовность без перерывов:
Тамбур между входом и рабочей зоной снижает теплопотери на 45% при открывании двери зимой
Комната отдыха площадью 5 м² позволяет охраннику отдохнуть, перекусить или даже переночевать без покидания поста
Разделение зон межкомнатными дверями обеспечивает соблюдение требований охраны труда при смене дежурств
Экономическая эффективность для бизнеса:
Стоимость аренды от 18 000 ₽/мес вместо найма второго охранника для смены — окупаемость за 3 месяца
Срок службы конструкции — до 20 лет благодаря оцинковке профлиста С8 и защите каркаса от коррозии
Мобильность: переброска поста на новый объект занимает 4 часа без потери функциональности
Предлагаем как аренду, так и покупку от «Профмастер»:
Аренда от 18 000 ₽/мес с доставкой и установкой
Продажа от 420 000 ₽ за базовую комплектацию, от 510 000 ₽ с электрификацией, конвектором 2 кВт и комплектом мебели (стол, 2 стула, раскладное кресло)
Рассрочка до 24 месяцев без процентов для юридических лиц
Бесплатная доставка по России при покупке от 450 000 ₽
Технические характеристики:
Надёжная конструкция из профлиста:
Каркас из швеллера холодногнутого 100х50х3 мм и уголка 90х90х3 мм выдерживает ветровые нагрузки до 35 м/с
Наружная обшивка оцинкованным профлистом С8 толщиной 0,4 мм с защитой от коррозии до 20 лет
Утепление минеральной ватой 50 мм по стенам, полу и потолку позволяет эксплуатировать пост при температурах до -15 градусов Цельсия
Пароизоляционная мембрана Класс В предотвращает образование конденсата при перепадах температур
Продуманная планировка для работы и отдыха:
Рабочая зона 7 м² с двумя окнами ПВХ для кругового обзора территории
Комната отдыха 5 м² с двумя окнами для естественного освещения и вентиляции
Тамбур 2,4 м² как буферная зона между улицей и внутренними помещениями
4 окна ПВХ 0,8х1 м с поворотным механизмом для проветривания без сквозняков
Входная дверь оргалитовая 2х0,8 м с оцинковкой + 2 межкомнатные двери для разделения зон
Почему выбирают «Профмастер»: Компания «Профмастер» специализируется на модульных решениях с 2014 года. Наши посты охраны с комнатой отдыха используются на объектах «Газпрома», «РЖД» и логистических терминалах в Санкт-Петербурге, Москве и Свердловской области. Гарантия: 24 месяца при аренде, 48 месяцев при покупке. Все модули проходят проверку на герметичность стыков и соответствие требованиям охраны труда. Доставка: 24 часа по СПб и Москве, 2-10 дней по регионам России. Готовы рассчитать пост под ваш объект? Оставьте заявку — подготовим проект с планировкой за 25 минут!
Сколько человек может дежурить в посту №2 одновременно?
В посту комфортно работают 2 охранника одновременно: один в рабочей зоне у окон наблюдения, второй — в комнате отдыха для немедленной замены. Для круглосуточной работы рекомендуем график «сутки через двое» для двух человек. Максимальная нагрузка на пол — 250 кг/м².
Какая температура поддерживается внутри зимой при утеплении 50 мм?
Утепление 50 мм минеральной ватой обеспечивает комфортную эксплуатацию до -15 градусов Цельсия без отопления. Для работы при температурах ниже -15 градусов Цельсия устанавливаем конвектор 2 кВт — доплата 22 000 ₽. При работе конвектора поддерживается +18 градусов Цельсия внутри при -25 градусов Цельсия на улице.
Сколько стоит доставка поста в Тюмень?
Доставка поста охраны №2 (1 модуль 6 м) в Тюмень стоит 58 000 ₽. В стоимость входит погрузка манипулятором, транспортировка фурой, разгрузка и установка на подготовленную площадку. Срок доставки — 5 дней. При покупке от 450 000 ₽ доставка бесплатная.
Можно ли установить пост без фундамента?
Да, пост устанавливается без фундамента на ровную утрамбованную площадку с уклоном не более 2%. Для неровных участков используем подкладные брусья 100х100 мм — доплата 4 500 ₽ за комплект. На болотистых грунтах рекомендуем 4 винтовые сваи диаметром 89 мм — стоимость 22 000 ₽ с монтажом.
Как происходит подключение электричества и сколько мощности требуется?
Подключение электричества (220В) занимает 1 час: прокладка кабеля от распределительного щита до вводного автомата поста, заземление, тестирование. Требуемая мощность — 3 кВт (освещение + конвектор + бытовые приборы в комнате отдыха). Для автономной работы комплектуем дизель-генератором 3 кВт — доплата 95 000 ₽.