Модульное здание универсальное №6 из профлиста
1080000 руб.
В наличии
Нет в наличии
- 60 площадок по всей РФ
- Быстрый расчет и доставка
- Большой ассортимент оборудования для стройки
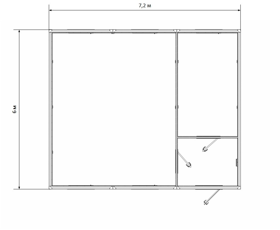
Модульное здание №6 из профлиста: 6 контейнеров, 2 этажа, общая площадь 86,4 м². Утепление 50/100 мм, 10 ПВХ-окон, лестница. Аренда от 55 000 ₽/мес, продажа от 2 450 000 ₽. Доставка по СПб, Москве и России за 24ч.
- Артикул:
- ПР-МЗ-06
Модульное здание универсальное №6 — это двухэтажное решение из шести блок-контейнеров для создания офисных, административных или бытовых комплексов по всей России. Благодаря площади 86,4 м² и продуманной планировке с тамбуром вы получаете универсальное помещение, готовое к использованию в условиях Санкт-Петербурга, Москвы и других регионов.
Ключевые преимущества модульного здания:
Большая полезная площадь:
Общая площадь 86,4 м² при компактных габаритах 6х7,2х2,4 м позволяет разместить до 6 отдельных офисов или зон
Конструкция из 6 стандартных блок-контейнеров обеспечивает надежность и возможность быстрой перепланировки
Быстрое изготовление и монтаж:
Сборка на объекте силами наших специалистов занимает 1 день
Каркас из швеллера 120х50х3 мм и уголка 90х90х3 мм гарантирует устойчивость без капитального фундамента
Внешняя лестница с просечкой и перилами обеспечивает безопасный доступ на второй этаж
Предлагаем как аренду, так и покупку от «Профмастер»:
Аренда от 55 000 ₽/мес с доставкой и сборкой
Продажа от 2 450 000 ₽ за базовую комплектацию
Рассрочка до 36 месяцев без процентов для юридических лиц
Бесплатная доставка по России при покупке от 2 500 000 ₽
Технические характеристики:
Конструкция и материалы:
Каркас из холодногнутого швеллера 120х50х3 мм и уголка 90х90х3 мм
Внешняя обшивка — оцинкованный профлист С8 толщиной 0,4 мм
Внутренняя отделка стен и потолка — ДВП белого цвета
Плоская сварная кровля из металлического листа 1 мм с герметичными швами
Утепление и комфорт:
Стены и пол: минеральная вата 50 мм
Потолок: минеральная вата 100 мм
Пароизоляционная мембрана Класс В по всему контуру
10 ПВХ-окон размером 0,8х1 м и 5 дверей (2 входные, 3 межкомнатные)
Почему выбирают «Профмастер»:
Компания «Профмастер» специализируется на модульных зданиях с 2014 года. Наши конструкции используются на объектах «Газпрома», «РЖД» и «Лукойла» в Санкт-Петербурге, Москве и Норильске. Гарантия: 24 месяца при аренде, 48 месяцев при покупке. Все здания проходят контроль сборки и герметичности. Доставка: 24 часа по СПб и Москве, 2-10 дней по регионам России. Готовы рассчитать планировку под ваш штат? Оставьте заявку — подготовим коммерческое предложение за 20 минут!
FAQ
Сколько офисных рабочих мест можно организовать в этом здании?При стандартной планировке можно организовать до 6 отдельных кабинетов или 12-15 рабочих мест в open-space. Для комфортного размещения рекомендуем не более 4 кабинетов на этаж с учетом зон отдыха и переговорной.
Какое утепление и для какого климата подходит здание?Базовая комплектация с утеплением 50 мм в стенах и 100 мм в потолке рассчитана на эксплуатацию до -15 градусов Цельсия. Для регионов с зимними температурами до -25 градусов Цельсия рекомендуем усиление утепления до 100 мм везде — доплата 180 000 ₽.
Как происходит сборка двухэтажного здания на объекте?Сборка силами наших специалистов занимает 1 день. Мы доставляем 6 готовых блок-контейнеров, устанавливаем их на подготовленную площадку, монтируем лестницу, соединяем модули и проверяем герметичность. Подключение электрики и внутренняя отделка выполняются по желанию.
Можно ли изменить планировку или добавить санузел?Да, доступны различные варианты внутренней перепланировки, установка перегородок, монтаж сантехнического блока. Стоимость модификации рассчитывается индивидуально, примерная цена за установку санузла под ключ — от 250 000 ₽.
Сколько стоит аренда с установкой в Московской области?Аренда модульного здания №6 с доставкой и установкой в пределах 50 км от МКАД стоит от 65 000 ₽/мес. В стоимость входит: доставка манипулятором, сборка, установка лестницы, базовое подключение к электросети 380В.
Ключевые преимущества модульного здания:
Большая полезная площадь:
Общая площадь 86,4 м² при компактных габаритах 6х7,2х2,4 м позволяет разместить до 6 отдельных офисов или зон
Конструкция из 6 стандартных блок-контейнеров обеспечивает надежность и возможность быстрой перепланировки
Быстрое изготовление и монтаж:
Сборка на объекте силами наших специалистов занимает 1 день
Каркас из швеллера 120х50х3 мм и уголка 90х90х3 мм гарантирует устойчивость без капитального фундамента
Внешняя лестница с просечкой и перилами обеспечивает безопасный доступ на второй этаж
Предлагаем как аренду, так и покупку от «Профмастер»:
Аренда от 55 000 ₽/мес с доставкой и сборкой
Продажа от 2 450 000 ₽ за базовую комплектацию
Рассрочка до 36 месяцев без процентов для юридических лиц
Бесплатная доставка по России при покупке от 2 500 000 ₽
Технические характеристики:
Конструкция и материалы:
Каркас из холодногнутого швеллера 120х50х3 мм и уголка 90х90х3 мм
Внешняя обшивка — оцинкованный профлист С8 толщиной 0,4 мм
Внутренняя отделка стен и потолка — ДВП белого цвета
Плоская сварная кровля из металлического листа 1 мм с герметичными швами
Утепление и комфорт:
Стены и пол: минеральная вата 50 мм
Потолок: минеральная вата 100 мм
Пароизоляционная мембрана Класс В по всему контуру
10 ПВХ-окон размером 0,8х1 м и 5 дверей (2 входные, 3 межкомнатные)
Почему выбирают «Профмастер»:
Компания «Профмастер» специализируется на модульных зданиях с 2014 года. Наши конструкции используются на объектах «Газпрома», «РЖД» и «Лукойла» в Санкт-Петербурге, Москве и Норильске. Гарантия: 24 месяца при аренде, 48 месяцев при покупке. Все здания проходят контроль сборки и герметичности. Доставка: 24 часа по СПб и Москве, 2-10 дней по регионам России. Готовы рассчитать планировку под ваш штат? Оставьте заявку — подготовим коммерческое предложение за 20 минут!
FAQ
Сколько офисных рабочих мест можно организовать в этом здании?При стандартной планировке можно организовать до 6 отдельных кабинетов или 12-15 рабочих мест в open-space. Для комфортного размещения рекомендуем не более 4 кабинетов на этаж с учетом зон отдыха и переговорной.
Какое утепление и для какого климата подходит здание?Базовая комплектация с утеплением 50 мм в стенах и 100 мм в потолке рассчитана на эксплуатацию до -15 градусов Цельсия. Для регионов с зимними температурами до -25 градусов Цельсия рекомендуем усиление утепления до 100 мм везде — доплата 180 000 ₽.
Как происходит сборка двухэтажного здания на объекте?Сборка силами наших специалистов занимает 1 день. Мы доставляем 6 готовых блок-контейнеров, устанавливаем их на подготовленную площадку, монтируем лестницу, соединяем модули и проверяем герметичность. Подключение электрики и внутренняя отделка выполняются по желанию.
Можно ли изменить планировку или добавить санузел?Да, доступны различные варианты внутренней перепланировки, установка перегородок, монтаж сантехнического блока. Стоимость модификации рассчитывается индивидуально, примерная цена за установку санузла под ключ — от 250 000 ₽.
Сколько стоит аренда с установкой в Московской области?Аренда модульного здания №6 с доставкой и установкой в пределах 50 км от МКАД стоит от 65 000 ₽/мес. В стоимость входит: доставка манипулятором, сборка, установка лестницы, базовое подключение к электросети 380В.