Модульное здание универсальное №5 из профлиста
1087000 руб.
В наличии
Нет в наличии
- 60 площадок по всей РФ
- Быстрый расчет и доставка
- Большой ассортимент оборудования для стройки
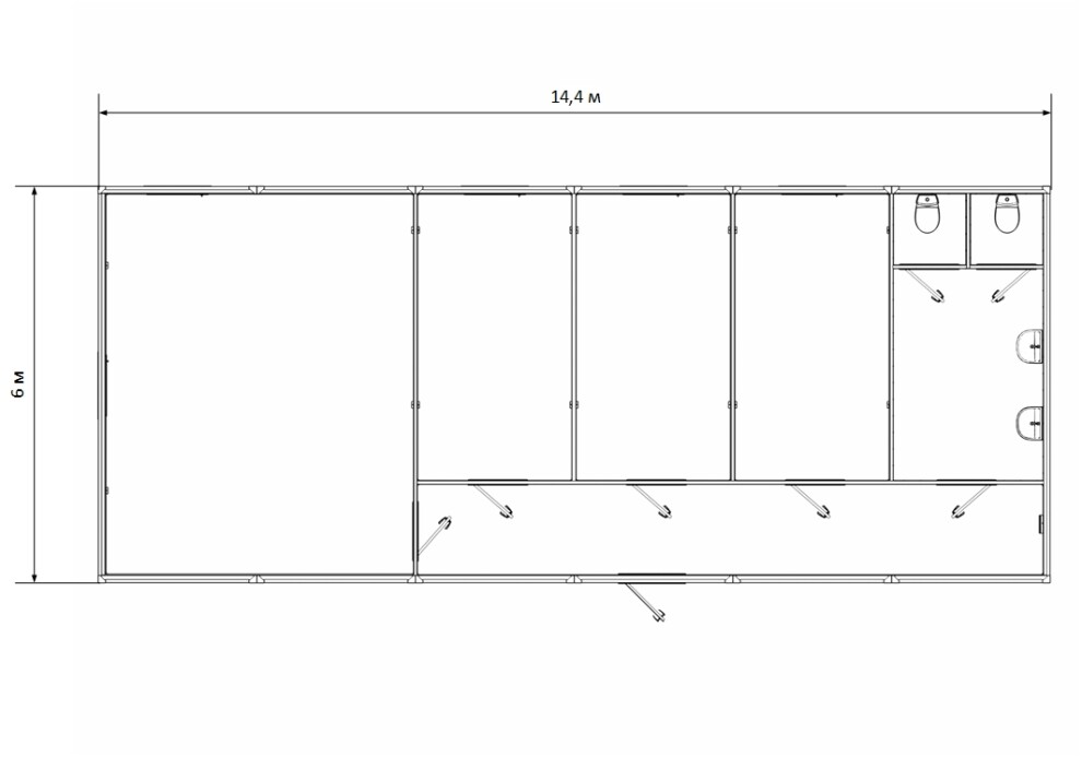
Модульное здание №5 из 6 блоков 6х14,4х2,4 м. Профлист С8, утепление 50 мм. Аренда от 42 000 ₽/мес, продажа от 1 250 000 ₽. Доставка по СПб, Москве и РФ за 24ч.
- Артикул:
- ПР-МЗ-05
Модульное здание универсальное №5 — это вместительный административно-хозяйственный комплекс из шести блок-контейнеров для организации офиса, склада или торговой площади на промышленных объектах по всей России. Благодаря продуманной планировке с пятью изолированными помещениями и сантехническим узлом вы получаете готовое решение площадью 86,4 м² для размещения бригады до 24 человек в условиях Санкт-Петербурга, Москвы и регионов.
Ключевые преимущества универсального здания:
Максимальная функциональность на компактной площади:
Пять изолированных помещений включают три стандартные комнаты по 14 м², переговорную 28 м² и санузел с двумя унитазами и двумя умывальниками
Переговорная площадью 28 м² легко адаптируется под выставочный зал, торговую точку или склад инструмента без перепланировки
Сантехнический блок с раздельными кабинами обеспечивает комфортное обслуживание до 30 человек в смену без очередей
Экономическая эффективность:
Сборка шести модулей занимает до 12 часов (1 рабочий день) силами бригады из 5 человек без спецтехники
Стоимость аренды от 42 000 ₽/мес вместо аренды капитального помещения от 180 000 ₽/мес
Срок окупаемости при покупке — от 18 месяцев благодаря низкой стоимости от 1 250 000 ₽ вместо строительства аналога от 6 000 000 ₽
Предлагаем как аренду, так и покупку от «Профмастер»:
Аренда от 42 000 ₽/мес с доставкой и установкой
Продажа от 1 250 000 ₽ за базовую комплектацию, от 1 450 000 ₽ с внутренней отделкой ПВХ/ДВП и полным сантехническим оснащением
Рассрочка до 36 месяцев без процентов для юридических лиц
Бесплатная доставка по России при покупке от 1 400 000 ₽
Технические характеристики:
Надёжная конструкция из профлиста:
Каркас из швеллера холодногнутого 120х50х3 мм и уголка 90х90х3 мм обеспечивает устойчивость на неровных площадках
Наружная обшивка оцинкованным профлистом С8 толщиной 0,4 мм выдерживает ветровые нагрузки до 35 м/с
5 окон ПВХ размером 0,8х1 м с поворотным механизмом обеспечивают естественное освещение всех помещений
Плоская сварная кровля из металлического листа 1 мм со швами, обработанными мастикой и эмалью
Комфортные условия эксплуатации:
Утепление стен и пола минеральной ватой 50 мм, потолка — 100 мм для снижения теплопотерь в межсезонье
Раздельная отделка: ДВП в сухих помещениях, ПВХ в санузле для защиты от влаги и продления срока службы
Пароизоляционная мембрана Класс В по всему периметру предотвращает образование конденсата в утеплителе
Возможность дооснащения за 1 день: конвекторы 2 кВт (+72 000 ₽ за 4 шт.), электропроводка 220В 10 кВт (+58 000 ₽)
Почему выбирают «Профмастер»: Компания «Профмастер» специализируется на модульных решениях с 2014 года. Наши универсальные здания используются на объектах «Газпрома», «РЖД» и промышленных площадках в Санкт-Петербурге, Москве и регионах. Гарантия: 36 месяцев при аренде, 60 месяцев при покупке. Все модули проходят проверку на герметичность и соответствие санитарным нормам. Доставка: 24 часа по СПб и Москве, 5-10 дней по регионам России. Готовы собрать АБК под вашу бригаду? Оставьте заявку — подготовим проект за 30 минут!
Сколько человек может размещаться в здании площадью 86,4 м²?
В пяти изолированных помещениях комфортно размещаются 20-24 человека для работы или 16-18 человек для временного проживания с соблюдением санитарных норм. Санузел с двумя унитазами и двумя умывальниками рассчитан на обслуживание до 30 человек в смену. Для проживания 25+ человек рекомендуем установку второго санблока — стоимость модификации 145 000 ₽.
Какая температура поддерживается внутри зимой при утеплении 50 мм?
Стандартная комплектация с утеплением 50 мм обеспечивает комфортную эксплуатацию до -15 градусов Цельсия. Для регионов с более низкими температурами устанавливаем усиленный пакет: минвата 100 мм во все конструкции. Такая модификация поддерживает +18 градусов Цельсия внутри при -25 градусов Цельсия на улице. Стоимость зимнего пакета — 115 000 ₽.
Сколько стоит доставка в Калининградскую область?
Доставка модульного здания №5 (6 блоков) в Калининградскую область стоит 85 000 ₽. В стоимость входит погрузка тремя манипуляторами, транспортировка железнодорожным контейнером, разгрузка и сборка на площадке. Срок доставки — 5-7 дней. При заказе от 1 500 000 ₽ доставка бесплатная.
Можно ли использовать здание как торговую площадку или выставочный зал?
Да, переговорная площадью 28 м² идеально подходит под торговую точку: устанавливаем панорамное остекление вместо 2 стандартных окон (+48 000 ₽), наружную вывеску (+22 000 ₽) и витрину для выкладки (+65 000 ₽). Для получения разрешения на торговлю помогаем подготовить технический паспорт здания бесплатно. Все модификации выполняются на заводе перед отправкой.
Как происходит подключение коммуникаций на объекте?
Подключение электричества (220В, 10 кВт) занимает 3 часа. В базовой комплектации проводка не установлена — монтируем за 58 000 ₽ (16 розеток, 12 выключателей, распределительный щит). Для отопления устанавливаем четыре конвектора по 2 кВт — доплата 72 000 ₽. Подключение водоснабжения и канализации — 5 часов при наличии центральных сетей. Все работы выполняем своими бригадами с предоставлением актов скрытых работ.
Ключевые преимущества универсального здания:
Максимальная функциональность на компактной площади:
Пять изолированных помещений включают три стандартные комнаты по 14 м², переговорную 28 м² и санузел с двумя унитазами и двумя умывальниками
Переговорная площадью 28 м² легко адаптируется под выставочный зал, торговую точку или склад инструмента без перепланировки
Сантехнический блок с раздельными кабинами обеспечивает комфортное обслуживание до 30 человек в смену без очередей
Экономическая эффективность:
Сборка шести модулей занимает до 12 часов (1 рабочий день) силами бригады из 5 человек без спецтехники
Стоимость аренды от 42 000 ₽/мес вместо аренды капитального помещения от 180 000 ₽/мес
Срок окупаемости при покупке — от 18 месяцев благодаря низкой стоимости от 1 250 000 ₽ вместо строительства аналога от 6 000 000 ₽
Предлагаем как аренду, так и покупку от «Профмастер»:
Аренда от 42 000 ₽/мес с доставкой и установкой
Продажа от 1 250 000 ₽ за базовую комплектацию, от 1 450 000 ₽ с внутренней отделкой ПВХ/ДВП и полным сантехническим оснащением
Рассрочка до 36 месяцев без процентов для юридических лиц
Бесплатная доставка по России при покупке от 1 400 000 ₽
Технические характеристики:
Надёжная конструкция из профлиста:
Каркас из швеллера холодногнутого 120х50х3 мм и уголка 90х90х3 мм обеспечивает устойчивость на неровных площадках
Наружная обшивка оцинкованным профлистом С8 толщиной 0,4 мм выдерживает ветровые нагрузки до 35 м/с
5 окон ПВХ размером 0,8х1 м с поворотным механизмом обеспечивают естественное освещение всех помещений
Плоская сварная кровля из металлического листа 1 мм со швами, обработанными мастикой и эмалью
Комфортные условия эксплуатации:
Утепление стен и пола минеральной ватой 50 мм, потолка — 100 мм для снижения теплопотерь в межсезонье
Раздельная отделка: ДВП в сухих помещениях, ПВХ в санузле для защиты от влаги и продления срока службы
Пароизоляционная мембрана Класс В по всему периметру предотвращает образование конденсата в утеплителе
Возможность дооснащения за 1 день: конвекторы 2 кВт (+72 000 ₽ за 4 шт.), электропроводка 220В 10 кВт (+58 000 ₽)
Почему выбирают «Профмастер»: Компания «Профмастер» специализируется на модульных решениях с 2014 года. Наши универсальные здания используются на объектах «Газпрома», «РЖД» и промышленных площадках в Санкт-Петербурге, Москве и регионах. Гарантия: 36 месяцев при аренде, 60 месяцев при покупке. Все модули проходят проверку на герметичность и соответствие санитарным нормам. Доставка: 24 часа по СПб и Москве, 5-10 дней по регионам России. Готовы собрать АБК под вашу бригаду? Оставьте заявку — подготовим проект за 30 минут!
Сколько человек может размещаться в здании площадью 86,4 м²?
В пяти изолированных помещениях комфортно размещаются 20-24 человека для работы или 16-18 человек для временного проживания с соблюдением санитарных норм. Санузел с двумя унитазами и двумя умывальниками рассчитан на обслуживание до 30 человек в смену. Для проживания 25+ человек рекомендуем установку второго санблока — стоимость модификации 145 000 ₽.
Какая температура поддерживается внутри зимой при утеплении 50 мм?
Стандартная комплектация с утеплением 50 мм обеспечивает комфортную эксплуатацию до -15 градусов Цельсия. Для регионов с более низкими температурами устанавливаем усиленный пакет: минвата 100 мм во все конструкции. Такая модификация поддерживает +18 градусов Цельсия внутри при -25 градусов Цельсия на улице. Стоимость зимнего пакета — 115 000 ₽.
Сколько стоит доставка в Калининградскую область?
Доставка модульного здания №5 (6 блоков) в Калининградскую область стоит 85 000 ₽. В стоимость входит погрузка тремя манипуляторами, транспортировка железнодорожным контейнером, разгрузка и сборка на площадке. Срок доставки — 5-7 дней. При заказе от 1 500 000 ₽ доставка бесплатная.
Можно ли использовать здание как торговую площадку или выставочный зал?
Да, переговорная площадью 28 м² идеально подходит под торговую точку: устанавливаем панорамное остекление вместо 2 стандартных окон (+48 000 ₽), наружную вывеску (+22 000 ₽) и витрину для выкладки (+65 000 ₽). Для получения разрешения на торговлю помогаем подготовить технический паспорт здания бесплатно. Все модификации выполняются на заводе перед отправкой.
Как происходит подключение коммуникаций на объекте?
Подключение электричества (220В, 10 кВт) занимает 3 часа. В базовой комплектации проводка не установлена — монтируем за 58 000 ₽ (16 розеток, 12 выключателей, распределительный щит). Для отопления устанавливаем четыре конвектора по 2 кВт — доплата 72 000 ₽. Подключение водоснабжения и канализации — 5 часов при наличии центральных сетей. Все работы выполняем своими бригадами с предоставлением актов скрытых работ.