Модульное здание универсальное №4 из профлиста
739000 руб.
В наличии
Нет в наличии
- 60 площадок по всей РФ
- Быстрый расчет и доставка
- Большой ассортимент оборудования для стройки
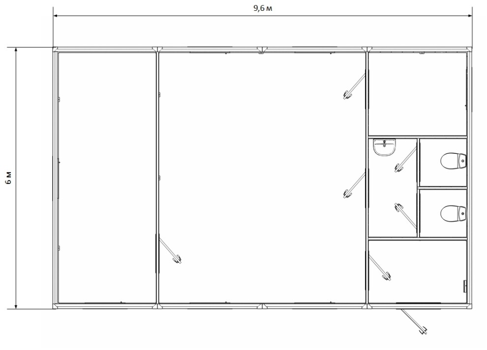
Модульное здание №4 из 4 блоков 6х9,6х2,4 м. Профлист С8, утепление 50 мм, 7 окон ПВХ, 2 санузла. Аренда от 28 000 ₽/мес, продажа от 850 000 ₽. Доставка по СПб, Москве и России за 24ч.
- Артикул:
- ПР-МЗ-04
Модульное здание универсальное №4 — это многофункциональный комплекс из четырёх блок-контейнеров для организации административно-бытового центра на стройплощадках, карьерах и промышленных объектах по всей России. Благодаря продуманной планировке с четырьмя изолированными помещениями и двумя санузлами вы получаете готовое решение под офис бригадира, зону отдыха и хозяйственные помещения общей площадью 57,6 м² в условиях Санкт-Петербурга, Москвы и регионов.
Ключевые преимущества универсального здания:
Гибкость под задачи объекта:
Площадь 57,6 м² позволяет разместить до 16 человек для работы или до 12 человек для временного проживания с соблюдением санитарных норм
Четыре изолированных помещения легко адаптируются: кабинет бригадира, зона отдыха, склад инструмента, санузел с душем
Возможность выбора между двумя конфигурациями: малое здание из 4 блоков (57,6 м²) или большое из 6 блоков (86,4 м²) под масштаб задачи
Экономическая эффективность:
Сборка четырёх модулей занимает до 12 часов (1 рабочий день) силами бригады из 4 человек без спецтехники
Стоимость аренды от 28 000 ₽/мес вместо аренды капитального помещения от 110 000 ₽/мес
Срок окупаемости при покупке — от 14 месяцев при коммерческом использовании
Предлагаем как аренду, так и покупку от «Профмастер»:
Аренда от 28 000 ₽/мес с доставкой и установкой
Продажа от 850 000 ₽ за базовую комплектацию, от 980 000 ₽ с электропроводкой, конвекторами и полным сантехническим оснащением
Рассрочка до 24 месяцев без процентов для юридических лиц
Бесплатная доставка по России при покупке от 900 000 ₽
Технические характеристики:
Надёжная конструкция из профлиста:
Каркас из швеллера холодногнутого 120х50х3 мм и уголка 90х90х3 мм обеспечивает устойчивость на неровных площадках
Наружная обшивка оцинкованным профлистом С8 толщиной 0,4 мм выдерживает ветровые нагрузки до 35 м/с
7 окон ПВХ размером 0,8х1 м с поворотным механизмом обеспечивают естественное освещение всех помещений
Комфортные условия эксплуатации:
Утепление стен и пола минеральной ватой 50 мм, потолка — 100 мм для снижения теплопотерь в межсезонье
Два санузла с унитазами «Компакт» и умывальником позволяют обслуживать бригаду до 20 человек без очередей
Раздельная отделка: ДВП в сухих помещениях, ПВХ в санузлах для защиты от влаги и продления срока службы
Пароизоляционная мембрана Класс В по всему периметру предотвращает образование конденсата в утеплителе
Почему выбирают «Профмастер»: Компания «Профмастер» специализируется на модульных решениях с 2014 года. Наши универсальные здания используются на объектах «ПИК», «ЛСР» и промышленных площадках в Санкт-Петербурге, Москве и регионах. Гарантия: 24 месяца при аренде, 48 месяцев при покупке. Все модули проходят проверку на герметичность и соответствие ГОСТ. Доставка: 24 часа по СПб и Москве, 2-10 дней по регионам России. Готовы собрать здание под вашу бригаду? Оставьте заявку — подготовим проект за 25 минут!
Сколько человек может размещаться в здании площадью 57,6 м²?
В четырёх изолированных помещениях комфортно размещаются 12-16 человек для работы или 10-12 человек для временного проживания. Два санузла с унитазами и умывальником рассчитаны на обслуживание до 20 человек в смену без образования очередей. Для проживания 15+ человек рекомендуем установку душевой кабины — стоимость модификации 75 000 ₽.
Какая температура поддерживается внутри зимой при утеплении 50 мм?
Стандартная комплектация с утеплением 50 мм обеспечивает комфортную эксплуатацию до -15 градусов Цельсия. Для регионов с более низкими температурами устанавливаем усиленный пакет: минвата 100 мм во все конструкции. Такая модификация поддерживает +18 градусов Цельсия внутри при -25 градусов Цельсия на улице. Стоимость зимнего пакета — 78 000 ₽.
Чем отличается здание из 4 блоков от здания из 6 блоков?
Здание из 4 блоков имеет площадь 57,6 м², 4 изолированных помещения и 2 санузла — оптимально для бригады до 16 человек. Здание из 6 блоков (модель №5) имеет площадь 86,4 м², 6 помещений и дополнительные хозяйственные зоны под кладовые — подходит для бригады до 24 человек. Разница в стоимости: аренда +14 000 ₽/мес, покупка +400 000 ₽.
Сколько стоит доставка в Новгородскую область?
Доставка модульного здания №4 (4 блока) по Новгородской области (до 200 км от СПб) стоит 32 000 ₽. В стоимость входит погрузка двумя манипуляторами, транспортировка, разгрузка и сборка на площадке. Срок доставки — 24-48 часов. При заказе от 900 000 ₽ доставка бесплатная.
Как происходит подключение коммуникаций?
Подключение электричества (220В, 8 кВт) занимает 2,5 часа. В базовой комплектации проводка не установлена — монтируем за 45 000 ₽ (12 розеток, 8 выключателей, распределительный щит). Для отопления устанавливаем три конвектора по 2 кВт — доплата 54 000 ₽. Подключение водоснабжения и канализации — 4 часа при наличии центральных сетей. Все работы выполняем своими бригадами с предоставлением актов скрытых работ.
Ключевые преимущества универсального здания:
Гибкость под задачи объекта:
Площадь 57,6 м² позволяет разместить до 16 человек для работы или до 12 человек для временного проживания с соблюдением санитарных норм
Четыре изолированных помещения легко адаптируются: кабинет бригадира, зона отдыха, склад инструмента, санузел с душем
Возможность выбора между двумя конфигурациями: малое здание из 4 блоков (57,6 м²) или большое из 6 блоков (86,4 м²) под масштаб задачи
Экономическая эффективность:
Сборка четырёх модулей занимает до 12 часов (1 рабочий день) силами бригады из 4 человек без спецтехники
Стоимость аренды от 28 000 ₽/мес вместо аренды капитального помещения от 110 000 ₽/мес
Срок окупаемости при покупке — от 14 месяцев при коммерческом использовании
Предлагаем как аренду, так и покупку от «Профмастер»:
Аренда от 28 000 ₽/мес с доставкой и установкой
Продажа от 850 000 ₽ за базовую комплектацию, от 980 000 ₽ с электропроводкой, конвекторами и полным сантехническим оснащением
Рассрочка до 24 месяцев без процентов для юридических лиц
Бесплатная доставка по России при покупке от 900 000 ₽
Технические характеристики:
Надёжная конструкция из профлиста:
Каркас из швеллера холодногнутого 120х50х3 мм и уголка 90х90х3 мм обеспечивает устойчивость на неровных площадках
Наружная обшивка оцинкованным профлистом С8 толщиной 0,4 мм выдерживает ветровые нагрузки до 35 м/с
7 окон ПВХ размером 0,8х1 м с поворотным механизмом обеспечивают естественное освещение всех помещений
Комфортные условия эксплуатации:
Утепление стен и пола минеральной ватой 50 мм, потолка — 100 мм для снижения теплопотерь в межсезонье
Два санузла с унитазами «Компакт» и умывальником позволяют обслуживать бригаду до 20 человек без очередей
Раздельная отделка: ДВП в сухих помещениях, ПВХ в санузлах для защиты от влаги и продления срока службы
Пароизоляционная мембрана Класс В по всему периметру предотвращает образование конденсата в утеплителе
Почему выбирают «Профмастер»: Компания «Профмастер» специализируется на модульных решениях с 2014 года. Наши универсальные здания используются на объектах «ПИК», «ЛСР» и промышленных площадках в Санкт-Петербурге, Москве и регионах. Гарантия: 24 месяца при аренде, 48 месяцев при покупке. Все модули проходят проверку на герметичность и соответствие ГОСТ. Доставка: 24 часа по СПб и Москве, 2-10 дней по регионам России. Готовы собрать здание под вашу бригаду? Оставьте заявку — подготовим проект за 25 минут!
Сколько человек может размещаться в здании площадью 57,6 м²?
В четырёх изолированных помещениях комфортно размещаются 12-16 человек для работы или 10-12 человек для временного проживания. Два санузла с унитазами и умывальником рассчитаны на обслуживание до 20 человек в смену без образования очередей. Для проживания 15+ человек рекомендуем установку душевой кабины — стоимость модификации 75 000 ₽.
Какая температура поддерживается внутри зимой при утеплении 50 мм?
Стандартная комплектация с утеплением 50 мм обеспечивает комфортную эксплуатацию до -15 градусов Цельсия. Для регионов с более низкими температурами устанавливаем усиленный пакет: минвата 100 мм во все конструкции. Такая модификация поддерживает +18 градусов Цельсия внутри при -25 градусов Цельсия на улице. Стоимость зимнего пакета — 78 000 ₽.
Чем отличается здание из 4 блоков от здания из 6 блоков?
Здание из 4 блоков имеет площадь 57,6 м², 4 изолированных помещения и 2 санузла — оптимально для бригады до 16 человек. Здание из 6 блоков (модель №5) имеет площадь 86,4 м², 6 помещений и дополнительные хозяйственные зоны под кладовые — подходит для бригады до 24 человек. Разница в стоимости: аренда +14 000 ₽/мес, покупка +400 000 ₽.
Сколько стоит доставка в Новгородскую область?
Доставка модульного здания №4 (4 блока) по Новгородской области (до 200 км от СПб) стоит 32 000 ₽. В стоимость входит погрузка двумя манипуляторами, транспортировка, разгрузка и сборка на площадке. Срок доставки — 24-48 часов. При заказе от 900 000 ₽ доставка бесплатная.
Как происходит подключение коммуникаций?
Подключение электричества (220В, 8 кВт) занимает 2,5 часа. В базовой комплектации проводка не установлена — монтируем за 45 000 ₽ (12 розеток, 8 выключателей, распределительный щит). Для отопления устанавливаем три конвектора по 2 кВт — доплата 54 000 ₽. Подключение водоснабжения и канализации — 4 часа при наличии центральных сетей. Все работы выполняем своими бригадами с предоставлением актов скрытых работ.