Модульное здание универсальное №2 из профлиста
348800 руб.
В наличии
Нет в наличии
- 60 площадок по всей РФ
- Быстрый расчет и доставка
- Большой ассортимент оборудования для стройки
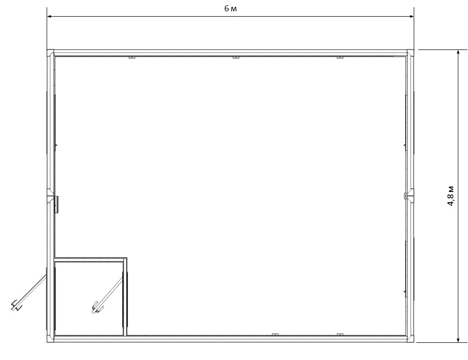
Модульное здание №2 из 2 блоков 6х4,8х2,4 м. Профлист С8, тамбур, утепление 50 мм. Аренда от 18 000 ₽/мес, продажа от 480 000 ₽. Доставка по СПб, Москве и России за 24ч.
- Артикул:
- ПР-МЗ-02
Модульное здание универсальное №2 — это практичное решение из двух блок-контейнеров с тамбуром для быстрого развертывания склада, мастерской или временного офиса на любом объекте по всей России. Благодаря продуманной планировке с двумя дверями и тамбуром как буферной зоной вы получаете защищённое от сквозняков пространство площадью 28,8 м², пригодное для работы и временного проживания в условиях Санкт-Петербурга, Москвы и регионов.
Ключевые преимущества универсального здания:
Тамбур как защита от холода:
Тамбур площадью 2 м² снижает теплопотери на 35% по сравнению с моделями без буферной зоны
Две двери последовательно исключают проникновение холодного воздуха при входе/выходе даже при -15 градусов Цельсия на улице
Экономическая эффективность:
Сборка двух модулей с тамбуром занимает до 8 часов (1 рабочий день) силами бригады из 2 человек
Стоимость аренды от 18 000 ₽/мес вместо аренды капитального помещения от 70 000 ₽/мес
Срок окупаемости при покупке — от 11 месяцев при коммерческом использовании
Предлагаем как аренду, так и покупку от «Профмастер»:
Аренда от 18 000 ₽/мес с доставкой и установкой
Продажа от 480 000 ₽ за базовую комплектацию, от 550 000 ₽ с металлической дверью и электропроводкой
Рассрочка до 24 месяцев без процентов для юридических лиц
Бесплатная доставка по России при покупке от 500 000 ₽
Технические характеристики:
Надёжная конструкция из профлиста:
Каркас из швеллера холодногнутого 120х50х3 мм и уголка 90х90х3 мм обеспечивает устойчивость на неровных площадках
Наружная обшивка оцинкованным профлистом С8 толщиной 0,4 мм выдерживает ветровые нагрузки до 35 м/с
3 окна ПВХ размером 0,8х1 м с поворотным механизмом обеспечивают естественное освещение и вентиляцию
Комфортные условия эксплуатации:
Утепление стен и пола минеральной ватой 50 мм, потолка — 100 мм для снижения теплопотерь
Тамбур с межкомнатной дверью создаёт воздушную прослойку, исключающую сквозняки при частом проходе
Пароизоляционная мембрана Класс В по всему периметру предотвращает образование конденсата в утеплителе
Возможность дооснащения за 1 день: санузел (+95 000 ₽), конвектор 2 кВт (+18 000 ₽), металлическая дверь (+28 000 ₽)
Почему выбирают «Профмастер»: Компания «Профмастер» специализируется на модульных решениях с 2014 года. Наши универсальные здания используются на стройплощадках «ПИК», «ЛСР» и малого бизнеса в Санкт-Петербурге, Москве и регионах. Гарантия: 24 месяца при аренде, 48 месяцев при покупке. Все модули проходят проверку на герметичность и соответствие ГОСТ. Доставка: 24 часа по СПб и Москве, 2-10 дней по регионам России. Готовы собрать здание с тамбуром под вашу задачу? Оставьте заявку — подготовим коммерческое предложение за 15 минут!
Сколько человек может размещаться в здании с тамбуром площадью 28,8 м²?
В жилой зоне комфортно размещаются 6-8 человек для работы или временного проживания. Тамбур площадью 2 м² не учитывается в жилой площади, но обеспечивает комфортный вход/выход без сквозняков. Для проживания 10+ человек рекомендуем установить перегородку — стоимость модификации 35 000 ₽.
Какая температура поддерживается внутри зимой при утеплении 50 мм и тамбуре?
Стандартная комплектация с утеплением 50 мм и тамбуром обеспечивает комфортную эксплуатацию до -15 градусов Цельсия. Тамбур снижает теплопотери на 35% по сравнению с моделями без буферной зоны. Для регионов с более низкими температурами устанавливаем усиленный пакет: минвата 100 мм во все конструкции. Такая модификация поддерживает +18 градусов Цельсия внутри при -25 градусов Цельсия на улице. Стоимость зимнего пакета — 42 000 ₽.
Сколько стоит доставка в Ленинградскую область?
Доставка модульного здания №2 (2 блока) по Ленинградской области (до 100 км от СПб) стоит 17 000 ₽. В стоимость входит погрузка манипулятором, транспортировка, разгрузка и сборка на площадке с монтажом тамбура. Срок доставки — 24 часа. При заказе от 500 000 ₽ доставка бесплатная.
Можно ли установить санузел внутри здания?
Да, санузел легко монтируется в углу здания: туалет с кабинкой из ЛДСП (+45 000 ₽) и душевая кабина с поддоном (+65 000 ₽). Для автономной работы комплектуем биотуалетом и водонагревателем на 80 л — доплата 95 000 ₽. Все коммуникации выводим в единый технический шкаф. Монтаж санузла занимает 4 часа дополнительного времени при установке здания.
Как происходит подключение электричества и отопления?
Подключение стандартной электропроводки (220В, 4 кВт) занимает 1,5 часа. В базовой комплектации проводка не установлена — монтируем за 28 000 ₽ (розетки, выключатели, распределительный щит). Для отопления устанавливаем конвектор 2 кВт — доплата 18 000 ₽. При температуре -15 градусов Цельсия конвектор поддерживает +18 градусов Цельсия внутри. Все работы выполняем своими электриками с предоставлением акта скрытых работ.
Ключевые преимущества универсального здания:
Тамбур как защита от холода:
Тамбур площадью 2 м² снижает теплопотери на 35% по сравнению с моделями без буферной зоны
Две двери последовательно исключают проникновение холодного воздуха при входе/выходе даже при -15 градусов Цельсия на улице
Экономическая эффективность:
Сборка двух модулей с тамбуром занимает до 8 часов (1 рабочий день) силами бригады из 2 человек
Стоимость аренды от 18 000 ₽/мес вместо аренды капитального помещения от 70 000 ₽/мес
Срок окупаемости при покупке — от 11 месяцев при коммерческом использовании
Предлагаем как аренду, так и покупку от «Профмастер»:
Аренда от 18 000 ₽/мес с доставкой и установкой
Продажа от 480 000 ₽ за базовую комплектацию, от 550 000 ₽ с металлической дверью и электропроводкой
Рассрочка до 24 месяцев без процентов для юридических лиц
Бесплатная доставка по России при покупке от 500 000 ₽
Технические характеристики:
Надёжная конструкция из профлиста:
Каркас из швеллера холодногнутого 120х50х3 мм и уголка 90х90х3 мм обеспечивает устойчивость на неровных площадках
Наружная обшивка оцинкованным профлистом С8 толщиной 0,4 мм выдерживает ветровые нагрузки до 35 м/с
3 окна ПВХ размером 0,8х1 м с поворотным механизмом обеспечивают естественное освещение и вентиляцию
Комфортные условия эксплуатации:
Утепление стен и пола минеральной ватой 50 мм, потолка — 100 мм для снижения теплопотерь
Тамбур с межкомнатной дверью создаёт воздушную прослойку, исключающую сквозняки при частом проходе
Пароизоляционная мембрана Класс В по всему периметру предотвращает образование конденсата в утеплителе
Возможность дооснащения за 1 день: санузел (+95 000 ₽), конвектор 2 кВт (+18 000 ₽), металлическая дверь (+28 000 ₽)
Почему выбирают «Профмастер»: Компания «Профмастер» специализируется на модульных решениях с 2014 года. Наши универсальные здания используются на стройплощадках «ПИК», «ЛСР» и малого бизнеса в Санкт-Петербурге, Москве и регионах. Гарантия: 24 месяца при аренде, 48 месяцев при покупке. Все модули проходят проверку на герметичность и соответствие ГОСТ. Доставка: 24 часа по СПб и Москве, 2-10 дней по регионам России. Готовы собрать здание с тамбуром под вашу задачу? Оставьте заявку — подготовим коммерческое предложение за 15 минут!
Сколько человек может размещаться в здании с тамбуром площадью 28,8 м²?
В жилой зоне комфортно размещаются 6-8 человек для работы или временного проживания. Тамбур площадью 2 м² не учитывается в жилой площади, но обеспечивает комфортный вход/выход без сквозняков. Для проживания 10+ человек рекомендуем установить перегородку — стоимость модификации 35 000 ₽.
Какая температура поддерживается внутри зимой при утеплении 50 мм и тамбуре?
Стандартная комплектация с утеплением 50 мм и тамбуром обеспечивает комфортную эксплуатацию до -15 градусов Цельсия. Тамбур снижает теплопотери на 35% по сравнению с моделями без буферной зоны. Для регионов с более низкими температурами устанавливаем усиленный пакет: минвата 100 мм во все конструкции. Такая модификация поддерживает +18 градусов Цельсия внутри при -25 градусов Цельсия на улице. Стоимость зимнего пакета — 42 000 ₽.
Сколько стоит доставка в Ленинградскую область?
Доставка модульного здания №2 (2 блока) по Ленинградской области (до 100 км от СПб) стоит 17 000 ₽. В стоимость входит погрузка манипулятором, транспортировка, разгрузка и сборка на площадке с монтажом тамбура. Срок доставки — 24 часа. При заказе от 500 000 ₽ доставка бесплатная.
Можно ли установить санузел внутри здания?
Да, санузел легко монтируется в углу здания: туалет с кабинкой из ЛДСП (+45 000 ₽) и душевая кабина с поддоном (+65 000 ₽). Для автономной работы комплектуем биотуалетом и водонагревателем на 80 л — доплата 95 000 ₽. Все коммуникации выводим в единый технический шкаф. Монтаж санузла занимает 4 часа дополнительного времени при установке здания.
Как происходит подключение электричества и отопления?
Подключение стандартной электропроводки (220В, 4 кВт) занимает 1,5 часа. В базовой комплектации проводка не установлена — монтируем за 28 000 ₽ (розетки, выключатели, распределительный щит). Для отопления устанавливаем конвектор 2 кВт — доплата 18 000 ₽. При температуре -15 градусов Цельсия конвектор поддерживает +18 градусов Цельсия внутри. Все работы выполняем своими электриками с предоставлением акта скрытых работ.