Модульное здание №6 из профлиста
246000 руб.
В наличии
Нет в наличии
- 60 площадок по всей РФ
- Быстрый расчет и доставка
- Большой ассортимент оборудования для стройки
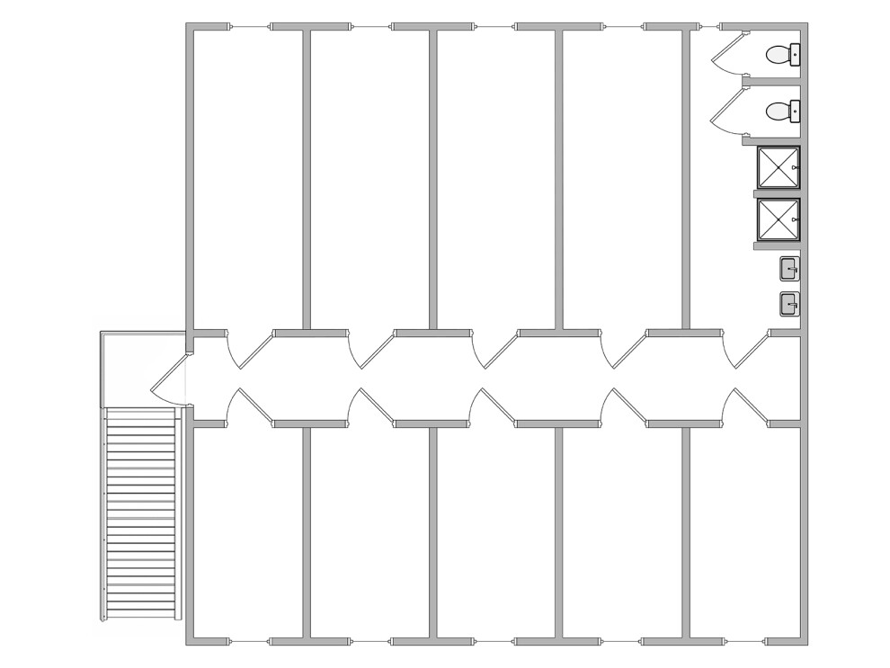
Двухэтажное здание из 20 блоков 12х12х7 м. 9 комнат и санблок на каждом этаже, ЛДСП, линолеум. Аренда от 85 000 ₽/мес, продажа от 2 400 000 ₽. Доставка по СПб, Москве и России за 24ч.
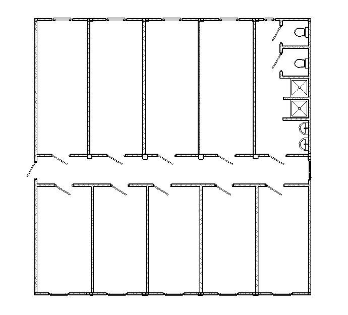
Двухэтажное модульное здание №6 из профлиста — это компактный общежитный комплекс площадью 144 м² для размещения до 36 человек на крупных строительных площадках и промышленных объектах по всей России. Вертикальная планировка экономит 50% площади участка по сравнению с одноэтажным аналогом и снижает теплопотери на 30% за счет уменьшения площади наружных стен, обеспечивая комфортное проживание в условиях Санкт-Петербурга, Москвы и регионов с умеренным климатом.
Ключевые преимущества двухэтажного комплекса:
Максимальная вместимость на минимальной площади — 18 изолированных комнат по 5-6 м² (9 на каждом этаже) позволяют разместить до 18 человек для постоянного проживания или до 36 человек для вахтового метода с двухъярусными кроватями
Полная санитарная автономия — два санблока с 4 душевыми кабинами, 4 унитазами и 4 умывальниками исключают очереди даже при одновременном использовании всеми жильцами
Экономия на отоплении — двухэтажная конструкция снижает удельные теплопотери на 30% по сравнению с одноэтажным зданием той же площади, экономия до 15 000 ₽/мес в отопительный сезон
Наружная лестница из оцинкованной стали выдерживает нагрузку до 300 кг и оборудована противоскользящими накладками для безопасного подъема в любую погоду
Предлагаем преимущественно продажу от «Профмастер», аренда доступна при наличии свободного парка:
Продажа от 2 400 000 ₽ за базовую комплектацию с полной санитарной инфраструктурой
Продажа от 2 800 000 ₽ с зимним пакетом (утепление 100 мм, 12 конвекторов по 2 кВт)
Аренда от 85 000 ₽/мес при наличии свободного объекта в парке
Рассрочка до 48 месяцев без процентов для юридических лиц при покупке
Технические характеристики:
Конструкция двухэтажного комплекса:
Двадцать соединенных блоков формируют двухэтажное здание 12х12 м высотой 7 м на усиленном основании из швеллера 120х50х3 мм
Внешняя обшивка профлистом С8 толщиной 0,4 мм с оцинковкой и синей порошковой окраской
Двускатная кровля из металлического листа 0,8 мм со швами, обработанными мастикой
Восемнадцать окон ПВХ 1100х900 мм с однокамерным стеклопакетом (по 9 на этаж) + 4 вентиляционных окна 500х500 мм в санблоках
Внутренняя отделка и санитарные помещения:
Стены: ЛДСП белого цвета с влагостойкой пропиткой во всех комнатах
Потолок: ПВХ-панели белого цвета по всей площади
Пол: ОСБ 15 мм + полукоммерческий линолеум класса 34 на обоих этажах
Санблоки: 4 душевых кабины с эмалированными поддонами, 4 унитаза «Компакт», 4 умывальника
Инженерные системы:
Электропроводка в ПВХ-коробе: кабель ВВГ 3х2,5 мм, автоматы 25А/16А, УЗО, 36 розеток, 20 светильников ЛПО 2х36 Вт
Наружная металлическая лестница шириной 900 мм с перилами и противоскользящими ступенями
Возможность установки 12 конвекторов по 2 кВт для зимней эксплуатации — 66 000 ₽
Почему выбирают «Профмастер»:
Компания «Профмастер» специализируется на модульных конструкциях с 2014 года. Наши двухэтажные комплексы используются на объектах «Газпрома», «РЖД» и горнодобывающих предприятий в Санкт-Петербурге, Москве и Кемеровской области. Гарантия: 36 месяцев при покупке. Все модули проходят проверку на герметичность стыков и соответствие нагрузкам. Доставка: 24 часа по СПб и Москве, 2-10 дней по регионам России. Готовы рассчитать комплектацию под вашу бригаду? Оставьте заявку — подготовим планировку за 15 минут!
Сколько человек может постоянно проживать в двухэтажном здании?
По нормам СНиП 2.08.01-89* для постоянного проживания допускается 18 человек (8 м² на человека с учетом коридоров и санузлов). Оптимальная комплектация: 18 одноместных комнат по 5-6 м². Для вахтового метода — до 36 человек с двухъярусными кроватями в каждой комнате. Максимальная нагрузка на пол — 200 кг/м² на каждом этаже.
Можно ли эксплуатировать здание зимой при -25 градусах?
При базовом утеплении 50 мм и двенадцати конвекторах по 2 кВт (24 кВт суммарно) внутри поддерживается +16 градусов Цельсия при наружной температуре до -15 градусов Цельсия. Для эксплуатации до -25 градусов рекомендуем зимний пакет: утепление 100 мм во всех блоках + обогрев трубопроводов — доплата 320 000 ₽. Для Сибири устанавливаем утепление 150 мм — доплата 480 000 ₽, работает до -35 градусов.
Чем двухэтажное здание выгоднее одноэтажного аналога 144 м²?
Экономия составляет от 220 000 ₽ в год:
Снижение теплопотерь на 30% — экономия на отоплении до 15 000 ₽/мес в сезон
Экономия площади участка в 2 раза — снижение арендной платы за землю или возможность размещения на ограниченной территории
Единая система коммуникаций вместо двух независимых контуров
Сокращение протяженности наружных стен на 40% — снижение риска промерзания стыков
Доплата за двухэтажную конструкцию — 350 000 ₽ при покупке, окупается за 16 месяцев эксплуатации.
Сколько времени занимает доставка и монтаж двадцати блоков?
Доставка выполняется двадцатью манипуляторами в четыре рейса (по 5 машин):
По СПб и Москве: бесплатно при покупке от 2 400 000 ₽
По регионам России: рассчитывается индивидуально из расчета 65 ₽/км за машину
Монтаж занимает 2 рабочих дня (16 часов):
День 1: установка первого этажа (10 блоков), выравнивание, герметизация стыков
День 2: установка второго этажа (10 блоков), монтаж лестницы, подключение коммуникаций, приемка
Все работы выполняет бригада «Профмастер».
Какие требования к фундаменту для двухэтажного здания?
Минимальные требования:
Бетонная плита толщиной 15 см по всей площади 12х12 м с армированием сеткой 150х150 мм
Дополнительное усиление под несущими стенами первого этажа (арматура диаметром 12 мм)
Горизонтальность площадки с допуском ±5 мм на всю длину
Дренажная система по периметру для отвода талых вод
Стоимость подготовки фундамента под ключ — 380 000 ₽. Без качественного фундамента установка двухэтажного здания невозможна по соображениям безопасности.
Ключевые преимущества двухэтажного комплекса:
Максимальная вместимость на минимальной площади — 18 изолированных комнат по 5-6 м² (9 на каждом этаже) позволяют разместить до 18 человек для постоянного проживания или до 36 человек для вахтового метода с двухъярусными кроватями
Полная санитарная автономия — два санблока с 4 душевыми кабинами, 4 унитазами и 4 умывальниками исключают очереди даже при одновременном использовании всеми жильцами
Экономия на отоплении — двухэтажная конструкция снижает удельные теплопотери на 30% по сравнению с одноэтажным зданием той же площади, экономия до 15 000 ₽/мес в отопительный сезон
Наружная лестница из оцинкованной стали выдерживает нагрузку до 300 кг и оборудована противоскользящими накладками для безопасного подъема в любую погоду
Предлагаем преимущественно продажу от «Профмастер», аренда доступна при наличии свободного парка:
Продажа от 2 400 000 ₽ за базовую комплектацию с полной санитарной инфраструктурой
Продажа от 2 800 000 ₽ с зимним пакетом (утепление 100 мм, 12 конвекторов по 2 кВт)
Аренда от 85 000 ₽/мес при наличии свободного объекта в парке
Рассрочка до 48 месяцев без процентов для юридических лиц при покупке
Технические характеристики:
Конструкция двухэтажного комплекса:
Двадцать соединенных блоков формируют двухэтажное здание 12х12 м высотой 7 м на усиленном основании из швеллера 120х50х3 мм
Внешняя обшивка профлистом С8 толщиной 0,4 мм с оцинковкой и синей порошковой окраской
Двускатная кровля из металлического листа 0,8 мм со швами, обработанными мастикой
Восемнадцать окон ПВХ 1100х900 мм с однокамерным стеклопакетом (по 9 на этаж) + 4 вентиляционных окна 500х500 мм в санблоках
Внутренняя отделка и санитарные помещения:
Стены: ЛДСП белого цвета с влагостойкой пропиткой во всех комнатах
Потолок: ПВХ-панели белого цвета по всей площади
Пол: ОСБ 15 мм + полукоммерческий линолеум класса 34 на обоих этажах
Санблоки: 4 душевых кабины с эмалированными поддонами, 4 унитаза «Компакт», 4 умывальника
Инженерные системы:
Электропроводка в ПВХ-коробе: кабель ВВГ 3х2,5 мм, автоматы 25А/16А, УЗО, 36 розеток, 20 светильников ЛПО 2х36 Вт
Наружная металлическая лестница шириной 900 мм с перилами и противоскользящими ступенями
Возможность установки 12 конвекторов по 2 кВт для зимней эксплуатации — 66 000 ₽
Почему выбирают «Профмастер»:
Компания «Профмастер» специализируется на модульных конструкциях с 2014 года. Наши двухэтажные комплексы используются на объектах «Газпрома», «РЖД» и горнодобывающих предприятий в Санкт-Петербурге, Москве и Кемеровской области. Гарантия: 36 месяцев при покупке. Все модули проходят проверку на герметичность стыков и соответствие нагрузкам. Доставка: 24 часа по СПб и Москве, 2-10 дней по регионам России. Готовы рассчитать комплектацию под вашу бригаду? Оставьте заявку — подготовим планировку за 15 минут!
Сколько человек может постоянно проживать в двухэтажном здании?
По нормам СНиП 2.08.01-89* для постоянного проживания допускается 18 человек (8 м² на человека с учетом коридоров и санузлов). Оптимальная комплектация: 18 одноместных комнат по 5-6 м². Для вахтового метода — до 36 человек с двухъярусными кроватями в каждой комнате. Максимальная нагрузка на пол — 200 кг/м² на каждом этаже.
Можно ли эксплуатировать здание зимой при -25 градусах?
При базовом утеплении 50 мм и двенадцати конвекторах по 2 кВт (24 кВт суммарно) внутри поддерживается +16 градусов Цельсия при наружной температуре до -15 градусов Цельсия. Для эксплуатации до -25 градусов рекомендуем зимний пакет: утепление 100 мм во всех блоках + обогрев трубопроводов — доплата 320 000 ₽. Для Сибири устанавливаем утепление 150 мм — доплата 480 000 ₽, работает до -35 градусов.
Чем двухэтажное здание выгоднее одноэтажного аналога 144 м²?
Экономия составляет от 220 000 ₽ в год:
Снижение теплопотерь на 30% — экономия на отоплении до 15 000 ₽/мес в сезон
Экономия площади участка в 2 раза — снижение арендной платы за землю или возможность размещения на ограниченной территории
Единая система коммуникаций вместо двух независимых контуров
Сокращение протяженности наружных стен на 40% — снижение риска промерзания стыков
Доплата за двухэтажную конструкцию — 350 000 ₽ при покупке, окупается за 16 месяцев эксплуатации.
Сколько времени занимает доставка и монтаж двадцати блоков?
Доставка выполняется двадцатью манипуляторами в четыре рейса (по 5 машин):
По СПб и Москве: бесплатно при покупке от 2 400 000 ₽
По регионам России: рассчитывается индивидуально из расчета 65 ₽/км за машину
Монтаж занимает 2 рабочих дня (16 часов):
День 1: установка первого этажа (10 блоков), выравнивание, герметизация стыков
День 2: установка второго этажа (10 блоков), монтаж лестницы, подключение коммуникаций, приемка
Все работы выполняет бригада «Профмастер».
Какие требования к фундаменту для двухэтажного здания?
Минимальные требования:
Бетонная плита толщиной 15 см по всей площади 12х12 м с армированием сеткой 150х150 мм
Дополнительное усиление под несущими стенами первого этажа (арматура диаметром 12 мм)
Горизонтальность площадки с допуском ±5 мм на всю длину
Дренажная система по периметру для отвода талых вод
Стоимость подготовки фундамента под ключ — 380 000 ₽. Без качественного фундамента установка двухэтажного здания невозможна по соображениям безопасности.