Модульное здание №4 из профлиста
75000 руб.
В наличии
Нет в наличии
- 60 площадок по всей РФ
- Быстрый расчет и доставка
- Большой ассортимент оборудования для стройки
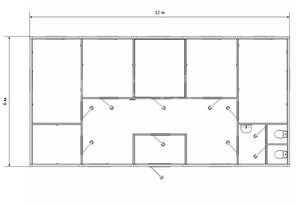
Модульное здание из пяти 6-метровых блоков 6х12х2,4 м. Площадь 72 м², 6 изолированных комнат, санузел, ЛДСП. Аренда от 35 000 ₽/мес, продажа от 950 000 ₽. Доставка по СПб, Москве и России за 24ч.
- Артикул:
- АР-МЗ-04
Модульное здание №4 из профлиста — это полноценный административно-бытовой комплекс площадью 72 м² для организации офиса, штаба строительства или временного жилья по всей России. Шесть изолированных комнат с общим коридором позволяют разместить до 12 человек с соблюдением санитарных норм, а встроенный санузел и тамбур обеспечивают автономность без подключения дополнительных модулей в условиях Санкт-Петербурга, Москвы и удаленных регионов.
Ключевые преимущества многофункционального комплекса:
Оптимальная планировка — 6 комнат по 8-10 м² каждая + санузел 4 м² + тамбур 3 м² + коридор 15 м² создают законченный АБК без необходимости стыковки отдельных модулей
Повышенная вместимость — здание обслуживает бригаду до 12 человек для постоянного проживания или до 24 человек для вахтового метода с двухъярусными спальными местами
Экономия на логистике — доставка пяти блоков одним рейсом пяти манипуляторов вместо десяти отдельных контейнеров снижает транспортные расходы на 40%
Быстрый ввод в эксплуатацию — монтаж и подключение всех систем занимает 6 часов против 3-4 дней при сборке из отдельных модулей
Предлагаем как аренду, так и покупку от «Профмастер»:
Аренда от 35 000 ₽/мес с доставкой пятью манипуляторами и установкой на подготовленную площадку
Продажа от 950 000 ₽ за базовую комплектацию, от 1 100 000 ₽ с полным пакетом (отопление, мебель, усиленное утепление)
Рассрочка до 36 месяцев без процентов для юридических лиц
Бесплатная доставка по России при покупке от 1 000 000 ₽
Технические характеристики:
Конструкция пятиблочного комплекса:
Пять соединенных блоков по 6х2,4 м на усиленном основании из швеллера 120х50х3 мм
Внешняя обшивка профлистом С8 толщиной 0,4 мм с оцинковкой и синей порошковой окраской
Шесть изолированных комнат площадью 8-10 м² каждая с межкомнатными дверями МДФ 2000х800 мм
Общий коридор шириной 1,2 м для комфортного перемещения между помещениями
Внутренняя отделка и санузел:
Стены во всех комнатах: ЛДСП белого цвета с влагостойкой пропиткой
Потолок: ПВХ-панели белого цвета по всей площади
Пол: ОСБ 15 мм + полукоммерческий линолеум класса 34
Санузел 4 м²: влагостойкие ПВХ-панели на стенах и потолке, 2 унитаза «Компакт», умывальник со смесителем
Инженерные системы:
Электропроводка в ПВХ-коробе: кабель ВВГ 2х2,5 мм, автоматы 25А/16А, 12 розеток, 7 светильников ЛПО 2х36 Вт
Семь окон ПВХ 1100х900 мм с однокамерным стеклопакетом и поворотно-откидным механизмом
Входная металлическая дверь 2000х800 мм со встроенным замком
Конвекторы 1,5 кВт — 5 500 ₽ за шт (рекомендуем 4 шт для равномерного обогрева 72 м²)
Почему выбирают «Профмастер»:
Компания «Профмастер» специализируется на модульных конструкциях с 2014 года. Наши пятиблочные комплексы используются на объектах «Газпрома», «РЖД» и крупных строительных площадках «ПИК» в Санкт-Петербурге, Москве и Екатеринбурге. Гарантия: 24 месяца при аренде, 48 месяцев при покупке. Все модули проходят проверку на герметичность стыков и соответствие нагрузкам. Доставка: 24 часа по СПб и Москве, 2-10 дней по регионам России. Готовы рассчитать планировку под вашу бригаду? Оставьте заявку — подготовим схему размещения за 15 минут!
Сколько человек может постоянно проживать в здании 72 м²?
По нормам СНиП 2.08.01-89* для постоянного проживания допускается 12 человек (6 м² на человека). Оптимальная комплектация: 4 комнаты под спальни по 2 человека (8 мест) + 2 комнаты под общие зоны (кухня, отдых) + санузел на 2 унитаза. Для вахтового метода — до 24 человека с двухъярусными кроватями. Максимальная нагрузка на пол — 200 кг/м².
Можно ли эксплуатировать здание зимой при -20 градусах?
При базовом утеплении 50 мм и четырех конвекторах по 1,5 кВт (6 кВт суммарно) внутри поддерживается +16 градусов Цельсия при наружной температуре до -15 градусов Цельсия. Для эксплуатации до -25 градусов рекомендуем зимний пакет: утепление 100 мм во всех блоках + шесть конвекторов по 2 кВт — доплата 145 000 ₽. Для Сибири устанавливаем утепление 150 мм — доплата 210 000 ₽, работает до -35 градусов.
Сколько времени занимает доставка и монтаж пяти блоков?
Доставка выполняется пятью манипуляторами одновременно:
По СПб и Москве: бесплатно при аренде от 3 месяцев или покупке от 950 000 ₽
По Ленинградской/Московской области до 100 км: 3 500 ₽ за каждый манипулятор (итого 17 500 ₽)
Монтаж занимает 6 часов:
2 часа — выравнивание пяти блоков по единому уровню с точностью ±5 мм
2 часа — герметизация четырех стыков монтажной пеной и установка накладок
1 час — подключение электрики и сантехники
1 час — проверка герметичности дымовой шашкой и приемка
Все работы выполняет бригада «Профмастер».
Чем единый пятиблочный комплекс выгоднее пяти отдельных контейнеров?
Экономия составляет от 180 000 ₽ при покупке:
Единый комплекс №4: 950 000 ₽ + доставка 1 рейс пятью манипуляторами
Пять отдельных контейнеров: 190 000 ₽ × 5 = 950 000 ₽ + доставка 5 рейсов = +75 000 ₽ + монтаж 5 раз = +105 000 ₽
Дополнительные преимущества единого комплекса:
Отсутствие открытых стыков между блоками — снижение теплопотерь на 25%
Единая система отопления и электроснабжения вместо пяти независимых
Общий коридор исключает выход на улицу между помещениями зимой
Упрощенная приемка — один акт вместо пяти
Какие документы нужны для установки на строительной площадке?
При поставке выдаем:
Паспорт модуля с указанием несущей способности и ветровой нагрузки
Сертификат на противопожарную дверь
Схема подключения электрики и сантехники
Договор аренды/купли-продажи с гарантийными обязательствами
Для строительных площадок разрешение не требуется — модуль относится к временным сооружениям согласно Градостроительному кодексу РФ ст. 51. Для постоянной установки на муниципальной земле предоставляем пакет документов для согласования бесплатно.
Ключевые преимущества многофункционального комплекса:
Оптимальная планировка — 6 комнат по 8-10 м² каждая + санузел 4 м² + тамбур 3 м² + коридор 15 м² создают законченный АБК без необходимости стыковки отдельных модулей
Повышенная вместимость — здание обслуживает бригаду до 12 человек для постоянного проживания или до 24 человек для вахтового метода с двухъярусными спальными местами
Экономия на логистике — доставка пяти блоков одним рейсом пяти манипуляторов вместо десяти отдельных контейнеров снижает транспортные расходы на 40%
Быстрый ввод в эксплуатацию — монтаж и подключение всех систем занимает 6 часов против 3-4 дней при сборке из отдельных модулей
Предлагаем как аренду, так и покупку от «Профмастер»:
Аренда от 35 000 ₽/мес с доставкой пятью манипуляторами и установкой на подготовленную площадку
Продажа от 950 000 ₽ за базовую комплектацию, от 1 100 000 ₽ с полным пакетом (отопление, мебель, усиленное утепление)
Рассрочка до 36 месяцев без процентов для юридических лиц
Бесплатная доставка по России при покупке от 1 000 000 ₽
Технические характеристики:
Конструкция пятиблочного комплекса:
Пять соединенных блоков по 6х2,4 м на усиленном основании из швеллера 120х50х3 мм
Внешняя обшивка профлистом С8 толщиной 0,4 мм с оцинковкой и синей порошковой окраской
Шесть изолированных комнат площадью 8-10 м² каждая с межкомнатными дверями МДФ 2000х800 мм
Общий коридор шириной 1,2 м для комфортного перемещения между помещениями
Внутренняя отделка и санузел:
Стены во всех комнатах: ЛДСП белого цвета с влагостойкой пропиткой
Потолок: ПВХ-панели белого цвета по всей площади
Пол: ОСБ 15 мм + полукоммерческий линолеум класса 34
Санузел 4 м²: влагостойкие ПВХ-панели на стенах и потолке, 2 унитаза «Компакт», умывальник со смесителем
Инженерные системы:
Электропроводка в ПВХ-коробе: кабель ВВГ 2х2,5 мм, автоматы 25А/16А, 12 розеток, 7 светильников ЛПО 2х36 Вт
Семь окон ПВХ 1100х900 мм с однокамерным стеклопакетом и поворотно-откидным механизмом
Входная металлическая дверь 2000х800 мм со встроенным замком
Конвекторы 1,5 кВт — 5 500 ₽ за шт (рекомендуем 4 шт для равномерного обогрева 72 м²)
Почему выбирают «Профмастер»:
Компания «Профмастер» специализируется на модульных конструкциях с 2014 года. Наши пятиблочные комплексы используются на объектах «Газпрома», «РЖД» и крупных строительных площадках «ПИК» в Санкт-Петербурге, Москве и Екатеринбурге. Гарантия: 24 месяца при аренде, 48 месяцев при покупке. Все модули проходят проверку на герметичность стыков и соответствие нагрузкам. Доставка: 24 часа по СПб и Москве, 2-10 дней по регионам России. Готовы рассчитать планировку под вашу бригаду? Оставьте заявку — подготовим схему размещения за 15 минут!
Сколько человек может постоянно проживать в здании 72 м²?
По нормам СНиП 2.08.01-89* для постоянного проживания допускается 12 человек (6 м² на человека). Оптимальная комплектация: 4 комнаты под спальни по 2 человека (8 мест) + 2 комнаты под общие зоны (кухня, отдых) + санузел на 2 унитаза. Для вахтового метода — до 24 человека с двухъярусными кроватями. Максимальная нагрузка на пол — 200 кг/м².
Можно ли эксплуатировать здание зимой при -20 градусах?
При базовом утеплении 50 мм и четырех конвекторах по 1,5 кВт (6 кВт суммарно) внутри поддерживается +16 градусов Цельсия при наружной температуре до -15 градусов Цельсия. Для эксплуатации до -25 градусов рекомендуем зимний пакет: утепление 100 мм во всех блоках + шесть конвекторов по 2 кВт — доплата 145 000 ₽. Для Сибири устанавливаем утепление 150 мм — доплата 210 000 ₽, работает до -35 градусов.
Сколько времени занимает доставка и монтаж пяти блоков?
Доставка выполняется пятью манипуляторами одновременно:
По СПб и Москве: бесплатно при аренде от 3 месяцев или покупке от 950 000 ₽
По Ленинградской/Московской области до 100 км: 3 500 ₽ за каждый манипулятор (итого 17 500 ₽)
Монтаж занимает 6 часов:
2 часа — выравнивание пяти блоков по единому уровню с точностью ±5 мм
2 часа — герметизация четырех стыков монтажной пеной и установка накладок
1 час — подключение электрики и сантехники
1 час — проверка герметичности дымовой шашкой и приемка
Все работы выполняет бригада «Профмастер».
Чем единый пятиблочный комплекс выгоднее пяти отдельных контейнеров?
Экономия составляет от 180 000 ₽ при покупке:
Единый комплекс №4: 950 000 ₽ + доставка 1 рейс пятью манипуляторами
Пять отдельных контейнеров: 190 000 ₽ × 5 = 950 000 ₽ + доставка 5 рейсов = +75 000 ₽ + монтаж 5 раз = +105 000 ₽
Дополнительные преимущества единого комплекса:
Отсутствие открытых стыков между блоками — снижение теплопотерь на 25%
Единая система отопления и электроснабжения вместо пяти независимых
Общий коридор исключает выход на улицу между помещениями зимой
Упрощенная приемка — один акт вместо пяти
Какие документы нужны для установки на строительной площадке?
При поставке выдаем:
Паспорт модуля с указанием несущей способности и ветровой нагрузки
Сертификат на противопожарную дверь
Схема подключения электрики и сантехники
Договор аренды/купли-продажи с гарантийными обязательствами
Для строительных площадок разрешение не требуется — модуль относится к временным сооружениям согласно Градостроительному кодексу РФ ст. 51. Для постоянной установки на муниципальной земле предоставляем пакет документов для согласования бесплатно.