Гараж из сэндвич-панелей №1
880770 руб.
В наличии
Нет в наличии
- 60 площадок по всей РФ
- Быстрый расчет и доставка
- Большой ассортимент оборудования для стройки
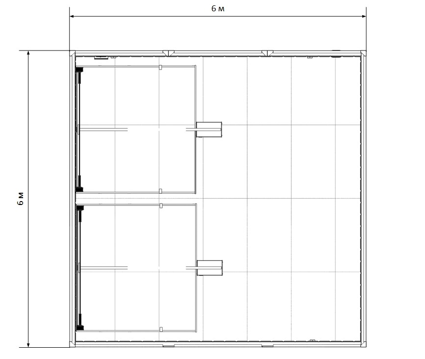
Гараж из сэндвич-панелей 80 мм, размеры 6х6х2,6 м. Площадь 36 м², утепление 100 мм, ворота 2100х2500 мм — 2 шт. Аренда от 15 000 ₽/мес, продажа от 550 000 ₽. Доставка по СПб, Москве и России за 24ч.
- Артикул:
- СП-ГР-01
Гараж из сэндвич-панелей №1 — это быстровозводимое здание для надежной защиты автомобиля от угона, осадков и перепадов температур по всей России. Двойной комплект ворот 2100х2500 мм позволяет организовать сквозной проезд для удобной парковки или использовать вторую секцию под хранение инвентаря, шин и запасных частей в условиях Санкт-Петербурга, Москвы и регионов с суровыми зимами.
Ключевые преимущества модульного гаража:
Экономия времени — строительство занимает 1 день против 2-3 месяцев при кирпичной кладке, включая монтаж и подключение коммуникаций
Теплая эксплуатация — утепление 100 мм в полу и кровле сохраняет температуру +5 градусов Цельсия внутри при -25 градусов Цельсия на улице без отопления, предотвращая примерзание дверей и замерзание аккумулятора
Повышенная безопасность — ворота с теплоизоляцией и врезным замком, усиленный каркас из швеллера 120х50х3 мм выдерживают взломные нагрузки до 500 кг, сертификат соответствия требованиям МВД по защите от угона
Гибкое использование — 36 м² позволяют разместить легковой автомобиль + мотоцикл или два компактных авто с зазором 60 см между ними для комфортного выхода
Предлагаем как аренду, так и покупку от «Профмастер»:
Аренда от 15 000 ₽/мес с доставкой, монтажом на подготовленную площадку и подключением к электросети
Продажа от 550 000 ₽ за базовую комплектацию, от 620 000 ₽ с отоплением и освещением
Рассрочка до 36 месяцев без процентов для физических лиц
Бесплатная доставка по России при покупке от 600 000 ₽
Технические характеристики:
Конструкция и каркас:
Каркас из усиленного швеллера холодногнутого 120х50х3 мм и уголка 90х90х3 мм для восприятия снеговой нагрузки до 240 кг/м²
Стены из сэндвич-панелей на основе ПСБ-С толщиной 80 мм с наружным покрытием RAL стандарт и внутренней белой отделкой
Цветовая гамма: синий (по умолчанию), возможна покраска в любой цвет по шкале RAL за доплату 15 000 ₽
Утепление и пол:
Минеральная вата 100 мм в полу и кровле для предотвращения промерзания грунта под автомобилем
Пароизоляционная мембрана Класс В по всему периметру для защиты утеплителя от конденсата при перепадах температур
Чистовой пол из ЦСП 12 мм по лагам из бруса 40х100 мм, выдерживает нагрузку до 2 500 кг (легковой автомобиль + инвентарь)
Ворота и инженерия:
Распашные ворота 2100х2500 мм — 2 комплекта с порошковой окраской, теплоизоляцией и врезным замком
Возможность установки автоматики на ворота — 28 000 ₽ за комплект
Электропроводка: 4 розетки, 4 светильника, щиток с УЗО — 15 000 ₽
Отопление: конвектор 3 кВт с терморегулятором для поддержания +15 градусов Цельсия зимой — 9 500 ₽
Почему выбирают «Профмастер»:
Компания «Профмастер» специализируется на модульных конструкциях с 2014 года. Наши гаражи установлены в коттеджных поселках «Ясное» под Москвой, «Новое Волково» под Санкт-Петербургом и в частном секторе Екатеринбурга. Гарантия: 36 месяцев при аренде, 60 месяцев при покупке. Все модули проходят сертификацию по ГОСТ 30403-2012 (пожарная безопасность) и испытания на ветровую нагрузку до 45 м/с. Доставка: 24 часа по СПб и Москве, 2-10 дней по регионам России. Готовы рассчитать комплектацию под ваш автомобиль? Оставьте заявку — подготовим схему расстановки за 15 минут!
Сколько автомобилей помещается в гараж 6х6 м?
В гараже комфортно размещается 1 крупногабаритный автомобиль (внедорожник, микроавтобус) с запасом места для инвентаря. Для 2 компактных авто (седаны класса B-C) требуется организация парковки под углом 45 градусов — расстояние между бамперами 60 см, между боковыми зеркалами 40 см. Для параллельной парковки 2 авто рекомендуем гараж 6х9 м площадью 54 м².
Можно ли установить гараж без фундамента?
Да, гараж устанавливается на уплотненную площадку без бетонирования:
Минимальное основание: щебень фракции 20-40 мм слоем 15 см с трамбовкой
Для защиты пола от влаги укладываем геотекстиль — 4 500 ₽ за материалы и монтаж
На неровных участках используем 8 винтовых домкратов высотой до 30 см — 6 000 ₽
При необходимости устанавливаем монолитную плиту 15 см — 45 000 ₽ (включая армирование и бетон М300).
Какая температура поддерживается зимой без отопления?
При утеплении 100 мм в полу и кровле внутри сохраняется +3…+5 градусов Цельсия при наружной температуре -25 градусов Цельсия. Этого достаточно для:
Предотвращения примерзания дверей автомобиля
Защиты аккумулятора от глубокого разряда
Хранения шин и масел без потери свойств
Для поддержания +15 градусов Цельсия устанавливаем конвектор 3 кВт — доплата 9 500 ₽, расход электроэнергии 45 кВт·ч в сутки при -20 градусов Цельсия.
Сколько стоит подключение электричества для освещения и зарядки авто?
Базовый пакет «Электрика Гараж» включает:
Вводной кабель ВВГнг 3х2,5 длиной 20 м с вилкой для подключения к столбу
Распределительный щиток с автоматами и УЗО
4 розетки с защитой от влаги (2 у ворот, 2 у стены)
Светодиодные светильники 4 шт по углам гаража
Розетка для зарядки электромобиля 16А (опция +5 000 ₽)
Стоимость — 15 000 ₽ при покупке, 2 000 ₽/мес при аренде. Подключение к городской сети выполняет электромонтажная организация — мы предоставляем технические условия бесплатно.
Чем модульный гараж выгоднее аренды места на стоянке?
Экономия составляет от 60 000 ₽ в год:
Аренда модульного гаража: 15 000 ₽/мес × 12 = 180 000 ₽/год
Аренда места на охраняемой стоянке (5 000 ₽/мес × 12): 60 000 ₽ + эвакуация при опоздании 3 000 ₽ × 4 раза = 72 000 ₽
Дополнительные преимущества модульного гаража:
Круглосуточный доступ без ограничений времени выезда/въезда
Возможность хранения инвентаря, шин, запчастей без доплаты
Установка собственного оборудования (зарядка для электромобиля, компрессор)
Собственность на объект — окупаемость за 3-4 года при покупке за 550 000 ₽
Ключевые преимущества модульного гаража:
Экономия времени — строительство занимает 1 день против 2-3 месяцев при кирпичной кладке, включая монтаж и подключение коммуникаций
Теплая эксплуатация — утепление 100 мм в полу и кровле сохраняет температуру +5 градусов Цельсия внутри при -25 градусов Цельсия на улице без отопления, предотвращая примерзание дверей и замерзание аккумулятора
Повышенная безопасность — ворота с теплоизоляцией и врезным замком, усиленный каркас из швеллера 120х50х3 мм выдерживают взломные нагрузки до 500 кг, сертификат соответствия требованиям МВД по защите от угона
Гибкое использование — 36 м² позволяют разместить легковой автомобиль + мотоцикл или два компактных авто с зазором 60 см между ними для комфортного выхода
Предлагаем как аренду, так и покупку от «Профмастер»:
Аренда от 15 000 ₽/мес с доставкой, монтажом на подготовленную площадку и подключением к электросети
Продажа от 550 000 ₽ за базовую комплектацию, от 620 000 ₽ с отоплением и освещением
Рассрочка до 36 месяцев без процентов для физических лиц
Бесплатная доставка по России при покупке от 600 000 ₽
Технические характеристики:
Конструкция и каркас:
Каркас из усиленного швеллера холодногнутого 120х50х3 мм и уголка 90х90х3 мм для восприятия снеговой нагрузки до 240 кг/м²
Стены из сэндвич-панелей на основе ПСБ-С толщиной 80 мм с наружным покрытием RAL стандарт и внутренней белой отделкой
Цветовая гамма: синий (по умолчанию), возможна покраска в любой цвет по шкале RAL за доплату 15 000 ₽
Утепление и пол:
Минеральная вата 100 мм в полу и кровле для предотвращения промерзания грунта под автомобилем
Пароизоляционная мембрана Класс В по всему периметру для защиты утеплителя от конденсата при перепадах температур
Чистовой пол из ЦСП 12 мм по лагам из бруса 40х100 мм, выдерживает нагрузку до 2 500 кг (легковой автомобиль + инвентарь)
Ворота и инженерия:
Распашные ворота 2100х2500 мм — 2 комплекта с порошковой окраской, теплоизоляцией и врезным замком
Возможность установки автоматики на ворота — 28 000 ₽ за комплект
Электропроводка: 4 розетки, 4 светильника, щиток с УЗО — 15 000 ₽
Отопление: конвектор 3 кВт с терморегулятором для поддержания +15 градусов Цельсия зимой — 9 500 ₽
Почему выбирают «Профмастер»:
Компания «Профмастер» специализируется на модульных конструкциях с 2014 года. Наши гаражи установлены в коттеджных поселках «Ясное» под Москвой, «Новое Волково» под Санкт-Петербургом и в частном секторе Екатеринбурга. Гарантия: 36 месяцев при аренде, 60 месяцев при покупке. Все модули проходят сертификацию по ГОСТ 30403-2012 (пожарная безопасность) и испытания на ветровую нагрузку до 45 м/с. Доставка: 24 часа по СПб и Москве, 2-10 дней по регионам России. Готовы рассчитать комплектацию под ваш автомобиль? Оставьте заявку — подготовим схему расстановки за 15 минут!
Сколько автомобилей помещается в гараж 6х6 м?
В гараже комфортно размещается 1 крупногабаритный автомобиль (внедорожник, микроавтобус) с запасом места для инвентаря. Для 2 компактных авто (седаны класса B-C) требуется организация парковки под углом 45 градусов — расстояние между бамперами 60 см, между боковыми зеркалами 40 см. Для параллельной парковки 2 авто рекомендуем гараж 6х9 м площадью 54 м².
Можно ли установить гараж без фундамента?
Да, гараж устанавливается на уплотненную площадку без бетонирования:
Минимальное основание: щебень фракции 20-40 мм слоем 15 см с трамбовкой
Для защиты пола от влаги укладываем геотекстиль — 4 500 ₽ за материалы и монтаж
На неровных участках используем 8 винтовых домкратов высотой до 30 см — 6 000 ₽
При необходимости устанавливаем монолитную плиту 15 см — 45 000 ₽ (включая армирование и бетон М300).
Какая температура поддерживается зимой без отопления?
При утеплении 100 мм в полу и кровле внутри сохраняется +3…+5 градусов Цельсия при наружной температуре -25 градусов Цельсия. Этого достаточно для:
Предотвращения примерзания дверей автомобиля
Защиты аккумулятора от глубокого разряда
Хранения шин и масел без потери свойств
Для поддержания +15 градусов Цельсия устанавливаем конвектор 3 кВт — доплата 9 500 ₽, расход электроэнергии 45 кВт·ч в сутки при -20 градусов Цельсия.
Сколько стоит подключение электричества для освещения и зарядки авто?
Базовый пакет «Электрика Гараж» включает:
Вводной кабель ВВГнг 3х2,5 длиной 20 м с вилкой для подключения к столбу
Распределительный щиток с автоматами и УЗО
4 розетки с защитой от влаги (2 у ворот, 2 у стены)
Светодиодные светильники 4 шт по углам гаража
Розетка для зарядки электромобиля 16А (опция +5 000 ₽)
Стоимость — 15 000 ₽ при покупке, 2 000 ₽/мес при аренде. Подключение к городской сети выполняет электромонтажная организация — мы предоставляем технические условия бесплатно.
Чем модульный гараж выгоднее аренды места на стоянке?
Экономия составляет от 60 000 ₽ в год:
Аренда модульного гаража: 15 000 ₽/мес × 12 = 180 000 ₽/год
Аренда места на охраняемой стоянке (5 000 ₽/мес × 12): 60 000 ₽ + эвакуация при опоздании 3 000 ₽ × 4 раза = 72 000 ₽
Дополнительные преимущества модульного гаража:
Круглосуточный доступ без ограничений времени выезда/въезда
Возможность хранения инвентаря, шин, запчастей без доплаты
Установка собственного оборудования (зарядка для электромобиля, компрессор)
Собственность на объект — окупаемость за 3-4 года при покупке за 550 000 ₽