Бытовка строительная стандарт
8000 руб.
В наличии
Нет в наличии
- 60 площадок по всей РФ
- Быстрый расчет и доставка
- Большой ассортимент оборудования для стройки
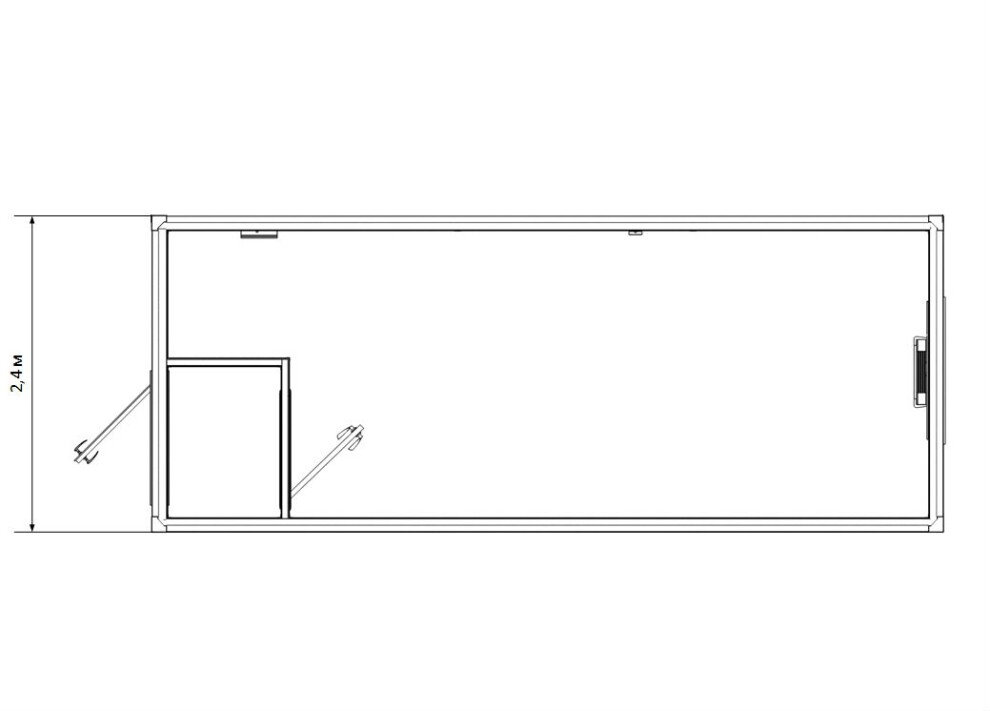
Строительная бытовка из профлиста С8 с функциональным тамбуром. Размеры 6х2,4х2,4 м, площадь 14,4 м², утепление 50 мм. Аренда от 10 500 ₽/мес, продажа от 280 000 ₽. Доставка по СПб, Москве и России за 24ч.
- Артикул:
- sku0100
Бытовка строительная стандартная с тамбуром — это практичное решение для размещения рабочих бригад на стройплощадках по всей России. Защитный тамбур площадью 1,5 м² предотвращает занос строительной пыли, грязи и снега в жилую зону, обеспечивая соблюдение санитарных норм Ростехнадзора при эксплуатации в условиях интенсивных строительных работ в Санкт-Петербурге, Москве и регионах с тяжелыми климатическими условиями.
Ключевые преимущества строительной бытовки:
Соответствие нормам СНиП 12-03-2001 — площадь 14,4 м² позволяет разместить до 4 рабочих с соблюдением нормы 3,6 м² на человека для временного проживания вахтовым методом
Пыле- и грязезащита — тамбур с двумя дверями исключает проникновение строительных загрязнений в жилую зону, снижая частоту уборки в 3 раза по сравнению с моделями без тамбура
Устойчивость к агрессивной среде — оцинкованный профлист С8 толщиной 0,4 мм выдерживает механические повреждения от строительного инвентаря и устойчив к коррозии при контакте с цементными растворами
Мобильность на объекте — вес 2 800 кг позволяет перемещать бытовку краном-манипулятором без демонтажа при смене этапа строительства
Предлагаем как аренду, так и покупку от «Профмастер»:
Аренда от 10 500 ₽/мес с доставкой и установкой на неподготовленную площадку
Продажа от 280 000 ₽ за 6-метровую версию, от 380 000 ₽ за 9-метровую
Рассрочка до 12 месяцев без процентов для строительных компаний
Бесплатная доставка по России при заказе от 2 бытовок или покупке от 400 000 ₽
Технические характеристики:
Конструкция для стройплощадки:
Каркас из швеллера холодногнутого 100х50х3 мм усилен дополнительными раскосами для устойчивости на неровных поверхностях
Внешняя обшивка профлистом С8 толщиной 0,4 мм с оцинковкой и синей порошковой окраской (устойчивость к УФ и химическим воздействиям)
Кровля из плоского листа 0,8 мм со швами, обработанными битумной мастикой для предотвращения протечек при косом дожде
Утепление и практичная отделка:
Минеральная вата 50 мм в стенах, полу и потолке (опция 100 мм для зимнего строительства — доплата 30 000 ₽)
Пароизоляционная мембрана Класс В по всему периметру для защиты от конденсата при перепадах температур
Внутренняя отделка ДВП серого цвета — устойчива к загрязнениям и легко очищается влажной тряпкой
Чистовой пол из ОСБ 15 мм выдерживает нагрузку от строительной обуви и инвентаря до 300 кг/м²
Комплектация под строительные задачи:
Окно ПВХ 800х1000 мм поворотное в торцевой стене — обеспечивает вентиляцию без сквозняков
Дверь входная оргалитовая 800х2000 мм с наружной обшивкой оцинкованным листом — устойчива к ударам лопатами и ломами
Дверь межкомнатная оргалитовая 800х2000 мм — зонирует тамбур (1,5 м²) и жилую зону (12,9 м²)
Возможность установки вешалок для спецодежды в тамбуре — 3 500 ₽, полок под обувь — 2 800 ₽
Почему выбирают «Профмастер»:
Компания «Профмастер» поставляет строительные бытовки с 2014 года. Наши модули используются на объектах «Газпрома», «РЖД» и «Главстроя» в Санкт-Петербурге, Москве и Хабаровске. Гарантия: 12 месяцев при аренде, 24 месяца при покупке. Все бытовки проходят проверку на соответствие СП 48.13330.2011 «Организация строительства». Доставка: 24 часа по СПб и Москве, 2-10 дней по регионам России. Готовы подобрать комплектацию под вашу стройплощадку? Оставьте заявку — рассчитаем количество бытовок за 15 минут!
Сколько рабочих можно разместить в бытовке по нормам Ростехнадзора?
Для временного проживания (вахтовый метод) — до 4 человек с соблюдением нормы 3,6 м² на человека. Для дневного пребывания (раздевалка/отдых) — до 8 человек с организацией двухъярусных полок. Для постоянного проживания более 4 человек требуется установка второй бытовки или выбор 9-метровой версии площадью 21,6 м².
Как быстро устанавливается бытовка на неподготовленную площадку?
Установка занимает 40 минут без бетонирования:
15 минут — выравнивание на 4 винтовых домкратах высотой до 30 см
15 минут — крепление к грунту анкерами М16 (входит в комплект)
10 минут — проверка горизонта и герметичности дверных проемов
Возможно размещение на грунте, щебне или асфальте без устройства фундамента. При необходимости устанавливаем дополнительные опоры под свесы за 2 500 ₽.
Можно ли использовать бытовку зимой на северных стройках?
При базовом утеплении 50 мм и конвекторе 2 кВт поддерживается +16 градусов Цельсия при наружной температуре до -15 градусов Цельсия. Для северных регионов (Ямал, Норильск) рекомендуем зимний пакет: утепление 100 мм + конвектор 3 кВт + утепление дверных проемов — доплата 38 000 ₽. Такая комплектация работает до -30 градусов Цельсия.
Чем строительная бытовка с тамбуром лучше обычного вагончика?
Ключевые отличия для стройплощадки:
Тамбур предотвращает занос строительной грязи — уборка требуется 1 раз в неделю вместо ежедневной
Усиленный каркас выдерживает ветровую нагрузку 45 м/с — не требует дополнительного крепления при штормах
Оцинковка профлиста защищает от коррозии при контакте с бетоном — срок службы 15 лет против 8 лет у обычных вагончиков
Возможность перемещения краном без демонтажа — экономия 4-6 часов при смене этапа работ
Доплата за строительную комплектацию — 18 000 ₽ при покупке, окупается за 1 строительный сезон.
Какие документы предоставляет Профмастер для приемки Ростехнадзором?
При поставке выдаем полный пакет:
Паспорт модуля с указанием несущей способности и ветровой нагрузки
Акт проверки электросистем (при установке проводки)
Схема размещения бытовок на площадке (бесплатно при заказе от 3 шт.)
Договор аренды/купли-продажи с указанием гарантийных обязательств
Все документы соответствуют требованиям Ростехнадзора для оформления строительного городка. При необходимости предоставляем технические условия для подключения к сетям за 5 000 ₽.
Ключевые преимущества строительной бытовки:
Соответствие нормам СНиП 12-03-2001 — площадь 14,4 м² позволяет разместить до 4 рабочих с соблюдением нормы 3,6 м² на человека для временного проживания вахтовым методом
Пыле- и грязезащита — тамбур с двумя дверями исключает проникновение строительных загрязнений в жилую зону, снижая частоту уборки в 3 раза по сравнению с моделями без тамбура
Устойчивость к агрессивной среде — оцинкованный профлист С8 толщиной 0,4 мм выдерживает механические повреждения от строительного инвентаря и устойчив к коррозии при контакте с цементными растворами
Мобильность на объекте — вес 2 800 кг позволяет перемещать бытовку краном-манипулятором без демонтажа при смене этапа строительства
Предлагаем как аренду, так и покупку от «Профмастер»:
Аренда от 10 500 ₽/мес с доставкой и установкой на неподготовленную площадку
Продажа от 280 000 ₽ за 6-метровую версию, от 380 000 ₽ за 9-метровую
Рассрочка до 12 месяцев без процентов для строительных компаний
Бесплатная доставка по России при заказе от 2 бытовок или покупке от 400 000 ₽
Технические характеристики:
Конструкция для стройплощадки:
Каркас из швеллера холодногнутого 100х50х3 мм усилен дополнительными раскосами для устойчивости на неровных поверхностях
Внешняя обшивка профлистом С8 толщиной 0,4 мм с оцинковкой и синей порошковой окраской (устойчивость к УФ и химическим воздействиям)
Кровля из плоского листа 0,8 мм со швами, обработанными битумной мастикой для предотвращения протечек при косом дожде
Утепление и практичная отделка:
Минеральная вата 50 мм в стенах, полу и потолке (опция 100 мм для зимнего строительства — доплата 30 000 ₽)
Пароизоляционная мембрана Класс В по всему периметру для защиты от конденсата при перепадах температур
Внутренняя отделка ДВП серого цвета — устойчива к загрязнениям и легко очищается влажной тряпкой
Чистовой пол из ОСБ 15 мм выдерживает нагрузку от строительной обуви и инвентаря до 300 кг/м²
Комплектация под строительные задачи:
Окно ПВХ 800х1000 мм поворотное в торцевой стене — обеспечивает вентиляцию без сквозняков
Дверь входная оргалитовая 800х2000 мм с наружной обшивкой оцинкованным листом — устойчива к ударам лопатами и ломами
Дверь межкомнатная оргалитовая 800х2000 мм — зонирует тамбур (1,5 м²) и жилую зону (12,9 м²)
Возможность установки вешалок для спецодежды в тамбуре — 3 500 ₽, полок под обувь — 2 800 ₽
Почему выбирают «Профмастер»:
Компания «Профмастер» поставляет строительные бытовки с 2014 года. Наши модули используются на объектах «Газпрома», «РЖД» и «Главстроя» в Санкт-Петербурге, Москве и Хабаровске. Гарантия: 12 месяцев при аренде, 24 месяца при покупке. Все бытовки проходят проверку на соответствие СП 48.13330.2011 «Организация строительства». Доставка: 24 часа по СПб и Москве, 2-10 дней по регионам России. Готовы подобрать комплектацию под вашу стройплощадку? Оставьте заявку — рассчитаем количество бытовок за 15 минут!
Сколько рабочих можно разместить в бытовке по нормам Ростехнадзора?
Для временного проживания (вахтовый метод) — до 4 человек с соблюдением нормы 3,6 м² на человека. Для дневного пребывания (раздевалка/отдых) — до 8 человек с организацией двухъярусных полок. Для постоянного проживания более 4 человек требуется установка второй бытовки или выбор 9-метровой версии площадью 21,6 м².
Как быстро устанавливается бытовка на неподготовленную площадку?
Установка занимает 40 минут без бетонирования:
15 минут — выравнивание на 4 винтовых домкратах высотой до 30 см
15 минут — крепление к грунту анкерами М16 (входит в комплект)
10 минут — проверка горизонта и герметичности дверных проемов
Возможно размещение на грунте, щебне или асфальте без устройства фундамента. При необходимости устанавливаем дополнительные опоры под свесы за 2 500 ₽.
Можно ли использовать бытовку зимой на северных стройках?
При базовом утеплении 50 мм и конвекторе 2 кВт поддерживается +16 градусов Цельсия при наружной температуре до -15 градусов Цельсия. Для северных регионов (Ямал, Норильск) рекомендуем зимний пакет: утепление 100 мм + конвектор 3 кВт + утепление дверных проемов — доплата 38 000 ₽. Такая комплектация работает до -30 градусов Цельсия.
Чем строительная бытовка с тамбуром лучше обычного вагончика?
Ключевые отличия для стройплощадки:
Тамбур предотвращает занос строительной грязи — уборка требуется 1 раз в неделю вместо ежедневной
Усиленный каркас выдерживает ветровую нагрузку 45 м/с — не требует дополнительного крепления при штормах
Оцинковка профлиста защищает от коррозии при контакте с бетоном — срок службы 15 лет против 8 лет у обычных вагончиков
Возможность перемещения краном без демонтажа — экономия 4-6 часов при смене этапа работ
Доплата за строительную комплектацию — 18 000 ₽ при покупке, окупается за 1 строительный сезон.
Какие документы предоставляет Профмастер для приемки Ростехнадзором?
При поставке выдаем полный пакет:
Паспорт модуля с указанием несущей способности и ветровой нагрузки
Акт проверки электросистем (при установке проводки)
Схема размещения бытовок на площадке (бесплатно при заказе от 3 шт.)
Договор аренды/купли-продажи с указанием гарантийных обязательств
Все документы соответствуют требованиям Ростехнадзора для оформления строительного городка. При необходимости предоставляем технические условия для подключения к сетям за 5 000 ₽.