Блок-контейнер штаб строительства с санузлом и кухней
217300 руб.
В наличии
Нет в наличии
- 60 площадок по всей РФ
- Быстрый расчет и доставка
- Большой ассортимент оборудования для стройки
Штаб строительства из профлиста С8 с кабинетом, кухней-гостиной и санузлом. Длина 6-9 м, площадь 14,4-21,6 м², утепление 50 мм. Аренда от 13 500 ₽/мес, продажа от 350 000 ₽. Доставка по СПб, Москве и России за 24ч.
- Артикул:
- ПР-БК-17
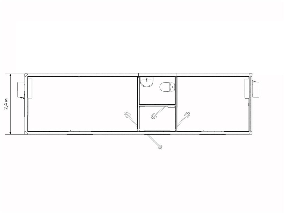
Блок-контейнер штаб строительства с санузлом и кухней — это универсальное решение «все в одном» для комфортного размещения управляющего персонала на строительных площадках по всей России. Трехзонная планировка с тамбуром включает рабочий кабинет, кухню-гостиную для приема пищи и отдыха, а также отдельный санузел с вентиляцией — всё в одном модуле площадью 14,4 м², что снижает транспортные расходы и исключает переходы на улицу в непогоду в условиях Санкт-Петербурга, Москвы и удаленных регионов.
Ключевые преимущества многофункционального штаба:
Максимальная автономность — наличие кухни с возможностью установки плиты, холодильника и мойки позволяет персоналу питаться на объекте без выезда, экономя до 2 часов рабочего времени в смену
Эффективная теплоизоляция — тамбур площадью 2 м² снижает теплопотери на 35%, а утепление 50 мм сохраняет +18 градусов Цельсия при -15 градусов Цельсия на улице с конвектором 2 кВт
Продуманная эргономика — три окна ПВХ 800х1000 мм обеспечивают естественное освещение во всех зонах, исключая ощущение замкнутого пространства при 8-часовом пребывании
Быстрый ввод в эксплуатацию — монтаж и подключение всех систем занимает 3,5 часа, включая установку на площадку и подключение к электросети 220В
Предлагаем как аренду, так и покупку от «Профмастер»:
Аренда от 13 500 ₽/мес с доставкой и установкой
Продажа от 350 000 ₽ за 6-метровую версию, от 450 000 ₽ за 9-метровую
Рассрочка до 18 месяцев без процентов для юридических лиц
Бесплатная доставка по России при покупке от 400 000 ₽
Технические характеристики:
Планировка и зонирование:
Тамбур 2 м² → кабинет 4,5 м² → кухня-гостиная 5,5 м² → санузел 2,4 м²
Три межкомнатные двери оргалитовые 800х2000 мм для полной изоляции зон
Три окна ПВХ 800х1000 мм поворотных — по одному в каждой функциональной зоне
Конструкция и утепление:
Каркас из швеллера холодногнутого 100х50х3 мм и уголка 90х90х3 мм
Внешняя обшивка профлистом С8 толщиной 0,4 мм с оцинковкой и синей порошковой окраской
Минеральная вата 50 мм в стенах, полу и потолке (опция 100 мм за доплату 35 000 ₽)
Пароизоляционная мембрана Класс В по всему периметру и перегородкам
Внутренняя отделка и инженерия:
Кабинет и кухня: отделка ДВП белого цвета на стенах и потолке
Санузел и кухонная зона: влагостойкие ПВХ-панели на стенах и потолке
Чистовой пол из ОСБ 15 мм по лагам из бруса 40х100 мм
Опции: электропроводка (12 000 ₽), конвектор 2 кВт (6 500 ₽), бойлер 50 л + умывальник (28 000 ₽), двухкомфорочная плита (9 500 ₽)
Почему выбирают «Профмастер»:
Компания «Профмастер» специализируется на модульных конструкциях с 2014 года. Наши штабы используются на объектах «Газпрома», «РЖД» и «ПИК» в Санкт-Петербурге, Москве и Екатеринбурге. Гарантия: 18 месяцев при аренде, 36 месяцев при покупке. Все модули проходят проверку на герметичность, испытания электросистем и соответствие СП 54.13330.2016. Доставка: 24 часа по СПб и Москве, 2-10 дней по регионам России. Готовы рассчитать комплектацию под ваш объект? Оставьте заявку — подготовим коммерческое предложение за 15 минут!
Сколько человек может комфортно использовать штаб одновременно?
В кабинете комфортно работают 2 человека за столом 1,2х0,6 м. В кухне-гостиной могут одновременно отдыхать и принимать пищу 4 человека за столом 1х0,8 м. Санузел рассчитан на обслуживание до 20 человек в смену. Для размещения 6 человек рекомендуем 9-метровую версию с увеличенной кухней 8 м².
Какие бытовые приборы можно установить на кухне?
Стандартно устанавливаем: двухкомфорочную электроплиту 3,5 кВт (9 500 ₽), мойку с смесителем (7 500 ₽), навесные шкафы 1,2 м погонных (12 000 ₽). По запросу: холодильник 150 л (аренда 1 500 ₽/мес), микроволновка 20 л (аренда 500 ₽/мес), вытяжка 60 см (18 000 ₽). Максимальная нагрузка на электросеть — 6 кВт при подключении 380В.
Можно ли эксплуатировать штаб зимой без подключения к центральному отоплению?
Да, при базовом утеплении 50 мм и конвекторе 2 кВт поддерживается +18 градусов Цельсия при наружной температуре до -15 градусов Цельсия. Для эксплуатации до -25 градусов рекомендуем зимний пакет: утепление 100 мм + второй конвектор 2 кВт + тепловентилятор в санузле — доплата 48 000 ₽. В санузле устанавливаем обогрев трубы канализации за 6 500 ₽ для предотвращения замерзания.
Сколько стоит подключение водоснабжения и канализации?
Для автономной работы предлагаем комплект «Комфорт»: бойлер 50 л + накопительный бак ХВС 100 л + насосная станция + септик-люк 200 л — 75 000 ₽. Запаса воды хватает на 8 человек в течение суток. При подключении к центральным сетям монтаж разводки ХВС/ГВС и канализации стоит 22 000 ₽. Все работы выполняются бригадой «Профмастер» в течение 1 часа после установки модуля.
Чем штаб с кухней выгоднее аренды кафе поблизости?
Экономия составляет от 45 000 ₽ в месяц для бригады из 5 человек:
Аренда штаба с кухней: 13 500 ₽/мес
Аренда отдельного контейнера + питание в кафе (350 ₽/человек/день × 22 дня × 5 человек): 58 500 ₽/мес
Дополнительные преимущества: сокращение времени обеденного перерыва с 60 до 20 минут, отсутствие зависимости от графика работы заведений, возможность приема пищи в любое время суток при вахтовом методе работы.
Ключевые преимущества многофункционального штаба:
Максимальная автономность — наличие кухни с возможностью установки плиты, холодильника и мойки позволяет персоналу питаться на объекте без выезда, экономя до 2 часов рабочего времени в смену
Эффективная теплоизоляция — тамбур площадью 2 м² снижает теплопотери на 35%, а утепление 50 мм сохраняет +18 градусов Цельсия при -15 градусов Цельсия на улице с конвектором 2 кВт
Продуманная эргономика — три окна ПВХ 800х1000 мм обеспечивают естественное освещение во всех зонах, исключая ощущение замкнутого пространства при 8-часовом пребывании
Быстрый ввод в эксплуатацию — монтаж и подключение всех систем занимает 3,5 часа, включая установку на площадку и подключение к электросети 220В
Предлагаем как аренду, так и покупку от «Профмастер»:
Аренда от 13 500 ₽/мес с доставкой и установкой
Продажа от 350 000 ₽ за 6-метровую версию, от 450 000 ₽ за 9-метровую
Рассрочка до 18 месяцев без процентов для юридических лиц
Бесплатная доставка по России при покупке от 400 000 ₽
Технические характеристики:
Планировка и зонирование:
Тамбур 2 м² → кабинет 4,5 м² → кухня-гостиная 5,5 м² → санузел 2,4 м²
Три межкомнатные двери оргалитовые 800х2000 мм для полной изоляции зон
Три окна ПВХ 800х1000 мм поворотных — по одному в каждой функциональной зоне
Конструкция и утепление:
Каркас из швеллера холодногнутого 100х50х3 мм и уголка 90х90х3 мм
Внешняя обшивка профлистом С8 толщиной 0,4 мм с оцинковкой и синей порошковой окраской
Минеральная вата 50 мм в стенах, полу и потолке (опция 100 мм за доплату 35 000 ₽)
Пароизоляционная мембрана Класс В по всему периметру и перегородкам
Внутренняя отделка и инженерия:
Кабинет и кухня: отделка ДВП белого цвета на стенах и потолке
Санузел и кухонная зона: влагостойкие ПВХ-панели на стенах и потолке
Чистовой пол из ОСБ 15 мм по лагам из бруса 40х100 мм
Опции: электропроводка (12 000 ₽), конвектор 2 кВт (6 500 ₽), бойлер 50 л + умывальник (28 000 ₽), двухкомфорочная плита (9 500 ₽)
Почему выбирают «Профмастер»:
Компания «Профмастер» специализируется на модульных конструкциях с 2014 года. Наши штабы используются на объектах «Газпрома», «РЖД» и «ПИК» в Санкт-Петербурге, Москве и Екатеринбурге. Гарантия: 18 месяцев при аренде, 36 месяцев при покупке. Все модули проходят проверку на герметичность, испытания электросистем и соответствие СП 54.13330.2016. Доставка: 24 часа по СПб и Москве, 2-10 дней по регионам России. Готовы рассчитать комплектацию под ваш объект? Оставьте заявку — подготовим коммерческое предложение за 15 минут!
Сколько человек может комфортно использовать штаб одновременно?
В кабинете комфортно работают 2 человека за столом 1,2х0,6 м. В кухне-гостиной могут одновременно отдыхать и принимать пищу 4 человека за столом 1х0,8 м. Санузел рассчитан на обслуживание до 20 человек в смену. Для размещения 6 человек рекомендуем 9-метровую версию с увеличенной кухней 8 м².
Какие бытовые приборы можно установить на кухне?
Стандартно устанавливаем: двухкомфорочную электроплиту 3,5 кВт (9 500 ₽), мойку с смесителем (7 500 ₽), навесные шкафы 1,2 м погонных (12 000 ₽). По запросу: холодильник 150 л (аренда 1 500 ₽/мес), микроволновка 20 л (аренда 500 ₽/мес), вытяжка 60 см (18 000 ₽). Максимальная нагрузка на электросеть — 6 кВт при подключении 380В.
Можно ли эксплуатировать штаб зимой без подключения к центральному отоплению?
Да, при базовом утеплении 50 мм и конвекторе 2 кВт поддерживается +18 градусов Цельсия при наружной температуре до -15 градусов Цельсия. Для эксплуатации до -25 градусов рекомендуем зимний пакет: утепление 100 мм + второй конвектор 2 кВт + тепловентилятор в санузле — доплата 48 000 ₽. В санузле устанавливаем обогрев трубы канализации за 6 500 ₽ для предотвращения замерзания.
Сколько стоит подключение водоснабжения и канализации?
Для автономной работы предлагаем комплект «Комфорт»: бойлер 50 л + накопительный бак ХВС 100 л + насосная станция + септик-люк 200 л — 75 000 ₽. Запаса воды хватает на 8 человек в течение суток. При подключении к центральным сетям монтаж разводки ХВС/ГВС и канализации стоит 22 000 ₽. Все работы выполняются бригадой «Профмастер» в течение 1 часа после установки модуля.
Чем штаб с кухней выгоднее аренды кафе поблизости?
Экономия составляет от 45 000 ₽ в месяц для бригады из 5 человек:
Аренда штаба с кухней: 13 500 ₽/мес
Аренда отдельного контейнера + питание в кафе (350 ₽/человек/день × 22 дня × 5 человек): 58 500 ₽/мес
Дополнительные преимущества: сокращение времени обеденного перерыва с 60 до 20 минут, отсутствие зависимости от графика работы заведений, возможность приема пищи в любое время суток при вахтовом методе работы.