Блок-контейнер сантехнический с душевыми кабинками
278500 руб.
В наличии
Нет в наличии
- 60 площадок по всей РФ
- Быстрый расчет и доставка
- Большой ассортимент оборудования для стройки
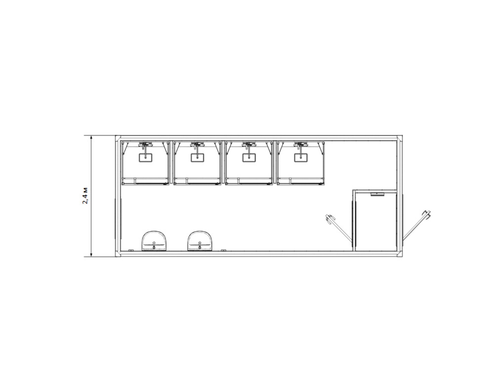
Сантехнический блок-контейнер с 4 душевыми кабинками и 2 умывальниками. Длина 6 м, входной тамбур, утепление минватой 50 мм. ПВХ-отделка, система отопления. Аренда от 14 500 ₽/мес, продажа от 450 000 ₽. Доставка по СПб, Москве и России за 24ч.
- Артикул:
- ПР-БК-20
Блок-контейнер сантехнический с душевыми кабинками — это готовое решение для организации санитарных зон на строительных площадках, вахтовых поселках и промышленных объектах по всей России. Уникальная конструкция с входным тамбуром и системой отопления обеспечивает комфортную эксплуатацию круглый год — от Санкт-Петербурга и Москвы до Сибири и Дальнего Востока.
Ключевые преимущества душевого модуля:
Высокая пропускная способность: до 7 изолированных душевых кабинок в 9-метровой версии обслуживают до 35 человек за смену
Круглогодичная эксплуатация: входной тамбур снижает теплопотери на 30%, утепление 50 мм позволяет работать при температуре до -25°C
Полная готовность к запуску: установка и подключение к водоснабжению занимает 2-3 часа без подготовки фундамента
Гигиеничная отделка: внутренние ПВХ-панели легко моются и устойчивы к влаге и химическим средствам
Предлагаем как аренду, так и покупку от «Профмастер»:
Аренда от 14 500 ₽/мес с доставкой и подключением «под ключ»
Продажа от 450 000 ₽ за 6-метровую базовую версию, от 680 000 ₽ за 9-метровую с 7 кабинками
Рассрочка до 24 месяцев без процентов для юридических лиц и ИП
Бесплатная доставка по России при покупке от 520 000 ₽
Технические характеристики:
Надежная конструкция:
Стальной каркас из швеллера 100×50×3 мм и уголка 90×90×3 мм с антикоррозийной обработкой
Внешняя обшивка — оцинкованный профлист С8 толщиной 0,4 мм (цвет: синий)
Утепление минеральной ватой 50 мм по всему периметру + пароизоляционная мембрана класса В
Входной тамбур площадью 2 м² как зона защиты от холода и ветра
Сантехническое оснащение:
Четыре душевые кабинки с эмалированными поддонами 800×800 мм и смесителями (в 6-метровой версии)
Два умывальника «Санфаянс» со смесителями для гигиены после процедур
Полная сантехническая разводка с выводом для подключения к воде и канализации
Возможность установки бойлера 100-150 л для автономной работы с горячей водой
Комплектация и опции:
Базовая версия: сантехника, разводка труб, входная дверь Кондор/Йошкар
Зимний пакет: система отопления (3 конвектора по 1,5 кВт), бойлер 100 л — стоимость 42 000 ₽
Премиум: система вентиляции с подогревом, антискользящее покрытие в кабинках, зеркала
Почему выбирают «Профмастер»:
Компания «Профмастер» специализируется на санитарных модулях с 2014 года. Наши блок-контейнеры используются на объектах «Газпром нефти», «Росатома» и «Норникеля» в Санкт-Петербурге, Москве, Норильске и Магадане. Гарантия: 36 месяцев при аренде, 60 месяцев при покупке. Все модули проходят гидравлические испытания и сертификацию по СанПиН 2.1.2.2645-10. Доставка: 24 часа по СПб и Москве, 2-7 дней по регионам России. Готовы рассчитать комплектацию под ваш объект? Оставьте заявку — подготовим коммерческое предложение за 15 минут!
FAQ
Сколько душевых кабинок можно разместить в 9-метровой версии?
В 9-метровой версии комфортно размещаются 7 изолированных душевых кабинок площадью по 1 м² каждая. При интенсивной эксплуатации (вахтовые поселки) рекомендуем устанавливать дополнительные умывальники — до 4 штук. Максимальная пропускная способность — 40 человек за 8-часовую смену при организации двух потоков.
Как происходит подогрев воды при отсутствии центрального горячего водоснабжения?
Для объектов без ГВС устанавливаем бойлер косвенного нагрева на 100-150 литров с ТЭНами 6 кВт. Стоимость комплектации — 38 000 ₽. Бойлер обеспечивает горячую воду для 4 кабинок одновременно. Автономной работы хватает на 60 минут непрерывного использования. Для круглосуточной работы предлагаем два бойлера с резервированием — доплата 25 000 ₽.
Сколько стоит аренда 7-метровой версии с полной зимней комплектацией в Московской области?
Аренда 7-метрового сантехнического блока с зимней комплектацией (бойлер 100 л, 3 конвектора по 1,5 кВт, система вентиляции) в Московской области стоит от 26 000 ₽/мес. В стоимость входит доставка по МО в радиусе 100 км от МКАД, установка, подключение к электросети 380В и воде. Для объектов за пределами 100 км — рассчитываем индивидуально.
Можно ли использовать блок зимой в условиях Якутии при -45°C?
Да, для эксплуатации в Якутии устанавливаем усиленное утепление: минвата 100 мм вместо стандартных 50 мм. Система отопления включает 5 конвекторов по 2 кВт (10 кВт общая мощность) и обогрев труб саморегулирующимся кабелем. Все двери и окна уплотняются термошнурами. Такая комплектация поддерживает +22°C внутри при -40°C на улице. Стоимость зимнего пакета для экстремальных условий — 78 000 ₽.
Как часто требуется обслуживание душевого блока при интенсивной эксплуатации?
При стандартной эксплуатации (до 25 человек в смену) обслуживание требуется 1 раз в неделю: дезинфекция кабинок, очистка умывальников, проверка герметичности смесителей. Стоимость — 4 000 ₽ за выезд. При круглосуточной эксплуатации (вахтовые условия) — 2 раза в неделю. Все работы выполняют сертифицированные специалисты с предоставлением акта. При аренде от 6 месяцев обслуживание 1 раз в месяц — бесплатно.
Ключевые преимущества душевого модуля:
Высокая пропускная способность: до 7 изолированных душевых кабинок в 9-метровой версии обслуживают до 35 человек за смену
Круглогодичная эксплуатация: входной тамбур снижает теплопотери на 30%, утепление 50 мм позволяет работать при температуре до -25°C
Полная готовность к запуску: установка и подключение к водоснабжению занимает 2-3 часа без подготовки фундамента
Гигиеничная отделка: внутренние ПВХ-панели легко моются и устойчивы к влаге и химическим средствам
Предлагаем как аренду, так и покупку от «Профмастер»:
Аренда от 14 500 ₽/мес с доставкой и подключением «под ключ»
Продажа от 450 000 ₽ за 6-метровую базовую версию, от 680 000 ₽ за 9-метровую с 7 кабинками
Рассрочка до 24 месяцев без процентов для юридических лиц и ИП
Бесплатная доставка по России при покупке от 520 000 ₽
Технические характеристики:
Надежная конструкция:
Стальной каркас из швеллера 100×50×3 мм и уголка 90×90×3 мм с антикоррозийной обработкой
Внешняя обшивка — оцинкованный профлист С8 толщиной 0,4 мм (цвет: синий)
Утепление минеральной ватой 50 мм по всему периметру + пароизоляционная мембрана класса В
Входной тамбур площадью 2 м² как зона защиты от холода и ветра
Сантехническое оснащение:
Четыре душевые кабинки с эмалированными поддонами 800×800 мм и смесителями (в 6-метровой версии)
Два умывальника «Санфаянс» со смесителями для гигиены после процедур
Полная сантехническая разводка с выводом для подключения к воде и канализации
Возможность установки бойлера 100-150 л для автономной работы с горячей водой
Комплектация и опции:
Базовая версия: сантехника, разводка труб, входная дверь Кондор/Йошкар
Зимний пакет: система отопления (3 конвектора по 1,5 кВт), бойлер 100 л — стоимость 42 000 ₽
Премиум: система вентиляции с подогревом, антискользящее покрытие в кабинках, зеркала
Почему выбирают «Профмастер»:
Компания «Профмастер» специализируется на санитарных модулях с 2014 года. Наши блок-контейнеры используются на объектах «Газпром нефти», «Росатома» и «Норникеля» в Санкт-Петербурге, Москве, Норильске и Магадане. Гарантия: 36 месяцев при аренде, 60 месяцев при покупке. Все модули проходят гидравлические испытания и сертификацию по СанПиН 2.1.2.2645-10. Доставка: 24 часа по СПб и Москве, 2-7 дней по регионам России. Готовы рассчитать комплектацию под ваш объект? Оставьте заявку — подготовим коммерческое предложение за 15 минут!
FAQ
Сколько душевых кабинок можно разместить в 9-метровой версии?
В 9-метровой версии комфортно размещаются 7 изолированных душевых кабинок площадью по 1 м² каждая. При интенсивной эксплуатации (вахтовые поселки) рекомендуем устанавливать дополнительные умывальники — до 4 штук. Максимальная пропускная способность — 40 человек за 8-часовую смену при организации двух потоков.
Как происходит подогрев воды при отсутствии центрального горячего водоснабжения?
Для объектов без ГВС устанавливаем бойлер косвенного нагрева на 100-150 литров с ТЭНами 6 кВт. Стоимость комплектации — 38 000 ₽. Бойлер обеспечивает горячую воду для 4 кабинок одновременно. Автономной работы хватает на 60 минут непрерывного использования. Для круглосуточной работы предлагаем два бойлера с резервированием — доплата 25 000 ₽.
Сколько стоит аренда 7-метровой версии с полной зимней комплектацией в Московской области?
Аренда 7-метрового сантехнического блока с зимней комплектацией (бойлер 100 л, 3 конвектора по 1,5 кВт, система вентиляции) в Московской области стоит от 26 000 ₽/мес. В стоимость входит доставка по МО в радиусе 100 км от МКАД, установка, подключение к электросети 380В и воде. Для объектов за пределами 100 км — рассчитываем индивидуально.
Можно ли использовать блок зимой в условиях Якутии при -45°C?
Да, для эксплуатации в Якутии устанавливаем усиленное утепление: минвата 100 мм вместо стандартных 50 мм. Система отопления включает 5 конвекторов по 2 кВт (10 кВт общая мощность) и обогрев труб саморегулирующимся кабелем. Все двери и окна уплотняются термошнурами. Такая комплектация поддерживает +22°C внутри при -40°C на улице. Стоимость зимнего пакета для экстремальных условий — 78 000 ₽.
Как часто требуется обслуживание душевого блока при интенсивной эксплуатации?
При стандартной эксплуатации (до 25 человек в смену) обслуживание требуется 1 раз в неделю: дезинфекция кабинок, очистка умывальников, проверка герметичности смесителей. Стоимость — 4 000 ₽ за выезд. При круглосуточной эксплуатации (вахтовые условия) — 2 раза в неделю. Все работы выполняют сертифицированные специалисты с предоставлением акта. При аренде от 6 месяцев обслуживание 1 раз в месяц — бесплатно.