Блок-контейнер сантехнический с душевыми и туалетными кабинками №1
В наличии
Нет в наличии
- 60 площадок по всей РФ
- Быстрый расчет и доставка
- Большой ассортимент оборудования для стройки
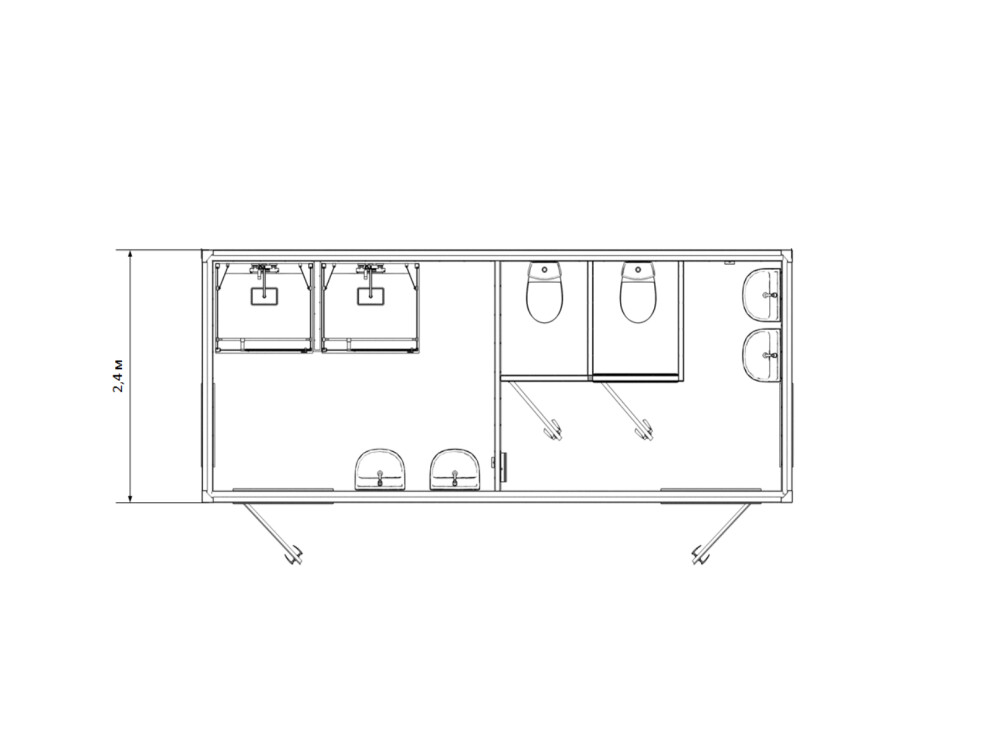
Сантехблок №1 совмещенного типа: душевые (2 кабинки) и туалетные зоны (2 кабинки) с отдельными входами. Длина 6 м, утепление минватой 50 мм, ПВХ-отделка. Без тамбура в душевом помещении. Аренда от 13 500 ₽/мес, продажа от 420 000 ₽. Доставка по СПб, Москве и России за 24ч.
- Артикул:
- ПР-БК-22
Блок-контейнер сантехнический №1 с душевыми и туалетными кабинками — это универсальное решение для организации санитарных зон на строительных площадках, промышленных объектах и временных территориях по всей России. Уникальная планировка с двумя изолированными помещениями и отдельными входами обеспечивает комфортное разделение потоков для рабочих в условиях Санкт-Петербурга, Москвы и других регионов.
Ключевые особенности функционального модуля:
Полное разделение зон: душевая (4 м²) и туалетная (4 м²) части с независимыми входами предотвращают очереди и скопление людей
Максимальная вместимость: 2 душевые кабинки + 2 туалетные кабинки + 4 умывальника обслуживают до 20 человек за смену
Быстрый запуск: установка и подключение к коммуникациям занимает 2-3 часа без подготовки фундамента
Практичная отделка: внутренние ПВХ-панели легко моются и устойчивы к влаге
Предлагаем как аренду, так и покупку от «Профмастер»:
Аренда от 13 500 ₽/мес с доставкой и подключением «под ключ»
Продажа от 420 000 ₽ за базовую комплектацию, от 580 000 ₽ с полной электрификацией
Рассрочка до 24 месяцев без процентов для юридических лиц
Бесплатная доставка по России при покупке от 500 000 ₽
Технические характеристики:
Надежная конструкция:
Стальной каркас из швеллера 100×50×3 мм и уголка 90×90×3 мм с антикоррозийной обработкой
Внешняя обшивка — оцинкованный профлист С8 толщиной 0,4 мм (цвет: синий)
Утепление минеральной ватой 50 мм по всему периметру + пароизоляционная мембрана класса В
Плоская сварная крыша из металлического листа 0,8 мм с герметизацией швов
Сантехническое оснащение:
Душевая зона: два эмалированных поддона 800×800 мм со смесителями
Туалетная зона: два унитаза «Санфаянс» и четыре умывальника со смесителями
Две входные двери Кондор/Йошкар 2000×800 мм для разделения потоков
Два ПВХ-окна 0,8×1 м с поворотным механизмом для вентиляции
Важные особенности эксплуатации:
Отсутствие тамбура в душевой части ограничивает использование при температуре ниже 0°C
Для зимней эксплуатации рекомендуется установка конвекторов (минимум 2×1,5 кВт) и утепление труб
Раздельные коммуникации для душевой и туалетной зон упрощают подключение и обслуживание
Почему выбирают «Профмастер»:
Компания «Профмастер» специализируется на санитарных модулях с 2014 года. Наши блок-контейнеры используются на объектах «Газпрома», «РЖД» и частных застройщиков в Санкт-Петербурге, Москве и Новосибирске. Гарантия: 24 месяца при аренде, 36 месяцев при покупке. Все модули проходят гидравлические испытания и сертификацию по СанПиН 2.1.2.2645-10. Доставка: 24 часа по СПб и Москве, 2-7 дней по регионам России. Готовы рассчитать комплектацию под ваш объект? Оставьте заявку — подготовим коммерческое предложение за 15 минут!
FAQ
Сколько человек может использовать санблок одновременно?
В душевой зоне комфортно размещаются 2 человека, в туалетной — 4 человека (2 в кабинках, 2 у умывальников). Общая пропускная способность — до 20 человек за 8-часовую смену. Для объектов с численностью более 25 человек рекомендуем устанавливать второй санблок или использовать модель №2 с тамбуром.
Почему в душевой части нет тамбура и как это влияет на эксплуатацию?
Отсутствие тамбура в душевой части — конструктивная особенность для снижения стоимости и веса. Это ограничивает использование при температуре ниже 0°C из-за быстрого остывания помещения и образования конденсата. Для работы зимой в ЛО и Москве обязательно устанавливаем два конвектора по 1,5 кВт — стоимость подключения 7 000 ₽. Такая комплектация позволяет эксплуатировать блок при -10°C.
Сколько стоит аренда с доставкой в Московскую область?
Аренда сантехнического блока №1 с доставкой и установкой в Московскую область (до 50 км от МКАД) стоит от 15 500 ₽/мес. В стоимость входит: доставка манипулятором, установка на подготовленную площадку, подключение к электросети 220В. Для подключения воды и канализации — доплата 8 000 ₽. При аренде от 4 месяцев доставка — бесплатно.
Как происходит обслуживание сантехнического оборудования?
При стандартной эксплуатации (до 20 человек в смену) обслуживание требуется 1 раз в 10 дней: дезинфекция кабинок, замена картриджей в смесителях, проверка герметичности. Стоимость — 3 800 ₽ за выезд. При интенсивной эксплуатации (вахтовые объекты) — 2 раза в неделю. Все работы выполняют сертифицированные специалисты с предоставлением акта. При покупке контейнера первые 3 обслуживания — бесплатно.
Чем отличается этот блок от сантехнического блока №2?
Основное отличие — в отсутствии тамбура в душевой части у модели №1. Блок №2 имеет тамбур в душевом помещении, что позволяет эксплуатировать его при температуре до -25°C без дополнительного оборудования. Для объектов с круглогодичной эксплуатацией в Сибири и на Севере рекомендуем модель №2. Для сезонных работ (весна-осень) или объектов в теплых регионах блок №1 экономичнее на 15-20%.
Ключевые особенности функционального модуля:
Полное разделение зон: душевая (4 м²) и туалетная (4 м²) части с независимыми входами предотвращают очереди и скопление людей
Максимальная вместимость: 2 душевые кабинки + 2 туалетные кабинки + 4 умывальника обслуживают до 20 человек за смену
Быстрый запуск: установка и подключение к коммуникациям занимает 2-3 часа без подготовки фундамента
Практичная отделка: внутренние ПВХ-панели легко моются и устойчивы к влаге
Предлагаем как аренду, так и покупку от «Профмастер»:
Аренда от 13 500 ₽/мес с доставкой и подключением «под ключ»
Продажа от 420 000 ₽ за базовую комплектацию, от 580 000 ₽ с полной электрификацией
Рассрочка до 24 месяцев без процентов для юридических лиц
Бесплатная доставка по России при покупке от 500 000 ₽
Технические характеристики:
Надежная конструкция:
Стальной каркас из швеллера 100×50×3 мм и уголка 90×90×3 мм с антикоррозийной обработкой
Внешняя обшивка — оцинкованный профлист С8 толщиной 0,4 мм (цвет: синий)
Утепление минеральной ватой 50 мм по всему периметру + пароизоляционная мембрана класса В
Плоская сварная крыша из металлического листа 0,8 мм с герметизацией швов
Сантехническое оснащение:
Душевая зона: два эмалированных поддона 800×800 мм со смесителями
Туалетная зона: два унитаза «Санфаянс» и четыре умывальника со смесителями
Две входные двери Кондор/Йошкар 2000×800 мм для разделения потоков
Два ПВХ-окна 0,8×1 м с поворотным механизмом для вентиляции
Важные особенности эксплуатации:
Отсутствие тамбура в душевой части ограничивает использование при температуре ниже 0°C
Для зимней эксплуатации рекомендуется установка конвекторов (минимум 2×1,5 кВт) и утепление труб
Раздельные коммуникации для душевой и туалетной зон упрощают подключение и обслуживание
Почему выбирают «Профмастер»:
Компания «Профмастер» специализируется на санитарных модулях с 2014 года. Наши блок-контейнеры используются на объектах «Газпрома», «РЖД» и частных застройщиков в Санкт-Петербурге, Москве и Новосибирске. Гарантия: 24 месяца при аренде, 36 месяцев при покупке. Все модули проходят гидравлические испытания и сертификацию по СанПиН 2.1.2.2645-10. Доставка: 24 часа по СПб и Москве, 2-7 дней по регионам России. Готовы рассчитать комплектацию под ваш объект? Оставьте заявку — подготовим коммерческое предложение за 15 минут!
FAQ
Сколько человек может использовать санблок одновременно?
В душевой зоне комфортно размещаются 2 человека, в туалетной — 4 человека (2 в кабинках, 2 у умывальников). Общая пропускная способность — до 20 человек за 8-часовую смену. Для объектов с численностью более 25 человек рекомендуем устанавливать второй санблок или использовать модель №2 с тамбуром.
Почему в душевой части нет тамбура и как это влияет на эксплуатацию?
Отсутствие тамбура в душевой части — конструктивная особенность для снижения стоимости и веса. Это ограничивает использование при температуре ниже 0°C из-за быстрого остывания помещения и образования конденсата. Для работы зимой в ЛО и Москве обязательно устанавливаем два конвектора по 1,5 кВт — стоимость подключения 7 000 ₽. Такая комплектация позволяет эксплуатировать блок при -10°C.
Сколько стоит аренда с доставкой в Московскую область?
Аренда сантехнического блока №1 с доставкой и установкой в Московскую область (до 50 км от МКАД) стоит от 15 500 ₽/мес. В стоимость входит: доставка манипулятором, установка на подготовленную площадку, подключение к электросети 220В. Для подключения воды и канализации — доплата 8 000 ₽. При аренде от 4 месяцев доставка — бесплатно.
Как происходит обслуживание сантехнического оборудования?
При стандартной эксплуатации (до 20 человек в смену) обслуживание требуется 1 раз в 10 дней: дезинфекция кабинок, замена картриджей в смесителях, проверка герметичности. Стоимость — 3 800 ₽ за выезд. При интенсивной эксплуатации (вахтовые объекты) — 2 раза в неделю. Все работы выполняют сертифицированные специалисты с предоставлением акта. При покупке контейнера первые 3 обслуживания — бесплатно.
Чем отличается этот блок от сантехнического блока №2?
Основное отличие — в отсутствии тамбура в душевой части у модели №1. Блок №2 имеет тамбур в душевом помещении, что позволяет эксплуатировать его при температуре до -25°C без дополнительного оборудования. Для объектов с круглогодичной эксплуатацией в Сибири и на Севере рекомендуем модель №2. Для сезонных работ (весна-осень) или объектов в теплых регионах блок №1 экономичнее на 15-20%.