Блок-контейнер — лаборатория с подсобным помещением
В наличии
Нет в наличии
- 60 площадок по всей РФ
- Быстрый расчет и доставка
- Большой ассортимент оборудования для стройки
- Линолеум
- Бытовой, Полукоммерческий, Коммерческий
- Внешняя отделка
- Цветной профлист, Оцинкованный профлист, Сендвич-панели
- Утеплитель
- Мин. вата 50, Базальтовая вата 50, Мин. вата 100, Базальтовая вата 100
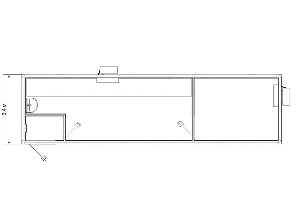
Блок-контейнер — лаборатория с подсобным помещением (кабинет/склад) и входным тамбуром. Длина 6 м, площадь 14,4 м², утепление минватой 50 мм, внутренняя отделка ПВХ. Возможна электрификация, отопление, мебель. Аренда от 15 000 ₽/мес, продажа от 380 000 ₽. Доставка по СПб, Москве и России за 24ч.
- Артикул:
- ПР-БК-26
Блок-контейнер — лаборатория с подсобным помещением — это готовое мобильное решение для научных исследований и испытаний на удаленных объектах добывающей промышленности, строительных площадках и экологических зонах по всей России. Уникальная планировка с разделением на основную лабораторию и подсобное помещение позволяет организовать рабочее пространство для проведения анализов и хранения оборудования в условиях Санкт-Петербурга, Москвы и Крайнего Севера.
Ключевые преимущества мобильной лаборатории:
Входной тамбур обеспечивает термобуферную зону, снижая теплопотери на 30% при работе в условиях холода
Два функциональных помещения: основная лаборатория (8 м²) и подсобка (4 м²) для кабинета или склада реактивов
Полная автономность: возможность установки электрооборудования, систем отопления и вентиляции под любые задачи
Быстрая развертка: установка и запуск за 2-3 часа на любой подготовленной площадке
Предлагаем как аренду, так и покупку от «Профмастер»:
Аренда от 15 000 ₽/мес с доставкой и монтажом под ключ
Продажа от 380 000 ₽ за 6-метровую базовую версию, от 580 000 ₽ за 9-метровую
Рассрочка до 24 месяцев без процентов для научных организаций и промышленных предприятий
Бесплатная доставка по России при покупке комплектации «Премиум»
Технические характеристики:
Надежная конструкция:
Каркас из стального профиля: основание швеллер 100×50×3 мм, угловые стойки уголок 90×90×3 мм
Внешняя обшивка — оцинкованный профлист С8 толщиной 0,4 мм (цвет: синий)
Утепление минеральной ватой 50 мм со всех сторон + пароизоляционная мембрана класса В
Крыша сварная плоская из металлического листа 0,8 мм с герметизацией швов мастикой
Функциональное оснащение:
Внутренняя отделка ПВХ — влагостойкие панели для легкой санобработки после работ с реактивами
Качественные двери: входная металлическая Кондор/Йошкар (2000×800 мм), две межкомнатные МДФ
Пол из ОСБ 15 мм на лагах из бруса 40×100 мм — выдерживает оборудование до 500 кг/м²
Система вентиляции с возможностью установки вытяжных шкафов для химических лабораторий
Варианты комплектации:
Стандарт: базовое освещение, 4 розетки, входная и межкомнатные двери
Научная: лабораторные столы с антикоррозийным покрытием, электрические щиты, аварийное освещение
Экстремальная: усиленное утепление 100 мм, конвекторы 4 кВт, система автономного электроснабжения
Почему выбирают «Профмастер»:
Компания «Профмастер» специализируется на создании мобильных лабораторий с 2014 года. Наши модули используются научными центрами «Сколково», лабораториями «Росгеологии» и предприятиями «Норникеля» в Санкт-Петербурге, Москве, Норильске и Магадане. Гарантия: 36 месяцев при аренде, 60 месяцев при покупке. Все контейнеры проходят сертификацию по требованиям безопасности для лабораторных помещений. Доставка: 24 часа по СПб и Москве, 2-7 дней по регионам России. Готовы рассчитать комплектацию под вашу научную задачу? Оставьте заявку — подготовим техническое предложение за 20 минут!
FAQ
Сколько лабораторного оборудования можно разместить в 6-метровой версии?
В 6-метровой версии площадью 14,4 м² комфортно размещается оборудование для 2-3 рабочих мест: лабораторные столы, весы, микроскопы, реактивы. Максимальная нагрузка на пол — 500 кг/м². Для крупного оборудования (хроматографы, спектрометры) рекомендуем 9-метровую версию или усиленную комплектацию с лагами 100×100 мм.
Как происходит вентиляция при работе с химическими реактивами?
Для лабораторий с химическими реактивами устанавливаем принудительную вентиляцию с вытяжными шкафами и системой фильтрации. Производительность — 200 м³/час. Стоимость комплекта — 65 000 ₽. В базовой версии предусмотрены приточные клапаны и вытяжные отверстия в санузле подсобного помещения для естественной циркуляции воздуха.
Сколько стоит аренда с полной научной комплектацией в Москве?
Аренда 6-метрового блок-контейнера-лаборатории с полной научной комплектацией (лабораторные столы, система вентиляции, электрика 32А, конвекторы) в Москве стоит от 28 000 ₽/мес. В стоимость входит доставка в пределах МКАД, установка, подключение к электросети 380В, первый техосмотр. Для подключения водоснабжения и канализации — доплата 8 000 ₽.
Можно ли использовать лабораторию зимой в Якутии при -50°C?
Да, для эксплуатации в Якутии при экстремальных температурах устанавливаем усиленное утепление: минвата 150 мм + обогрев вентиляционных каналов саморегулирующимся кабелем. Система отопления включает 4 конвектора по 2 кВт (8 кВт общая мощность) и резервный дизель-генератор 10 кВт. Такая комплектация поддерживает +20°C внутри при -45°C на улице. Стоимость зимнего пакета — 95 000 ₽.
Как производится подключение к электросетям для чувствительного оборудования?
Для научного оборудования устанавливаем стабилизаторы напряжения и ИБП с синусоидальным выходом. Электропроводка выполняется медным кабелем с сечением 6 мм² по металлическим коробам. Заземление выполняется по отдельному контуру с сопротивлением не более 4 Ом. Стоимость электромонтажа «под ключ» — 45 000 ₽. Все работы соответствуют ПУЭ и требованиям для лабораторий 1-й категории точности.
Ключевые преимущества мобильной лаборатории:
Входной тамбур обеспечивает термобуферную зону, снижая теплопотери на 30% при работе в условиях холода
Два функциональных помещения: основная лаборатория (8 м²) и подсобка (4 м²) для кабинета или склада реактивов
Полная автономность: возможность установки электрооборудования, систем отопления и вентиляции под любые задачи
Быстрая развертка: установка и запуск за 2-3 часа на любой подготовленной площадке
Предлагаем как аренду, так и покупку от «Профмастер»:
Аренда от 15 000 ₽/мес с доставкой и монтажом под ключ
Продажа от 380 000 ₽ за 6-метровую базовую версию, от 580 000 ₽ за 9-метровую
Рассрочка до 24 месяцев без процентов для научных организаций и промышленных предприятий
Бесплатная доставка по России при покупке комплектации «Премиум»
Технические характеристики:
Надежная конструкция:
Каркас из стального профиля: основание швеллер 100×50×3 мм, угловые стойки уголок 90×90×3 мм
Внешняя обшивка — оцинкованный профлист С8 толщиной 0,4 мм (цвет: синий)
Утепление минеральной ватой 50 мм со всех сторон + пароизоляционная мембрана класса В
Крыша сварная плоская из металлического листа 0,8 мм с герметизацией швов мастикой
Функциональное оснащение:
Внутренняя отделка ПВХ — влагостойкие панели для легкой санобработки после работ с реактивами
Качественные двери: входная металлическая Кондор/Йошкар (2000×800 мм), две межкомнатные МДФ
Пол из ОСБ 15 мм на лагах из бруса 40×100 мм — выдерживает оборудование до 500 кг/м²
Система вентиляции с возможностью установки вытяжных шкафов для химических лабораторий
Варианты комплектации:
Стандарт: базовое освещение, 4 розетки, входная и межкомнатные двери
Научная: лабораторные столы с антикоррозийным покрытием, электрические щиты, аварийное освещение
Экстремальная: усиленное утепление 100 мм, конвекторы 4 кВт, система автономного электроснабжения
Почему выбирают «Профмастер»:
Компания «Профмастер» специализируется на создании мобильных лабораторий с 2014 года. Наши модули используются научными центрами «Сколково», лабораториями «Росгеологии» и предприятиями «Норникеля» в Санкт-Петербурге, Москве, Норильске и Магадане. Гарантия: 36 месяцев при аренде, 60 месяцев при покупке. Все контейнеры проходят сертификацию по требованиям безопасности для лабораторных помещений. Доставка: 24 часа по СПб и Москве, 2-7 дней по регионам России. Готовы рассчитать комплектацию под вашу научную задачу? Оставьте заявку — подготовим техническое предложение за 20 минут!
FAQ
Сколько лабораторного оборудования можно разместить в 6-метровой версии?
В 6-метровой версии площадью 14,4 м² комфортно размещается оборудование для 2-3 рабочих мест: лабораторные столы, весы, микроскопы, реактивы. Максимальная нагрузка на пол — 500 кг/м². Для крупного оборудования (хроматографы, спектрометры) рекомендуем 9-метровую версию или усиленную комплектацию с лагами 100×100 мм.
Как происходит вентиляция при работе с химическими реактивами?
Для лабораторий с химическими реактивами устанавливаем принудительную вентиляцию с вытяжными шкафами и системой фильтрации. Производительность — 200 м³/час. Стоимость комплекта — 65 000 ₽. В базовой версии предусмотрены приточные клапаны и вытяжные отверстия в санузле подсобного помещения для естественной циркуляции воздуха.
Сколько стоит аренда с полной научной комплектацией в Москве?
Аренда 6-метрового блок-контейнера-лаборатории с полной научной комплектацией (лабораторные столы, система вентиляции, электрика 32А, конвекторы) в Москве стоит от 28 000 ₽/мес. В стоимость входит доставка в пределах МКАД, установка, подключение к электросети 380В, первый техосмотр. Для подключения водоснабжения и канализации — доплата 8 000 ₽.
Можно ли использовать лабораторию зимой в Якутии при -50°C?
Да, для эксплуатации в Якутии при экстремальных температурах устанавливаем усиленное утепление: минвата 150 мм + обогрев вентиляционных каналов саморегулирующимся кабелем. Система отопления включает 4 конвектора по 2 кВт (8 кВт общая мощность) и резервный дизель-генератор 10 кВт. Такая комплектация поддерживает +20°C внутри при -45°C на улице. Стоимость зимнего пакета — 95 000 ₽.
Как производится подключение к электросетям для чувствительного оборудования?
Для научного оборудования устанавливаем стабилизаторы напряжения и ИБП с синусоидальным выходом. Электропроводка выполняется медным кабелем с сечением 6 мм² по металлическим коробам. Заземление выполняется по отдельному контуру с сопротивлением не более 4 Ом. Стоимость электромонтажа «под ключ» — 45 000 ₽. Все работы соответствуют ПУЭ и требованиям для лабораторий 1-й категории точности.