Блок-контейнер №6 сантехнический
22500 руб.
В наличии
Нет в наличии
- 60 площадок по всей РФ
- Быстрый расчет и доставка
- Большой ассортимент оборудования для стройки
- Линолеум
- Бытовой, Полукоммерческий, Коммерческий
- Внешняя отделка
- Цветной профлист, Оцинкованный профлист, Сендвич-панели
- Утеплитель
- Мин. вата 50, Базальтовая вата 50, Мин. вата 100, Базальтовая вата 100
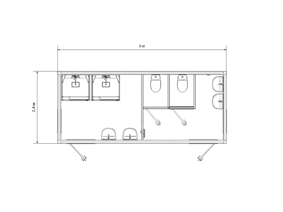
Комбинированный сантехнический блок-контейнер №6 на 6 метров с разделением на душевую и туалетную зоны. Четыре кабинки (2 душа + 2 туалета), 4 умывальника, отделка ПВХ. Аренда от 15 000 ₽/мес с доставкой за 24ч по России.
- Артикул:
- АР-БК-06
Блок-контейнер №6 сантехнический — это комбинированное решение для организации санитарных зон на строительных площадках, промышленных объектах и вахтовых поселках по всей России. Уникальная планировка с разделением на душевую и туалетную части, каждая со своими входами, обеспечивает комфорт и гигиену для рабочих в условиях Санкт-Петербурга, Москвы и других регионов.
Предлагаем сантехнический блок в аренду с возможностью выкупа:
Аренда от 15 000 ₽/мес с доставкой и подключением
Выкупная стоимость от 500 000 ₽ после 12 месяцев аренды
Рассрочка при покупке до 24 месяцев без процентов
Бесплатная доставка по РФ при аренде от 3 месяцев
Технические характеристики:
Конструкция и материалы:
Каркас из стального швеллера 100×50 мм с антикоррозийной обработкой
Внешняя обшивка — оцинкованный профлист С8 толщиной 0,45 мм
Внутренняя отделка — водостойкие ПВХ-панели белого цвета
Две отдельные зоны с независимыми входами для максимального удобства
Сантехническое оборудование:
Душевая часть: 2 душевые кабинки с поддонами, 2 умывальника со смесителями
Туалетная часть: 2 туалетные кабинки с индивидуальными дверями, 2 умывальника
Система водоснабжения с отдельными вводами для каждой зоны
Канализационные трубы диаметром 110 мм с уклоном для самотека
Комплектация и опции:
Базовая электрика: 12 розеток, 16 светильников, автомат 32А
Вентиляция в каждой кабинке для удаления влаги и запахов
По запросу: 4 конвектора по 1,5 кВт для зимней эксплуатации до -30°C
Дополнительно: система рециркуляции воды, септик на 3 м³, бак для воды 1000 л
PROFMASTER поставляет сантехнические блоки с 2014 года для объектов «Газпрома», «Росатома», «Мосметростроя» в Санкт-Петербурге, Москве, Норильске и Магадане. Все модули проходят гидравлические испытания и сертификацию по СанПиН 2.1.2.2645-10. Гарантия: 24 месяца при аренде. Доставка: 24 часа по СПб и Москве, 2-7 дней по регионам России. Установка и подключение всех коммуникаций выполняются нашими специалистами в течение 4 часов. Нужен расчет для вашего объекта? Оставьте заявку — подготовим коммерческое предложение за 15 минут!
FAQ
Сколько человек может обслужить этот санблок за смену?
Четыре кабинки (2 душа + 2 туалета) и четыре умывальника рассчитаны на комфортное обслуживание 30-40 человек в 8-часовую смену. При интенсивной эксплуатации на крупных объектах рекомендуем устанавливать дополнительные блоки.
Как происходит подключение к воде и канализации?
Блок имеет отдельные выводы для душевой и туалетной зон: водопровод — ¾ дюйма, канализация — 110 мм. Наши специалисты подключают к внешним сетям или автономным системам. Для объектов без коммуникаций предлагаем комплект с водяным баком 1000 л и септиком 3 м³ за 65 000 ₽.
Можно ли использовать санблок зимой без отопления?
Базовая комплектация позволяет использовать санблок при температуре до +5°C. Для зимней эксплуатации в условиях Сибири и Дальнего Востока обязательно устанавливаются четыре конвектора по 1,5 кВт (общая мощность 6 кВт) и утепляются трубы саморегулирующимся кабелем. Стоимость зимнего пакета — 55 000 ₽.
Сколько стоит аренда с установкой в Ленинградской области?
Аренда сантехнического блока №6 с доставкой и установкой в Ленинградской области (до 100 км от КАД) стоит от 17 500 ₽/мес. В стоимость входит: доставка манипулятором, установка на подготовленную площадку, подключение к электросети 380В, первый техосмотр. Для подключения к воде и канализации — доплата 10 000 ₽.
Как часто требуется обслуживание санблока?
При стандартной эксплуатации (до 40 человек в смену) рекомендуем обслуживание 1 раз в неделю: очистка умывальников и душевых кабин, замена расходников, проверка герметичности. Стоимость обслуживания — 4 500 ₽ за выезд. Все работы выполняют наши сертифицированные специалисты с предоставлением акта.
Предлагаем сантехнический блок в аренду с возможностью выкупа:
Аренда от 15 000 ₽/мес с доставкой и подключением
Выкупная стоимость от 500 000 ₽ после 12 месяцев аренды
Рассрочка при покупке до 24 месяцев без процентов
Бесплатная доставка по РФ при аренде от 3 месяцев
Технические характеристики:
Конструкция и материалы:
Каркас из стального швеллера 100×50 мм с антикоррозийной обработкой
Внешняя обшивка — оцинкованный профлист С8 толщиной 0,45 мм
Внутренняя отделка — водостойкие ПВХ-панели белого цвета
Две отдельные зоны с независимыми входами для максимального удобства
Сантехническое оборудование:
Душевая часть: 2 душевые кабинки с поддонами, 2 умывальника со смесителями
Туалетная часть: 2 туалетные кабинки с индивидуальными дверями, 2 умывальника
Система водоснабжения с отдельными вводами для каждой зоны
Канализационные трубы диаметром 110 мм с уклоном для самотека
Комплектация и опции:
Базовая электрика: 12 розеток, 16 светильников, автомат 32А
Вентиляция в каждой кабинке для удаления влаги и запахов
По запросу: 4 конвектора по 1,5 кВт для зимней эксплуатации до -30°C
Дополнительно: система рециркуляции воды, септик на 3 м³, бак для воды 1000 л
PROFMASTER поставляет сантехнические блоки с 2014 года для объектов «Газпрома», «Росатома», «Мосметростроя» в Санкт-Петербурге, Москве, Норильске и Магадане. Все модули проходят гидравлические испытания и сертификацию по СанПиН 2.1.2.2645-10. Гарантия: 24 месяца при аренде. Доставка: 24 часа по СПб и Москве, 2-7 дней по регионам России. Установка и подключение всех коммуникаций выполняются нашими специалистами в течение 4 часов. Нужен расчет для вашего объекта? Оставьте заявку — подготовим коммерческое предложение за 15 минут!
FAQ
Сколько человек может обслужить этот санблок за смену?
Четыре кабинки (2 душа + 2 туалета) и четыре умывальника рассчитаны на комфортное обслуживание 30-40 человек в 8-часовую смену. При интенсивной эксплуатации на крупных объектах рекомендуем устанавливать дополнительные блоки.
Как происходит подключение к воде и канализации?
Блок имеет отдельные выводы для душевой и туалетной зон: водопровод — ¾ дюйма, канализация — 110 мм. Наши специалисты подключают к внешним сетям или автономным системам. Для объектов без коммуникаций предлагаем комплект с водяным баком 1000 л и септиком 3 м³ за 65 000 ₽.
Можно ли использовать санблок зимой без отопления?
Базовая комплектация позволяет использовать санблок при температуре до +5°C. Для зимней эксплуатации в условиях Сибири и Дальнего Востока обязательно устанавливаются четыре конвектора по 1,5 кВт (общая мощность 6 кВт) и утепляются трубы саморегулирующимся кабелем. Стоимость зимнего пакета — 55 000 ₽.
Сколько стоит аренда с установкой в Ленинградской области?
Аренда сантехнического блока №6 с доставкой и установкой в Ленинградской области (до 100 км от КАД) стоит от 17 500 ₽/мес. В стоимость входит: доставка манипулятором, установка на подготовленную площадку, подключение к электросети 380В, первый техосмотр. Для подключения к воде и канализации — доплата 10 000 ₽.
Как часто требуется обслуживание санблока?
При стандартной эксплуатации (до 40 человек в смену) рекомендуем обслуживание 1 раз в неделю: очистка умывальников и душевых кабин, замена расходников, проверка герметичности. Стоимость обслуживания — 4 500 ₽ за выезд. Все работы выполняют наши сертифицированные специалисты с предоставлением акта.