Блок-контейнер №2 из профлиста
15500 руб.
В наличии
Нет в наличии
- 60 площадок по всей РФ
- Быстрый расчет и доставка
- Большой ассортимент оборудования для стройки
- Линолеум
- Бытовой, Полукоммерческий, Коммерческий
- Внешняя отделка
- Цветной профлист, Оцинкованный профлист, Сендвич-панели
- Утеплитель
- Мин. вата 50, Базальтовая вата 50, Мин. вата 100, Базальтовая вата 100
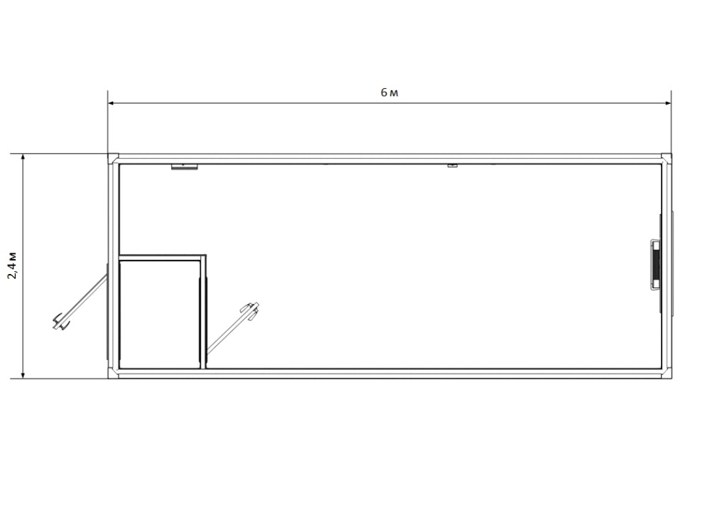
6-метровый блок-контейнер №2 из профлиста С8 с тамбуром. Минераловатное утепление, внутренняя отделка на выбор. Аренда от 9 500 ₽/мес, продажа от 240 000 ₽. Доставка по России за 24ч.
- Артикул:
- АР-БК-02
Блок-контейнер №2 — это утепленный 6-метровый модуль с входным тамбуром для круглогодичного использования на строительных объектах по всей России. Тамбур снижает теплопотери на 25-30%, делая контейнер идеальным решением для прорабской, мобильного офиса или временного жилья в условиях Санкт-Петербурга, Москвы и других регионов с холодным климатом.
Предлагаем как аренду, так и покупку блок-контейнера №2:
Аренда от 9 500 ₽/мес с доставкой и установкой
Продажа от 240 000 ₽ за базовую комплектацию
Рассрочка до 18 месяцев без процентов для юрлиц
Бесплатная доставка при покупке в любой регион России
Технические особенности:
Конструкция с тамбуром:
Стальной каркас из профиля 100×50 мм с антикоррозийной обработкой
Наружная обшивка — профлист С8 толщиной 0,45 мм
Минераловатное утепление 50 мм по всему периметру
Тамбур площадью 1,2 м² как буферная зона против холода
Внутренняя отделка на выбор:
Эконом: ДВП для стен, ЦСП для пола
Стандарт: вагонка сосна, линолеум
Премиум: ЛДСП влагостойкое, ламинат
Все варианты включают потолок из ПВХ-панелей
Электрооборудование и опции:
Базовая комплектация: 4 розетки, 4 светильника, автомат 16А
По запросу: конвекторы Ballu 1,5 кВт для зимы до -25°C
Мебель: офисный набор (стол+2 стула) или спальный комплект (кровать+тумба)
Дополнительно: интернет-розетка, система вентиляции, шкаф для документов
PROFMASTER работает на рынке с 2014 года. Наши блок-контейнеры №2 используются на объектах «РЖД», «Газпромнефти» в Санкт-Петербурге, Москве, Норильске и Владивостоке. Гарантия: 30 месяцев при аренде, 48 месяцев при покупке. Доставка: 24 часа по СПб и Москве, 1-3 дня по ЛО и МО, 3-10 дней в отдаленные регионы. Все договора официальные с полной страховкой имущества. Хотите рассчитать стоимость под ваш объект? Оставьте заявку — подготовим коммерческое предложение за 20 минут!
FAQ-блок (простой текст)
Вопрос: Насколько тамбур улучшает теплоизоляцию контейнера?
Ответ: Тамбур снижает теплопотери на 25-30% по сравнению со стандартными контейнерами без тамбура. Это позволяет использовать блок-контейнер №2 без дополнительного отопления при температуре до -10°C. С конвекторами 1,5 кВт комфортно эксплуатировать до -30°C.
Вопрос: Какая стоимость аренды с конвекторами для зимы в Москве?
Ответ: Аренда блок-контейнера №2 с двумя конвекторами Ballu 1,5 кВт в Москве стоит от 12 500 ₽/мес. В стоимость входит доставка в пределах МКАД, установка, подключение отопления и первый техосмотр. Для Московской области цена рассчитывается индивидуально.
Вопрос: Сколько стоит покупка с полной отделкой под офис?
Ответ: Блок-контейнер №2 с полной отделкой под офис (ЛДСП, ламинат, потолок ПВХ), электрикой, двумя конвекторами и офисной мебелью стоит 340 000 ₽. Гарантия 4 года, бесплатная доставка по России. Оплата возможна с НДС/без НДС.
Вопрос: Как быстро можно получить контейнер в Санкт-Петербурге?
Ответ: В Санкт-Петербурге и ЛО доставляем блок-контейнеры в течение 24 часов после подписания договора. Установка занимает 1,5-2 часа: выравнивание на подкладках, подключение к электросети, проверка герметичности. Работаем ежедневно с 8:00 до 20:00.
Вопрос: Можно ли использовать контейнер как жилое помещение?
Ответ: Да, при комплектации конвекторами, вентиляцией и спальным набором (кровать, шкаф) модуль соответствует требованиям для временного проживания. Площадь 12 м² позволяет комфортно разместить 1-2 человек. Для постоянного жилья требуется согласование с надзорными органами — поможем с документами.
Предлагаем как аренду, так и покупку блок-контейнера №2:
Аренда от 9 500 ₽/мес с доставкой и установкой
Продажа от 240 000 ₽ за базовую комплектацию
Рассрочка до 18 месяцев без процентов для юрлиц
Бесплатная доставка при покупке в любой регион России
Технические особенности:
Конструкция с тамбуром:
Стальной каркас из профиля 100×50 мм с антикоррозийной обработкой
Наружная обшивка — профлист С8 толщиной 0,45 мм
Минераловатное утепление 50 мм по всему периметру
Тамбур площадью 1,2 м² как буферная зона против холода
Внутренняя отделка на выбор:
Эконом: ДВП для стен, ЦСП для пола
Стандарт: вагонка сосна, линолеум
Премиум: ЛДСП влагостойкое, ламинат
Все варианты включают потолок из ПВХ-панелей
Электрооборудование и опции:
Базовая комплектация: 4 розетки, 4 светильника, автомат 16А
По запросу: конвекторы Ballu 1,5 кВт для зимы до -25°C
Мебель: офисный набор (стол+2 стула) или спальный комплект (кровать+тумба)
Дополнительно: интернет-розетка, система вентиляции, шкаф для документов
PROFMASTER работает на рынке с 2014 года. Наши блок-контейнеры №2 используются на объектах «РЖД», «Газпромнефти» в Санкт-Петербурге, Москве, Норильске и Владивостоке. Гарантия: 30 месяцев при аренде, 48 месяцев при покупке. Доставка: 24 часа по СПб и Москве, 1-3 дня по ЛО и МО, 3-10 дней в отдаленные регионы. Все договора официальные с полной страховкой имущества. Хотите рассчитать стоимость под ваш объект? Оставьте заявку — подготовим коммерческое предложение за 20 минут!
FAQ-блок (простой текст)
Вопрос: Насколько тамбур улучшает теплоизоляцию контейнера?
Ответ: Тамбур снижает теплопотери на 25-30% по сравнению со стандартными контейнерами без тамбура. Это позволяет использовать блок-контейнер №2 без дополнительного отопления при температуре до -10°C. С конвекторами 1,5 кВт комфортно эксплуатировать до -30°C.
Вопрос: Какая стоимость аренды с конвекторами для зимы в Москве?
Ответ: Аренда блок-контейнера №2 с двумя конвекторами Ballu 1,5 кВт в Москве стоит от 12 500 ₽/мес. В стоимость входит доставка в пределах МКАД, установка, подключение отопления и первый техосмотр. Для Московской области цена рассчитывается индивидуально.
Вопрос: Сколько стоит покупка с полной отделкой под офис?
Ответ: Блок-контейнер №2 с полной отделкой под офис (ЛДСП, ламинат, потолок ПВХ), электрикой, двумя конвекторами и офисной мебелью стоит 340 000 ₽. Гарантия 4 года, бесплатная доставка по России. Оплата возможна с НДС/без НДС.
Вопрос: Как быстро можно получить контейнер в Санкт-Петербурге?
Ответ: В Санкт-Петербурге и ЛО доставляем блок-контейнеры в течение 24 часов после подписания договора. Установка занимает 1,5-2 часа: выравнивание на подкладках, подключение к электросети, проверка герметичности. Работаем ежедневно с 8:00 до 20:00.
Вопрос: Можно ли использовать контейнер как жилое помещение?
Ответ: Да, при комплектации конвекторами, вентиляцией и спальным набором (кровать, шкаф) модуль соответствует требованиям для временного проживания. Площадь 12 м² позволяет комфортно разместить 1-2 человек. Для постоянного жилья требуется согласование с надзорными органами — поможем с документами.